Pronájem bytu, 2+1, 48 m²
J. Palacha, Břeclav
15 000 Kč (za měsíc)Pronájem bytu, 2+1, 48 m²
J. Palacha, Břeclav
15 000 Kč
(za měsíc)
Pronájem bytu 2+1, , J. Palacha 26, Břeclav - 15.000,- Kč/měs, 49 m2
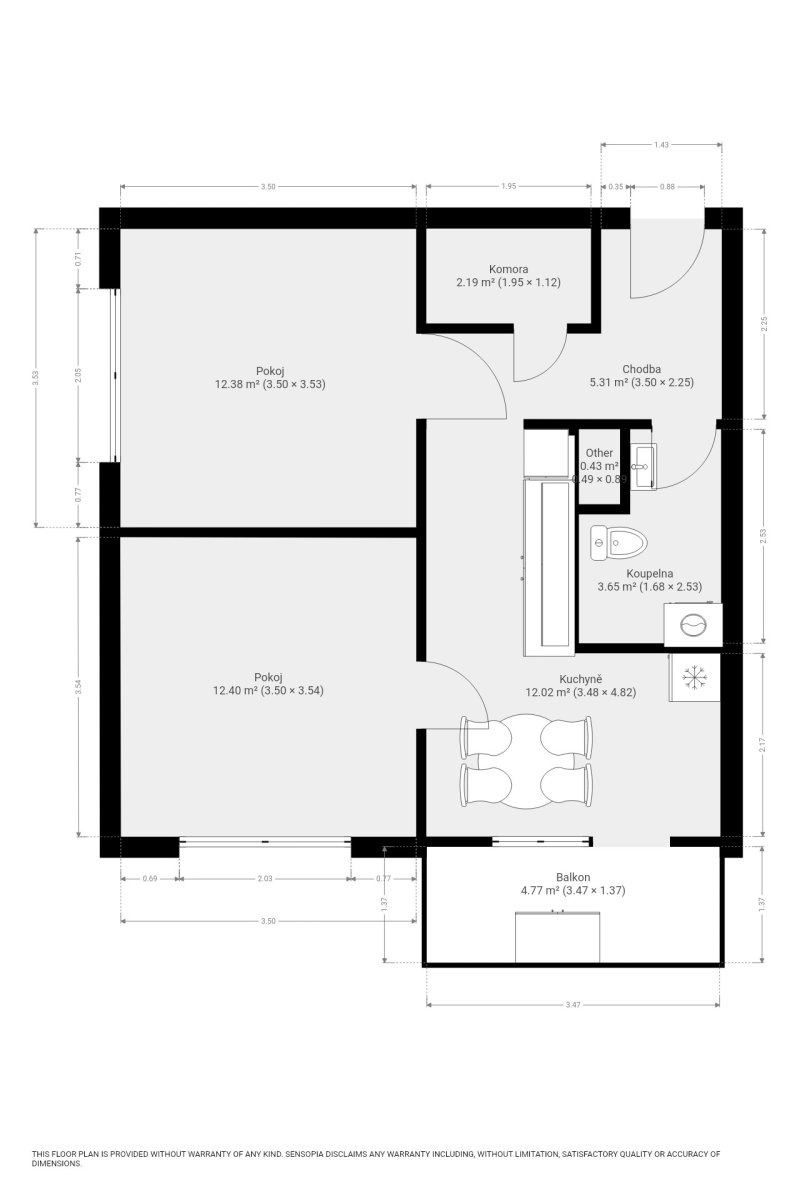
Nabízíme dlouhodobý pronájem pěkného bytu o dispozicí 2+1 v lokalitě J. Palacha 26 v Břeclavi. Byt o celkové ploše 49m2 se nachází v 1. patře panelového domu.
Jedná se o částečně zařízený byt. Vybavení zahrnuje kuchyňskou linku s plynovým sporákem, troubou, digestoří, lednicí a jídelním stolkem se židlemi.
Byt disponuje balkonem. Obývací místnost a druhý pokoj jsou neprůchozí. V bytě na podlahách jsou koberce, dlažba a vinyl. Vytápění zajišťuje centrální vytápění s radiátory.
V domě jsou dva výtahy a možnost využití kolárny v suterénu domu.
Byt zahrnuje sklepní kóji o velikosti 1 m2.
Záloha na energie (topení, voda a teplá voda, elektřina, plyn) 3500,- s vyúčtováním dle skutečné spotřeby.
Byt je volný k nastěhování ihned.
Na ulici Čechova je možnost parkování s podmínkou vyřízení parkovací karty.
Energetická kategorie bytu je G.
Jedná se o částečně zařízený byt. Vybavení zahrnuje kuchyňskou linku s plynovým sporákem, troubou, digestoří, lednicí a jídelním stolkem se židlemi.
Byt disponuje balkonem. Obývací místnost a druhý pokoj jsou neprůchozí. V bytě na podlahách jsou koberce, dlažba a vinyl. Vytápění zajišťuje centrální vytápění s radiátory.
V domě jsou dva výtahy a možnost využití kolárny v suterénu domu.
Byt zahrnuje sklepní kóji o velikosti 1 m2.
Záloha na energie (topení, voda a teplá voda, elektřina, plyn) 3500,- s vyúčtováním dle skutečné spotřeby.
Byt je volný k nastěhování ihned.
Na ulici Čechova je možnost parkování s podmínkou vyřízení parkovací karty.
Energetická kategorie bytu je G.
| Cena: | 15 000 Kč / (za měsíc) |
| Poznámka: | vratná jistota 30.000,- Kč, náklady na bydlení cca 3.500,- kč, poplatek za podnájem |
| Dispozice/podlahová plocha: | 2+1/48 m² |
| Číslo zakázky: | REALITYMIX-6988 |
Podrobné informace
- Dispozice bytu: 2+1
- Číslo podlaží v domě: 1
- Počet podlaží objektu: 5
- Celková podlahová plocha: 48 m²
- Druh objektu: panelová
- Stav objektu: dobrý
- Vlastnictví: osobní
- Elektřina: Elektro - 230 V
- Topení: Ústřední - dálkové
Mapa
* Umístění na mapě je na základě GPS informací dodaných realitní kanceláří.
* Pozice na mapě je pouze orientační.