Pronájem - kanceláře, 95 m²
Konopná, Brno-jih, Brno, Brno-město
22 000 Kč (za měsíc)Pronájem - kanceláře, 95 m²
Konopná, Brno-jih, Brno, Brno-město
22 000 Kč
(za měsíc)
G
Mimořádně nehospodárná
Kanceláře 95m2 Komárov, Konopná - blízko centra i dálnice
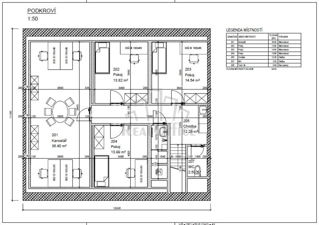
Nabízíme pronájem celého patra, tj. 4 klimatizovaných nezařízených místností se samostatnými vstupy o rozměrech 36m2, 14m2, 14m2, 14m2 a zázemí, tzn. celku o ploše cca 95m2 v bezprostřední blízkosti centra města v lukrativní městské části Brno-Komárov na ulici Konopná.
Reprezentativní prostory se nachází ve 2.patře/2. (podkroví) cihlového zrekonstruovaného domu, který je celý využíván ke komerčním účelům. Společné prostory - chodba 12 m2, soc. zařízení 5 m2 (místnost s umyvadlem+sprchovým koutem a místnost s umyvadlem+WC). Prostory jsou orientovány do ulice i do dvora (v půdorysu č.201, 202, 203 a 204 - v této místnosti nyní také umyvadlo). V prostoru chodby je k dispozici kuchyňka s lednicí. Internet v ceně, wi-fi. Možnost parkování před domem. Dům střežen kamerovým systémem, otevírání vstupních dveří s kamerou. Prostory lze užívat pro klasickou kancelářskou/obchodní činnost, popř. i pro masáže, fyzioterapii a obdobné činnosti.
Měs. nájemné: 22.000 Kč + zál. na energie, (v případě plátců + DPH). Vratná kauce 1 nájem. Provize RK 1 nájem.
V blízkosti je veškerá občanská vybavenost (pošta, restaurace, obchodní centrum, atd.). Výborná dostupnost na dálnici i do centra města (5-10min.). Volné ihned. Více info v RK.
Reprezentativní prostory se nachází ve 2.patře/2. (podkroví) cihlového zrekonstruovaného domu, který je celý využíván ke komerčním účelům. Společné prostory - chodba 12 m2, soc. zařízení 5 m2 (místnost s umyvadlem+sprchovým koutem a místnost s umyvadlem+WC). Prostory jsou orientovány do ulice i do dvora (v půdorysu č.201, 202, 203 a 204 - v této místnosti nyní také umyvadlo). V prostoru chodby je k dispozici kuchyňka s lednicí. Internet v ceně, wi-fi. Možnost parkování před domem. Dům střežen kamerovým systémem, otevírání vstupních dveří s kamerou. Prostory lze užívat pro klasickou kancelářskou/obchodní činnost, popř. i pro masáže, fyzioterapii a obdobné činnosti.
Měs. nájemné: 22.000 Kč + zál. na energie, (v případě plátců + DPH). Vratná kauce 1 nájem. Provize RK 1 nájem.
V blízkosti je veškerá občanská vybavenost (pošta, restaurace, obchodní centrum, atd.). Výborná dostupnost na dálnici i do centra města (5-10min.). Volné ihned. Více info v RK.
| Cena: | 22 000 Kč / (za měsíc) |
| Poznámka: | + zál. na energie cca 4-5.000 Kč |
| Číslo zakázky: | REALITYMIX-RO0150 |
Podrobné informace
- Plocha kanceláří: 95 m²
- Druh objektu: cihlová
- Stav objektu: po rekonstrukci
- Druh prostor: Kanceláře
- Umístění objektu: centrum obce
- Komunikace: asfaltová
- Elektřina: Elektro - 400 V
- Energetická náročnost budovy: G - Mimořádně nehospodárná
- Energetický ukazatel podle vyhlášky: č. 264/2020 Sb.
Mapa
* Umístění na mapě je na základě GPS informací dodaných realitní kanceláří.
* Pozice na mapě je pouze orientační.
Podobné nemovitosti
Pronájem - kanceláře, 64 m²
Křenová, Brno-střed, Brno, Brno-město
18 560 Kč za měsíc
Pronájem - kanceláře, 80 m²
Křenová, Brno-střed, Brno, Brno-město
22 400 Kč za měsíc
Pronájem - kanceláře, 75 m²
Tuřanka, Brno-Slatina, Brno, Brno-město
19 425 Kč za měsíc
Pronájem - kanceláře, 53 m²
Plynárenská, Brno-střed, Brno, Brno-město
15 457 Kč za měsíc