Prodej bytu, 2+1, 56 m²
Staroměstská, České Budějovice 3, České Budějovice
4 990 000 KčProdej bytu, 2+1, 56 m²
Staroměstská, České Budějovice 3, České Budějovice
4 990 000 Kč
C
Úsporná
Prodej byt 2+1, 52㎡
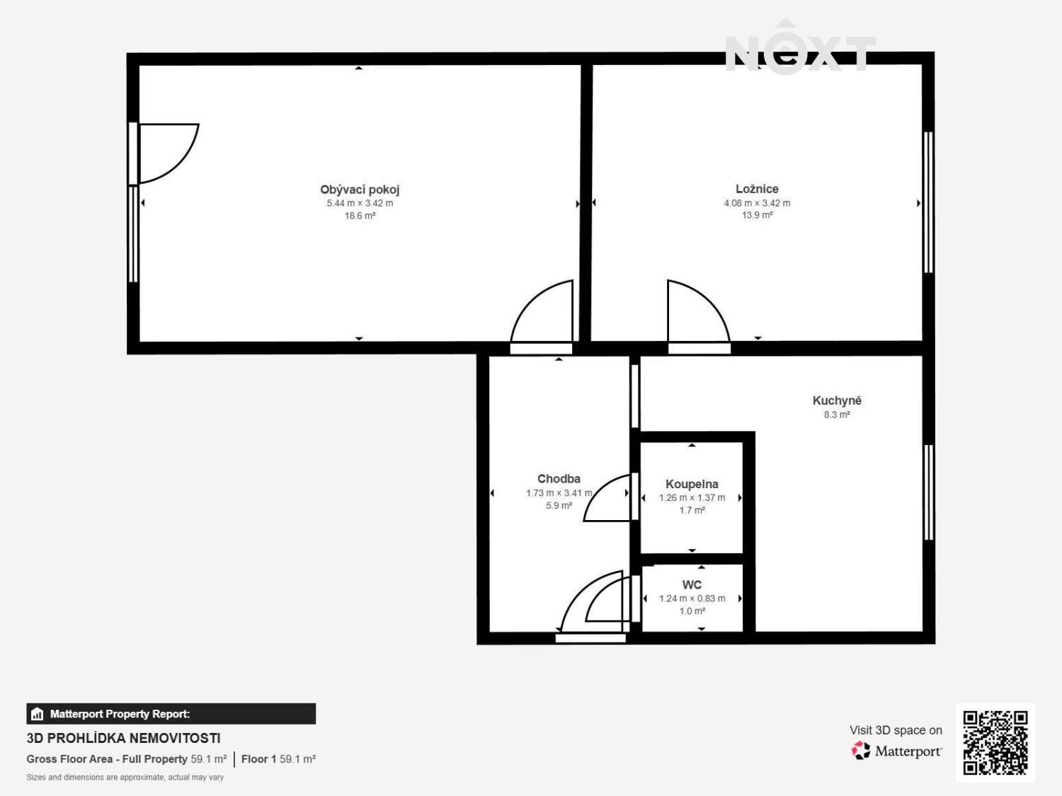
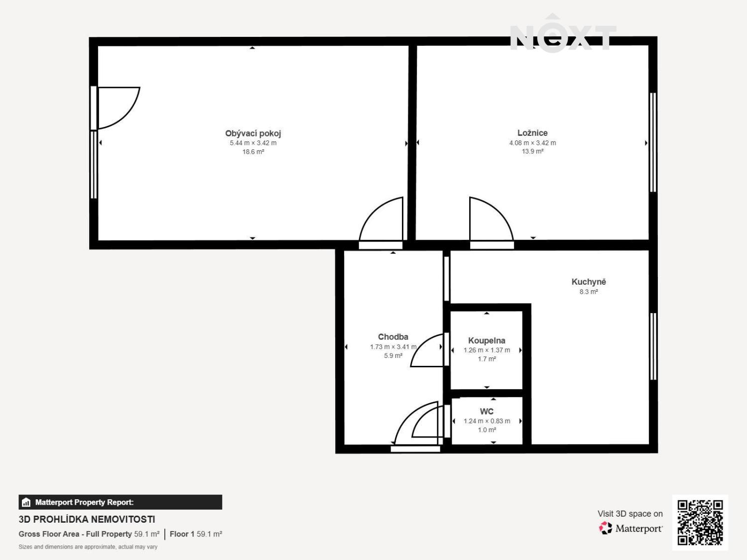
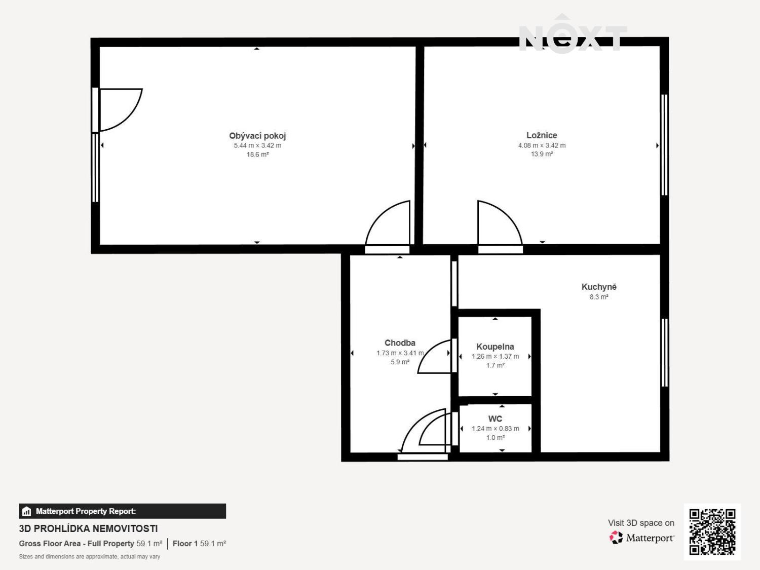
Nabízíme prodej pěkného družstevního bytu o celkové dispozici 2+1 (celková plocha 56 m2, užitná plocha 52 m2) nacházející se ve 4. patře panelového domu z celkem 6 pater. Bytový dům se nachází v atraktivní lokalitě poblíž centra města České Budějovice v ulici Staroměstská.
Byt je ve velmi dobrém a udržovaném stavu, připravený k okamžitému bydlení bez nutnosti investic. Dispozice nabízí ložnici, obývací pokoj, kuchyň, koupelnu se sprchou a samostatné WC. Z obývacího pokoje je vstup na balkón, který nabídne místo pro odpočinek.
Velkou výhodou je orientace bytu na východ a západ, díky čemuž je byt po celý den příjemně světlý. Byt se nachází ve střední části bytového domu, což zajišťuje velmi dobrou tepelnou a nízké provozní náklady. Celkové náklady bytu jsou 4.200,- (zálohy SVJ: voda, teplo, společné prostory, fond oprav CZK 3.516,- a elektřina). V zimních měsících tak není potřeba výrazně vytápět, byt je přirozeně teplý díky okolním jednotkám. K bytu náleží sklep o celkové výměře 2 m2.
Atraktivní lokalita v širším centru města nabízí veškerou občanskou vybavenost v docházkové vzdálenosti jako obchody (IGY obchodní centrum), MHD, školy (Kubatova Základní škola), školky, lékaře i služby (restaurace, kavárny, kadeřnictví apod.).
Hledáte byt pro vlastní bydlení, a nebo investiční příležitost na skvělém místě? Právě jste ho našli. Těšíme na prohlídky s Vámi. Vašemu času se maximálně přizpůsobíme. V případě zájmu zajistíme výhodné financování. Pro komunikaci uvádějte evidenční číslo zakázky N116323.
Byt je ve velmi dobrém a udržovaném stavu, připravený k okamžitému bydlení bez nutnosti investic. Dispozice nabízí ložnici, obývací pokoj, kuchyň, koupelnu se sprchou a samostatné WC. Z obývacího pokoje je vstup na balkón, který nabídne místo pro odpočinek.
Velkou výhodou je orientace bytu na východ a západ, díky čemuž je byt po celý den příjemně světlý. Byt se nachází ve střední části bytového domu, což zajišťuje velmi dobrou tepelnou a nízké provozní náklady. Celkové náklady bytu jsou 4.200,- (zálohy SVJ: voda, teplo, společné prostory, fond oprav CZK 3.516,- a elektřina). V zimních měsících tak není potřeba výrazně vytápět, byt je přirozeně teplý díky okolním jednotkám. K bytu náleží sklep o celkové výměře 2 m2.
Atraktivní lokalita v širším centru města nabízí veškerou občanskou vybavenost v docházkové vzdálenosti jako obchody (IGY obchodní centrum), MHD, školy (Kubatova Základní škola), školky, lékaře i služby (restaurace, kavárny, kadeřnictví apod.).
Hledáte byt pro vlastní bydlení, a nebo investiční příležitost na skvělém místě? Právě jste ho našli. Těšíme na prohlídky s Vámi. Vašemu času se maximálně přizpůsobíme. V případě zájmu zajistíme výhodné financování. Pro komunikaci uvádějte evidenční číslo zakázky N116323.
| Cena: | 4 990 000 Kč |
| Poznámka: | Cena je uvedena včetně kompletních služeb RK (provize je CZK 110.000,-). |
| Dispozice/podlahová plocha: | 2+1/56 m² |
| Číslo zakázky: | REALITYMIX-116323 |
Podrobné informace
- Bezbariérový byt: ano
- Dispozice bytu: 2+1
- Číslo podlaží v domě: 5
- Počet podlaží objektu: 7
- Užitná plocha: 52 m²
- Celková podlahová plocha: 56 m²
- Druh objektu: panelová
- Stav objektu: dobrý
- Vlastnictví: družstevní
- Balkon: 2 m²
- Sklep: 2 m²
- Vybaveno: ano
- Umístění objektu: centrum obce
- Energetická náročnost budovy: C - Úsporná
- Energetický ukazatel podle vyhlášky: č. 78/2013 Sb.
Právní rádce
-
Detail
Realitní makléř má své nezastupitelné místo v realitním obchodu. Realitním makléřem nemyslím nevzdělané jelito, které absolvovalo dvoudenní školení a ví, jak se nahraje inzerát na inzertní portál.
Realitním makléřem, který se Vám skutečně vyplatí, je zkušený profesionál, který je schopen Vám dobře poradit jak prodat za co nejvíc a s nejmenším rizikem a hlavně je Vás schopen obratně provést celým realitním obchodem.
Prodáváte nemovitost a potřebujete zjistit její reálnou hodnotu?
Zjistit reálnou cenuVývoj průměrné ceny za m2 v lokalitě České Budějovice
Ceny uvedené v grafu, jsou průměrnými cenami ze sledované lokality a nezohledňují stav, stáří ani vybavení nemovitosti.
Prodáváte nemovitost a potřebujete zjistit její reálnou hodnotu?
Zjistit reálnou cenuMapa
* Umístění na mapě je na základě GPS informací dodaných realitní kanceláří.
* Pozice na mapě je pouze orientační.
Podobné nemovitosti
Prodej bytu, 2+1, 58 m²
U Malše, České Budějovice 7, České Budějovice
4 100 000 Kč
Prodej bytu, 2+1, 81 m²
Fr. Hrubína, České Budějovice 3, České Budějovice
4 900 000 Kč
Prodej bytu, 2+1, 70 m²
Lidická tř, České Budějovice 7, České Budějovice
5 350 000 Kč
Prodej bytu, 2+1, 48 m²
Lidická tř, České Budějovice 7, České Budějovice
5 100 000 Kč