Pronájem bytu, 2+kk, 53 m²
Husova tř, České Budějovice 2, České Budějovice
16 500 Kč (za měsíc)Pronájem bytu, 2+kk, 53 m²
Husova tř, České Budějovice 2, České Budějovice
16 500 Kč
(za měsíc)
B
Velmi úsporná
Pronájem bytu 2+kk 53 m², České Budějovice 2
K nastěhování ihned.
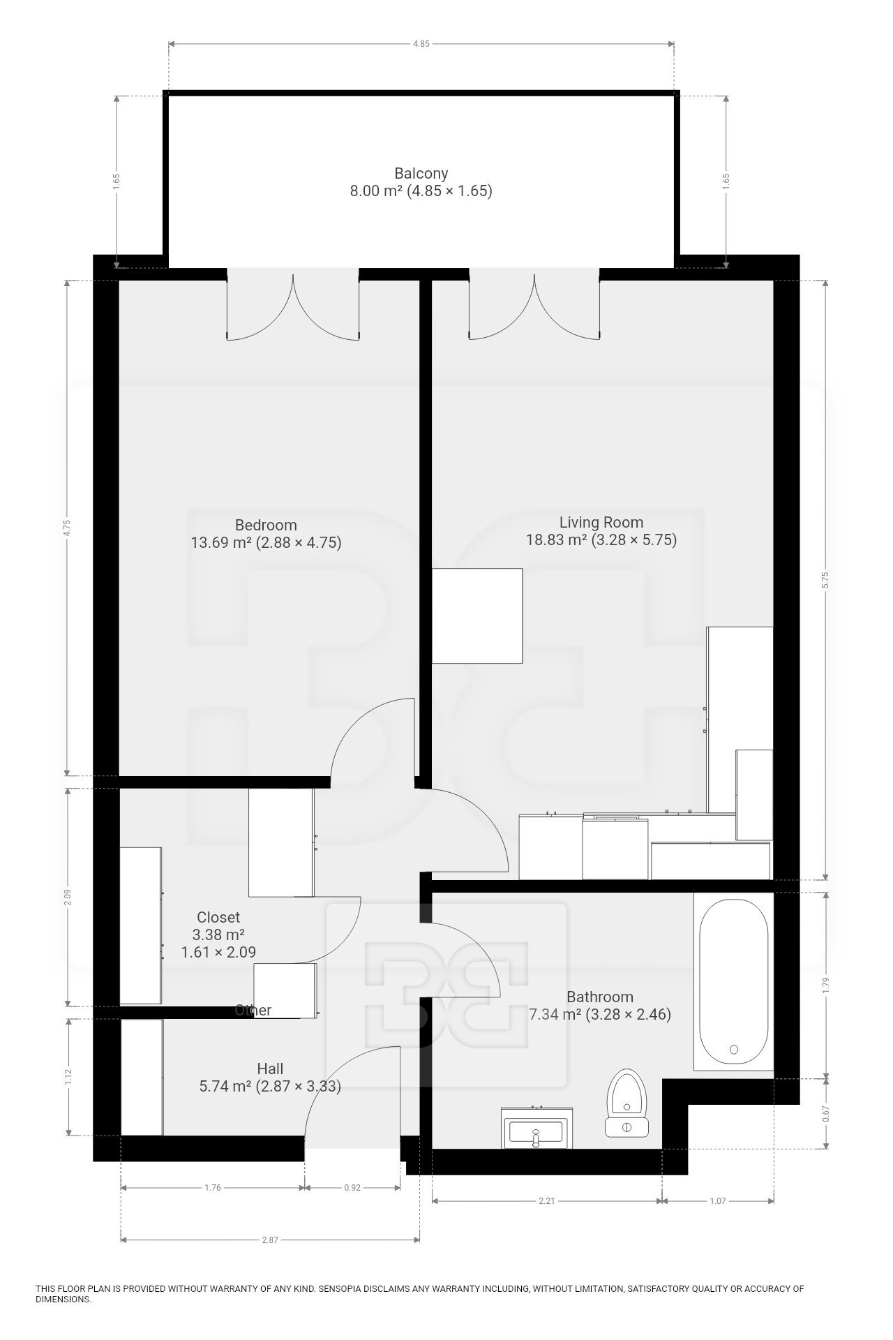
Nabízíme k pronájmu krásný, světlý byt 2+kk o velikosti 53m², situovaný v pečlivě udržovaném bytovém domě. K bytu náleží venkovní parkovací stání a úložné kóje přímo na patře. K domu náleží soukromá zahrada s dětským hřištěm a možností užívání tenisového kurtu.
Dispozice bytu:
• Vstupní předsíň s předsíňovou stěnou, botníkem a vestavěnou šatní skříní
• Praktická šatna s množstvím úložných prostorů
• Koupelna s vanou, toaletou, umyvadlem
• Obývací pokoj nabídne a jídelní stůl se čtyřmi židlemi
• Z obývacího pokoje se dostaneme i na prostorný balkón
• Kuchyňská linka je vybavena lednicí, elektrickou troubou, varnou deskou, mikrovlnou troubou a digestoří
• Samostatná ložnice je nevybavená a také se z ní dostaneme na balkón
Lokalita:
Byt se nachází v oblíbené části Českých Budějovic s výbornou občanskou vybaveností v okolí (obchody, služby, školy, MHD) i dostupností do centra města.
Pozor, velkou výhodou pro potenciální nájemce je, že byt je v profesionální správě společnosti Bohemian Estates, jenž správu pro majitele tohoto bytu vykonává. Nájemci je k dispozici kontaktní osoba, která řeší veškeré záležitosti s nájmem spojené (údržba, platby nájemného, vyúčtování, dodatky, a pod.). Nájemci je tak zajištěno bezproblémové užívání bytu s kompletním servisem.
Nabízíme k pronájmu krásný, světlý byt 2+kk o velikosti 53m², situovaný v pečlivě udržovaném bytovém domě. K bytu náleží venkovní parkovací stání a úložné kóje přímo na patře. K domu náleží soukromá zahrada s dětským hřištěm a možností užívání tenisového kurtu.
Dispozice bytu:
• Vstupní předsíň s předsíňovou stěnou, botníkem a vestavěnou šatní skříní
• Praktická šatna s množstvím úložných prostorů
• Koupelna s vanou, toaletou, umyvadlem
• Obývací pokoj nabídne a jídelní stůl se čtyřmi židlemi
• Z obývacího pokoje se dostaneme i na prostorný balkón
• Kuchyňská linka je vybavena lednicí, elektrickou troubou, varnou deskou, mikrovlnou troubou a digestoří
• Samostatná ložnice je nevybavená a také se z ní dostaneme na balkón
Lokalita:
Byt se nachází v oblíbené části Českých Budějovic s výbornou občanskou vybaveností v okolí (obchody, služby, školy, MHD) i dostupností do centra města.
Pozor, velkou výhodou pro potenciální nájemce je, že byt je v profesionální správě společnosti Bohemian Estates, jenž správu pro majitele tohoto bytu vykonává. Nájemci je k dispozici kontaktní osoba, která řeší veškeré záležitosti s nájmem spojené (údržba, platby nájemného, vyúčtování, dodatky, a pod.). Nájemci je tak zajištěno bezproblémové užívání bytu s kompletním servisem.
| Cena: | 16 500 Kč / (za měsíc) |
| Poznámka: | + 2500 Kč zálohy na služby + elektřina, vratná jistota 19000 Kč, provize 19000 Kč + DPH |
| Datum k nastěhování: | 12.01.2026 |
| Dispozice/podlahová plocha: | 2+kk/53 m² |
| Číslo zakázky: | REALITYMIX-N08699 |
Podrobné informace
- Dispozice bytu: 2+kk
- Číslo podlaží v domě: 5
- Počet podlaží objektu: 5
- Celková podlahová plocha: 53 m²
- Druh objektu: smíšená
- Stav objektu: velmi dobrý
- Vlastnictví: osobní
- Balkon: 7 m²
- Sklep: 2 m²
- Topení: Ústřední - dálkové
- Energetická náročnost budovy: B - Velmi úsporná
- Ukazatel energetické náročnosti budovy: 80 kWh/m²
- Energetický ukazatel podle vyhlášky: č. 264/2020 Sb.
Mapa
* Umístění na mapě je na základě GPS informací dodaných realitní kanceláří.
* Pozice na mapě je pouze orientační.
Podobné nemovitosti
Pronájem bytu, 2+kk, 35 m²
Dělnická, České Budějovice 5, České Budějovice
12 000 Kč za měsíc
Pronájem bytu, 2+kk, 63 m²
Nová, České Budějovice 3, České Budějovice
17 000 Kč za měsíc
Pronájem bytu, 2+kk, 60 m²
Potoční, Hluboká nad Vltavou, České Budějovice
16 500 Kč za měsíc
Pronájem bytu, 2+kk, 42 m²
M. Chlajna, České Budějovice 2, České Budějovice
14 000 Kč za měsíc