Pronájem - skladovací prostor, 500 m²
České Budějovice
90 Kč (za m2/měsíc)Pronájem - skladovací prostor, 500 m²
České Budějovice
90 Kč
(za m2/měsíc)
G
Mimořádně nehospodárná
Pronájem části výrobní a skladovací haly Kaliště u Českých Budějovic
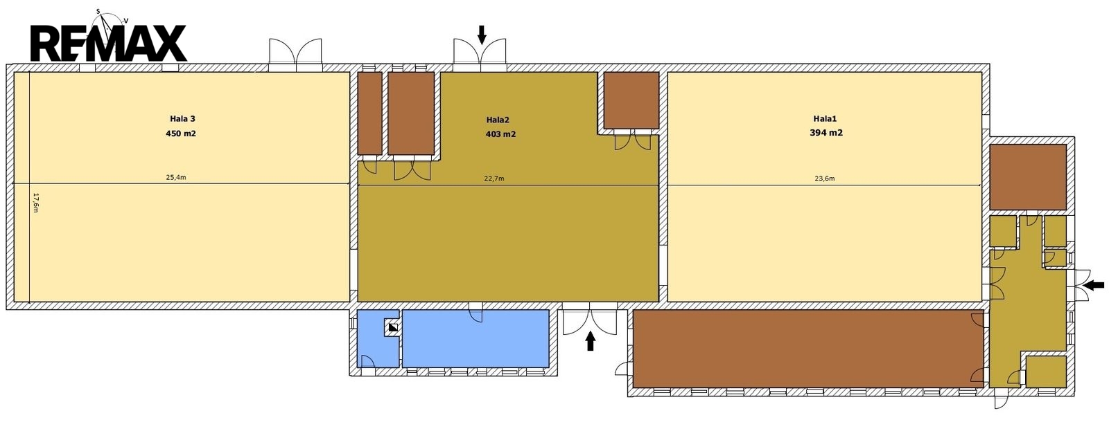
Nabízíme k pronájmu výrobní a skladovací halu/haly - objekt na okraji obce Kaliště. lze pronajmout pouze část.
Objekt je dobře dostupný kamionovou dopravou a disponuje dostatečným prostorem pro jejich manipulaci. Samotný objekt o zastavěné ploše 2048m2 je členěn na tři haly, šatnu, kotelnu, zázemí, kanceláře a technologické místnosti. Manipulační plocha a pozemky okolo budovy mají rozlohu 2936m2. Samotné haly pak mají rozměry: 395m2 výška 6,5m, 395m2 výška 6,5m, 395m2 výška 6,5m a další přilehlé místnosti .
Objekt je připojen k elektrické síti s jističem 80A. Objekt je připojen k elektrické síti s jističem 80A, přípojka obecního vodovodu a kanalizace je na hranici pozemku připravená k zavedení do objektu. Plynovod je v obecní komunikaci před objektem.
Střecha má vhodnou polohu pro umístění fotovoltaické elektrárny.
Kaliště je obec v okrese České Budějovice, část města České Budějovice (základní sídelní jednotka v rámci Českých Budějovic 5). Kaliště tvoří oproti zbytku města exklávu a je jeho nejvýchodnější částí.
Pro více informací kontaktujte makléře.
Provize za zprostředkování pronájmu je ve výši jednoho měsíčního nájmu bez DPH a hradí jí nájemce.
Pronajímající si vyhrazuje právo vybrat nájemce na základě jím zvolených kritérií.
Objekt je dobře dostupný kamionovou dopravou a disponuje dostatečným prostorem pro jejich manipulaci. Samotný objekt o zastavěné ploše 2048m2 je členěn na tři haly, šatnu, kotelnu, zázemí, kanceláře a technologické místnosti. Manipulační plocha a pozemky okolo budovy mají rozlohu 2936m2. Samotné haly pak mají rozměry: 395m2 výška 6,5m, 395m2 výška 6,5m, 395m2 výška 6,5m a další přilehlé místnosti .
Objekt je připojen k elektrické síti s jističem 80A. Objekt je připojen k elektrické síti s jističem 80A, přípojka obecního vodovodu a kanalizace je na hranici pozemku připravená k zavedení do objektu. Plynovod je v obecní komunikaci před objektem.
Střecha má vhodnou polohu pro umístění fotovoltaické elektrárny.
Kaliště je obec v okrese České Budějovice, část města České Budějovice (základní sídelní jednotka v rámci Českých Budějovic 5). Kaliště tvoří oproti zbytku města exklávu a je jeho nejvýchodnější částí.
Pro více informací kontaktujte makléře.
Provize za zprostředkování pronájmu je ve výši jednoho měsíčního nájmu bez DPH a hradí jí nájemce.
Pronajímající si vyhrazuje právo vybrat nájemce na základě jím zvolených kritérií.
| Cena: | 90 Kč / (za m2/měsíc) |
| Datum k nastěhování: | 10.05.2024 |
| Číslo zakázky: | REALITYMIX-388977 |
Podrobné informace
- Celková plocha: 500 m²
- Plocha parcely: 2048 m²
- Druh objektu: cihlová
- Stav objektu: velmi dobrý
- Druh prostor: Skladovací
- Elektřina: Elektro - 230 V, Elektro - 400 V
- Voda: Voda - dálkový vodovod
- Odpad: Kanalizace
- Energetická náročnost budovy: G - Mimořádně nehospodárná
- Energetický ukazatel podle vyhlášky: č. 264/2020 Sb.
Mapa
* Umístění na mapě je na základě GPS informací dodaných realitní kanceláří.
* Pozice na mapě je pouze orientační.
Podobné nemovitosti
Pronájem - kanceláře, 25 m²
Lannova tř, České Budějovice 6, České Budějovice
140 Kč za m2/měsíc
Pronájem - kanceláře, 42 m²
Pekárenská, České Budějovice 4, České Budějovice
4 500 Kč za měsíc
Pronájem - skladovací prostor, 2 000 m²
Pekárenská, České Budějovice 4, České Budějovice
Cena na vyžádání
Pronájem - skladovací prostor, 2 200 m²
Pekárenská, České Budějovice 4, České Budějovice
135 Kč za m2/měsíc