Pronájem - skladovací prostor, 1 850 m²
Kaliště, České Budějovice 5, České Budějovice
Cena na vyžádáníPronájem - skladovací prostor, 1 850 m²
Kaliště, České Budějovice 5, České Budějovice
Cena na vyžádání
G
Mimořádně nehospodárná
Pronájem výrobní a skladovací haly Kaliště u Českých Budějovic
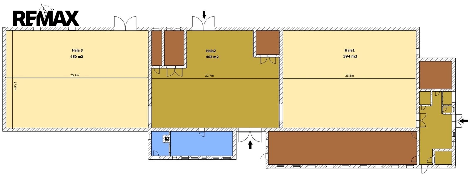
Nabízíme k pronájmu výrobní a skladovací halu - objekt na okraji obce Kaliště. Objekt je dobře dostupný kamionovou dopravou a disponuje dostatečným prostorem pro jejich manipulaci. Samotný objekt o zastavěné ploše 2048m2 je členěn na tři haly, šatnu, kotelnu, zázemí, kanceláře a technologické místnosti. Manipulační plocha a pozemky okolo budovy mají rozlohu 2936m2. Samotné haly pak mají rozměry: 395m2 výška 6,5m, 395m2 výška 6,5m, 395m2 výška 6,5m a další přilehlé místnosti .
Objekt je připojen k elektrické síti s jističem 80A. Po vybudování obecního vodovodu a kanalizace, jehož výstavba v obci právě probíhá, bude na ně objekt připojen.
Střecha má vhodnou polohu pro umístění fotovoltaické elektrárny.
Kaliště je obec v okrese České Budějovice, část města České Budějovice (základní sídelní jednotka v rámci Českých Budějovic 5). Kaliště tvoří oproti zbytku města exklávu a je jeho nejvýchodnější částí.
.
Pro více informací kontaktujte makléře.
Provize za zprostředkování pronájmu je ve výši jednoho měsíčního nájmu bez DPH a hradí jí nájemce. Pronajímající si vyhrazuje právo vybrat nájemce na základě jím zvolených kritérií.
Objekt je připojen k elektrické síti s jističem 80A. Po vybudování obecního vodovodu a kanalizace, jehož výstavba v obci právě probíhá, bude na ně objekt připojen.
Střecha má vhodnou polohu pro umístění fotovoltaické elektrárny.
Kaliště je obec v okrese České Budějovice, část města České Budějovice (základní sídelní jednotka v rámci Českých Budějovic 5). Kaliště tvoří oproti zbytku města exklávu a je jeho nejvýchodnější částí.
.
Pro více informací kontaktujte makléře.
Provize za zprostředkování pronájmu je ve výši jednoho měsíčního nájmu bez DPH a hradí jí nájemce. Pronajímající si vyhrazuje právo vybrat nájemce na základě jím zvolených kritérií.
| Cena: | Cena na vyžádání |
| Poznámka: | cena u makléře |
| Datum k nastěhování: | 01.01.2024 |
| Číslo zakázky: | REALITYMIX-376723 |
Podrobné informace
- Celková plocha: 1850 m²
- Plocha parcely: 2048 m²
- Druh objektu: cihlová
- Stav objektu: velmi dobrý
- Druh prostor: Skladovací
- Energetická náročnost budovy: G - Mimořádně nehospodárná
- Energetický ukazatel podle vyhlášky: č. 264/2020 Sb.
Mapa
* Umístění na mapě je na základě GPS informací dodaných realitní kanceláří.
* Pozice na mapě je pouze orientační.
Podobné nemovitosti
Pronájem - kanceláře, 25 m²
Lannova tř, České Budějovice 6, České Budějovice
140 Kč za m2/měsíc
Pronájem - kanceláře, 42 m²
Pekárenská, České Budějovice 4, České Budějovice
4 500 Kč za měsíc
Pronájem - skladovací prostor, 2 000 m²
Pekárenská, České Budějovice 4, České Budějovice
Cena na vyžádání
Pronájem - skladovací prostor, 2 200 m²
Pekárenská, České Budějovice 4, České Budějovice
135 Kč za m2/měsíc