Pronájem - kanceláře, 65 m²
Pardubická, Chrudim IV, Chrudim
11 020 Kč (za měsíc)Pronájem - kanceláře, 65 m²
Pardubická, Chrudim IV, Chrudim
11 020 Kč
(za měsíc)
G
Mimořádně nehospodárná
Upozornění pro vývojářeTento web používá již nepodporovanou knihovnu pro zobrazení mapy.Více informací najdete zde
Pronájem komerční Kanceláře, 65㎡
Pronájem skladu / kanceláře 65 m² – zrekonstruovaný, nízké náklady, skvělá dispozice
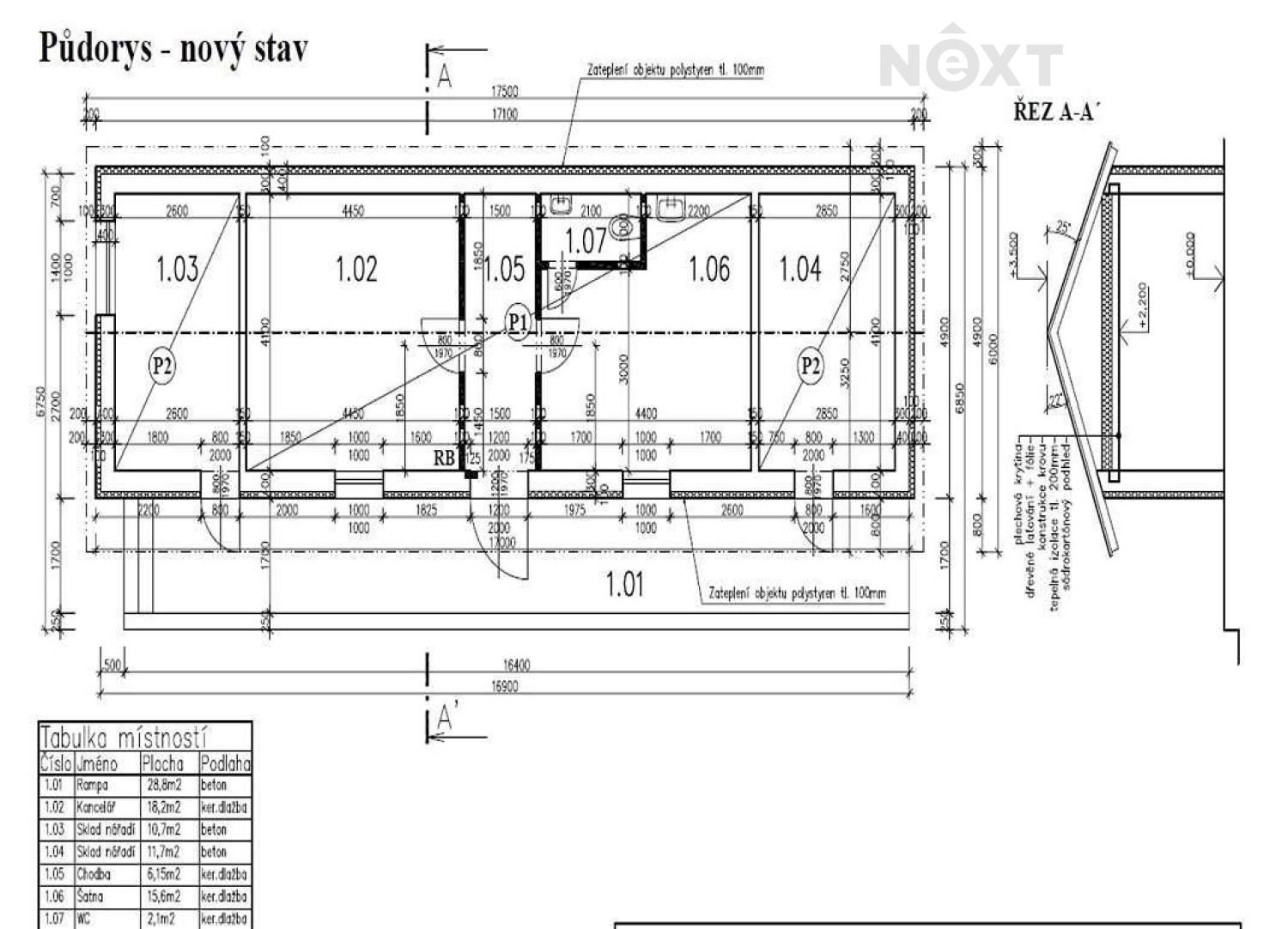
Nabízíme k pronájmu zrekonstruovaný sklad nebo provozovnu o celkové výměře 65 m², rozdělený do 4 samostatných místností, ideálních pro různé typy podnikání – drobnou výrobu, servis, skladování nebo řemeslnou činnost.
Vybavení a stav:
• Objekt je po čerstvé rekonstrukci vnější fasády – nová zateplená omítka, která výrazně snižuje tepelné ztráty.
• Topení vzduch–vzduch – ekonomický a efektivní způsob vytápění s minimálními náklady na energie.
• Každá místnost má vlastní vstup nebo je propojena, možnost flexibilního využití prostoru dle potřeb nájemce.
Lokalita:
• Dobrá dostupnost, vhodné pro příjezd autem nebo menší dodávkou.
• Možnost parkování v blízkosti objektu.
Výhody:
• Nízké provozní náklady
• Vhodné pro podnikání, řemesla i skladování
• Okamžitě k dispozici
Cena nájmu je 11.020 Kč + DPH + 1.980 Kč služby + energie. Kauce: 2 měsíční nájmy, odměna RK: 13.334 Kč
Neváhejte nás kontaktovat pro více informací nebo sjednání prohlídky!
Pro komunikaci uvádějte evidenční číslo zakázky N112902.
Nabízíme k pronájmu zrekonstruovaný sklad nebo provozovnu o celkové výměře 65 m², rozdělený do 4 samostatných místností, ideálních pro různé typy podnikání – drobnou výrobu, servis, skladování nebo řemeslnou činnost.
Vybavení a stav:
• Objekt je po čerstvé rekonstrukci vnější fasády – nová zateplená omítka, která výrazně snižuje tepelné ztráty.
• Topení vzduch–vzduch – ekonomický a efektivní způsob vytápění s minimálními náklady na energie.
• Každá místnost má vlastní vstup nebo je propojena, možnost flexibilního využití prostoru dle potřeb nájemce.
Lokalita:
• Dobrá dostupnost, vhodné pro příjezd autem nebo menší dodávkou.
• Možnost parkování v blízkosti objektu.
Výhody:
• Nízké provozní náklady
• Vhodné pro podnikání, řemesla i skladování
• Okamžitě k dispozici
Cena nájmu je 11.020 Kč + DPH + 1.980 Kč služby + energie. Kauce: 2 měsíční nájmy, odměna RK: 13.334 Kč
Neváhejte nás kontaktovat pro více informací nebo sjednání prohlídky!
Pro komunikaci uvádějte evidenční číslo zakázky N112902.
| Cena: | 11 020 Kč / (za měsíc) |
| Poznámka: | Cena nájmu je 11.020 Kč + DPH + 1.980 Kč služby + energie. Kauce: 2 měsíční nájmy, odměna RK: 13.334 Kč |
| Číslo zakázky: | REALITYMIX-112902 |
Podrobné informace
- Plocha kanceláří: 65 m²
- Druh objektu: cihlová
- Stav objektu: velmi dobrý
- Druh prostor: Kanceláře
- Umístění objektu: klidná část obce
- Energetická náročnost budovy: G - Mimořádně nehospodárná
- Energetický ukazatel podle vyhlášky: č. 78/2013 Sb.
Mapa
* Umístění na mapě je na základě GPS informací dodaných realitní kanceláří.
* Pozice na mapě je pouze orientační.
Podobné nemovitosti
Pronájem - kanceláře, 104 m²
Nový dvůr, Heřmanův Městec, Chrudim
11 500 Kč za měsíc
Pronájem - skladovací prostor, 2 209 m²
Seč, Chrudim
90 Kč za m2/měsíc
Pronájem - výrobní prostor, 130 m²
Rubešova, Chrudim IV, Chrudim
25 000 Kč za měsíc
Pronájem - kanceláře, 11 m²
Palackého třída, Chrudim
2 200 Kč za měsíc