Pronájem - restaurace, 179 m²
Velké náměstí, Hradec Králové
46 900 Kč (za měsíc)Pronájem - restaurace, 179 m²
Velké náměstí, Hradec Králové
46 900 Kč
(za měsíc)
F
Velmi nehospodárná
Pronájem restaurace na Velké náměstí
Dovolujeme si vám v exkluzivním zastoupení majitele nabídnout komerční prostor určený k provozu restauraci umístěnou v měšťanském domě na Velkém náměstí 39 v samotném centru Hradce Králové.
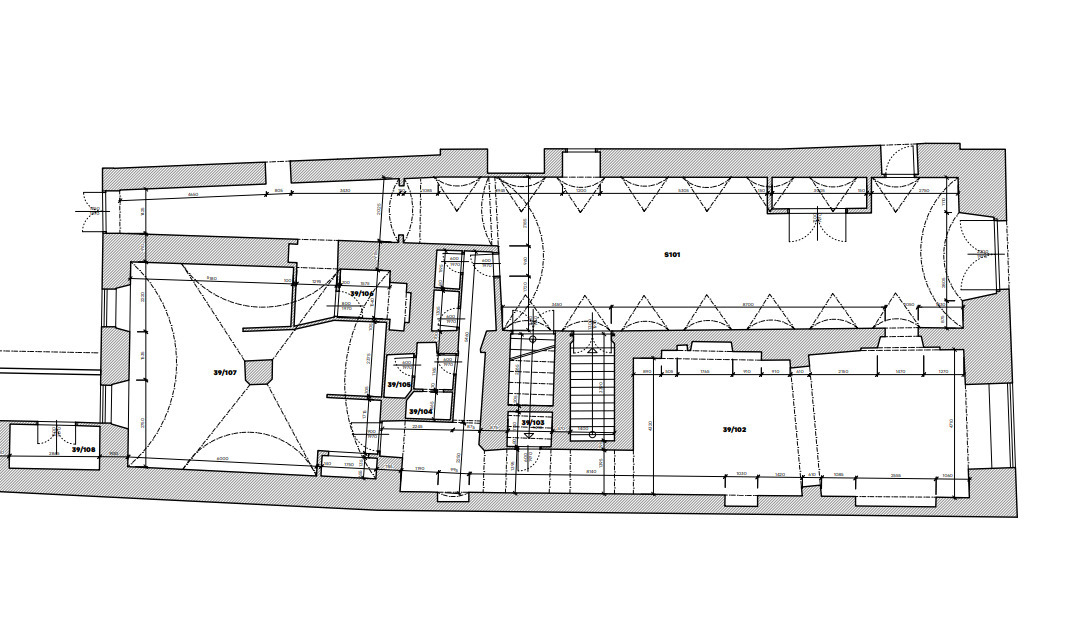
Prostor o celkové ploše 179 m² zahrnuje reprezentativní sál pro hosty o velikosti 53 m², prostornou kuchyni 50 m², 4 skladové prostory cca 60 m² a samostatné WC.
Bez odstupného!
Gastro provoz zabírá celé přízemí. Nabízí se přímý vstup z Velkého náměstí a ze společné chodby domu. Vlastník taky nabízí velkou zahrádku s barem a elektrorozvody ve vnitrobloku, která se také muže stát předmětem pronájmu. Za zahrádkou se nachází ještě tři rozlehlé terasy a lze na nich pořádat různé společenské akce nebo na ně rozšířit stále, případně sezonní kapacitu restaurace. Celková kapacita restaurace a zahrádky je velká, záleží na konceptu provozovatele. Zahrádku lze zastřešit a využívat celoročně.
Provoz je umístěn v objektu středověkého původu, který prošel řadou mladších přestaveb, z nichž nejvýznamnější je klasicistní. Proto zde naleznete impozantní vstupní chodbu s klenutými originálními stropy a sklepní klenuté stropy jsou také impozantní.
Domy s restaurací se nachází vedle Katedrály Sv. Ducha z r. 1307. Dům je již od r. 1958 zapsán v Památkovém katalogu Národního Památkového ústavu jako Kulturní památka ČR.
V současné době je objekt vytápěn jednotlivými plynovými kotli, ale vlastník je v procesu instalace energeticky úsporných tepelných čerpadel. Nad restaurací se nachází byty, proto má vlastník má zájem pronajmout konceptu restaurace, která není nadstandardně hlučná, a jejíž provozovatel má prokazatelné zkušenostmi v oboru pohostinství.
Pokud Vás zaujala možnost jednat o pronájmu tohoto objektu, kontaktujte nás. Poskytneme všechny podklady a zajistíme prohlídku.
Prostor o celkové ploše 179 m² zahrnuje reprezentativní sál pro hosty o velikosti 53 m², prostornou kuchyni 50 m², 4 skladové prostory cca 60 m² a samostatné WC.
Bez odstupného!
Gastro provoz zabírá celé přízemí. Nabízí se přímý vstup z Velkého náměstí a ze společné chodby domu. Vlastník taky nabízí velkou zahrádku s barem a elektrorozvody ve vnitrobloku, která se také muže stát předmětem pronájmu. Za zahrádkou se nachází ještě tři rozlehlé terasy a lze na nich pořádat různé společenské akce nebo na ně rozšířit stále, případně sezonní kapacitu restaurace. Celková kapacita restaurace a zahrádky je velká, záleží na konceptu provozovatele. Zahrádku lze zastřešit a využívat celoročně.
Provoz je umístěn v objektu středověkého původu, který prošel řadou mladších přestaveb, z nichž nejvýznamnější je klasicistní. Proto zde naleznete impozantní vstupní chodbu s klenutými originálními stropy a sklepní klenuté stropy jsou také impozantní.
Domy s restaurací se nachází vedle Katedrály Sv. Ducha z r. 1307. Dům je již od r. 1958 zapsán v Památkovém katalogu Národního Památkového ústavu jako Kulturní památka ČR.
V současné době je objekt vytápěn jednotlivými plynovými kotli, ale vlastník je v procesu instalace energeticky úsporných tepelných čerpadel. Nad restaurací se nachází byty, proto má vlastník má zájem pronajmout konceptu restaurace, která není nadstandardně hlučná, a jejíž provozovatel má prokazatelné zkušenostmi v oboru pohostinství.
Pokud Vás zaujala možnost jednat o pronájmu tohoto objektu, kontaktujte nás. Poskytneme všechny podklady a zajistíme prohlídku.
| Cena: | 46 900 Kč / (za měsíc) |
| Číslo zakázky: | REALITYMIX-464 |
Podrobné informace
- Zastavěná plocha: 179 m²
- Užitná plocha: 179 m²
- Počet podlaží objektu: 1
- Druh objektu: cihlová
- Stav objektu: velmi dobrý
- Typ zařízení: Restaurace
- Energetická náročnost budovy: F - Velmi nehospodárná
Mapa
* Umístění na mapě je na základě GPS informací dodaných realitní kanceláří.
* Pozice na mapě je pouze orientační.