Pronájem - kanceláře, 619 m²
Družstevní, Jirny, Praha-východ
111 550 Kč (za měsíc)Pronájem - kanceláře, 619 m²
Družstevní, Jirny, Praha-východ
111 550 Kč
(za měsíc)
G
Mimořádně nehospodárná
Pronájem komplexu kanceláří, skladů a vzorkových prodejen 619m² , Jirny, Tovární 26, Praha východ
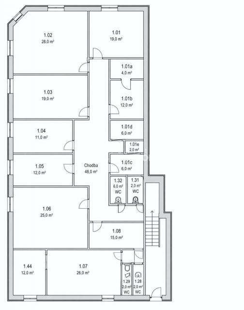
Nabízíme k pronájmu rozsáhlý komerční prostor vhodný jako sídlo firmy, kanceláře nebo e-shop s možností skladování včetně chlazených produktů a dalšího rozšíření v rámci areálu. Komerční prostor o celkové ploše 619 m² je ideální jako sídlo firmy s kombinací administrativního zázemí, showroomu a lehkého skladování i velkého skladu.Prostor je vhodný zejména pro e-commerce, obchodní činnost nebo firmy, které potřebují propojit kanceláře s praktickým zázemím pro logistiku a distribuci.Součástí prostoru je skladovací část vhodná nejen pro běžné zboží, ale také pro chlazené produkty, a to včetně chladicí místnosti o velikosti 43 m².Objekt nabízí dostatek sociálního zázemí včetně kuchyňky, což zajišťuje komfortní provoz pro zaměstnance i návštěvy.Velkou výhodou je vysoká variabilita prostoru – dispozice lze přizpůsobit konkrétním potřebám nájemce. Kanceláře a vzorkovny i sklady je ještě možno rozšířit o další prostory které se nabízejí odděleně v rámci areálu což umožňuje další růst bez nutnosti stěhování.Přístup je možný jak přímo z ulice (vhodné pro klienty a obchodní partnery), tak ze dvora s pohodlným zázemím pro zásobování.Budova je zateplená. Průkaz energetické náročnosti zatím nebyl vydán, proto je administrativně vedena třída G (údaj neodpovídá skutečné spotřebě).Lokalita nabízí výbornou dopravní dostupnost – rychlé napojení na dálnici D11 a Pražský okruh, dobré spojení do centra Prahy i okolních průmyslových zón. Zastávka MHD se nachází přímo před budovou.(směr Černý Most, Brandýs nad Labem, Úvaly a další směry).Pro více informací a domluvení prohlídky nás kontaktujte.
| Cena: | 111 550 Kč / (za měsíc) |
| Poznámka: | Cena je bez DPH |
| Datum k nastěhování: | 01.08.2026 |
| Číslo zakázky: | REALITYMIX-11666 |
Podrobné informace
- Plocha kanceláří: 619 m²
- Plocha parcely: 619 m²
- Druh objektu: smíšená
- Stav objektu: velmi dobrý
- Druh prostor: Kanceláře
- Ostatní: Bezbarierový přístup, Výtah, Parkoviště, Vrátnice, Sociální zařízení
- Umístění objektu: centrum obce
- Doprava: dálnice, MHD, autobus
- Elektřina: Elektro - 230 V, Elektro - 400 V
- Voda: Voda - dálkový vodovod
- Plyn: Plynovod
- Topení: Jiné
- Energetická náročnost budovy: G - Mimořádně nehospodárná
Mapa
* Umístění na mapě je na základě GPS informací dodaných realitní kanceláří.
* Pozice na mapě je pouze orientační.
Podobné nemovitosti
Pronájem - kanceláře, 467 m²
Modletice, Praha-východ
117 000 Kč za měsíc
Pronájem - kanceláře, 450 m²
Toušeňská, Nehvizdy, Praha-východ
120 000 Kč za měsíc
Pronájem - kanceláře, 700 m²
Modletice, Praha-východ
117 000 Kč za měsíc
Pronájem - kanceláře, 100 m²
Černokostelecká, Radošovice, Říčany, Praha-východ
115 890 Kč za měsíc