Pronájem - restaurace, 156 m²
Sokolovská, Rybáře, Karlovy Vary
18 000 Kč (za měsíc)Pronájem - restaurace, 156 m²
Sokolovská, Rybáře, Karlovy Vary
18 000 Kč
(za měsíc)
G
Mimořádně nehospodárná
Přenechání nájemních práv se odstupným – zavedený bar / čajovna
Nabízím přenechání nájemních práv s odstupným ke kompletně zařízenému a funkčnímu prostoru vedenému jako specializovaný bar / čajovna, připravenému k okamžitému provozu bez nutnosti dalších investic.
Prostor je promyšleně členěn do několika zón:
při vstupu se nachází posezení se stolečky,
navazuje herní kout se třemi herními konzolemi PlayStation,
dále hlavní barová část se stolovým sezením,
samostatná soukromá místnost s karaoke systémem, ideální pro večírky, narozeniny, oslavy a party.
V podzemním podlaží jsou k dispozici:
dámské a pánské sociální zařízení,
technická místnost.
Prostory jsou po rekonstrukci, vybaveny novou elektroinstalací s chytrým ovládáním, kamerovým systémem a jsou kompletně zařízené. Vše je připraveno k okamžitému zahájení provozu – přesně tak, jak vidíte na fotografiích.
Jedná se o odstoupení nájemní smlouvy včetně prodeje veškerého vybavení. Tento hotový business může být vaším novým podnikáním i zábavou.
Podmínky:
měsíční nájemné: 18.000 Kč,
měsíční náklady na energie: cca 10.000 Kč,
nájemní smlouva: možnost uzavření na 5 let a více (dle dohody),
odstupné včetně veškerého vybavení: více info po telefonu
V případě zájmu je možné veškeré podmínky osobně projednat při prohlídce.
???? Neváhejte mě kontaktovat pro více informací nebo domluvení termínu prohlídky. Pronajímající si vyhrazuje právo vybrat nájemce na základě jím zvolených kritérií.
Prostor je promyšleně členěn do několika zón:
při vstupu se nachází posezení se stolečky,
navazuje herní kout se třemi herními konzolemi PlayStation,
dále hlavní barová část se stolovým sezením,
samostatná soukromá místnost s karaoke systémem, ideální pro večírky, narozeniny, oslavy a party.
V podzemním podlaží jsou k dispozici:
dámské a pánské sociální zařízení,
technická místnost.
Prostory jsou po rekonstrukci, vybaveny novou elektroinstalací s chytrým ovládáním, kamerovým systémem a jsou kompletně zařízené. Vše je připraveno k okamžitému zahájení provozu – přesně tak, jak vidíte na fotografiích.
Jedná se o odstoupení nájemní smlouvy včetně prodeje veškerého vybavení. Tento hotový business může být vaším novým podnikáním i zábavou.
Podmínky:
měsíční nájemné: 18.000 Kč,
měsíční náklady na energie: cca 10.000 Kč,
nájemní smlouva: možnost uzavření na 5 let a více (dle dohody),
odstupné včetně veškerého vybavení: více info po telefonu
V případě zájmu je možné veškeré podmínky osobně projednat při prohlídce.
???? Neváhejte mě kontaktovat pro více informací nebo domluvení termínu prohlídky. Pronajímající si vyhrazuje právo vybrat nájemce na základě jím zvolených kritérií.
| Cena: | 18 000 Kč / (za měsíc) |
| Datum k nastěhování: | 12.01.2026 |
| Číslo zakázky: | REALITYMIX-430121 |
Podrobné informace
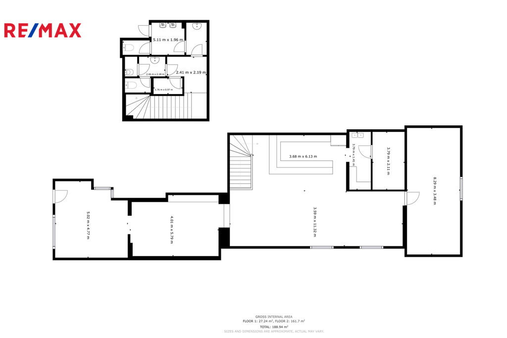
- Zastavěná plocha: 156 m²
- Užitná plocha: 156 m²
- Plocha parcely: 396 m²
- Počet podlaží objektu: 4
- Druh objektu: cihlová
- Stav objektu: velmi dobrý
- Typ zařízení: Restaurace
- Plyn: Plynovod
- Odpad: Kanalizace
- Energetická náročnost budovy: G - Mimořádně nehospodárná
- Energetický ukazatel podle vyhlášky: č. 264/2020 Sb.
Mapa
* Umístění na mapě je na základě GPS informací dodaných realitní kanceláří.
* Pozice na mapě je pouze orientační.
Podobné nemovitosti
Pronájem - restaurace, 75 m²
Jáchymovská, Ostrov, Karlovy Vary
15 000 Kč za měsíc
Pronájem - penzion, 125 m²
Andělská Hora, Karlovy Vary
Cena na vyžádání
Pronájem - restaurace, 75 m²
Jáchymovská, Ostrov, Karlovy Vary
15 000 Kč za měsíc
Pronájem - hotel, 340 m²
Libušina, Karlovy Vary
Cena na vyžádání