Pronájem bytu, 3+1, 73 m²
Pražská, Louny
17 000 Kč (za měsíc)Pronájem bytu, 3+1, 73 m²
Pražská, Louny
17 000 Kč
(za měsíc)
G
Mimořádně nehospodárná
Pronájem byt 3+1/B, 74,5 m2, Louny, ul. Pražská, 3.NP, cihla, sklep
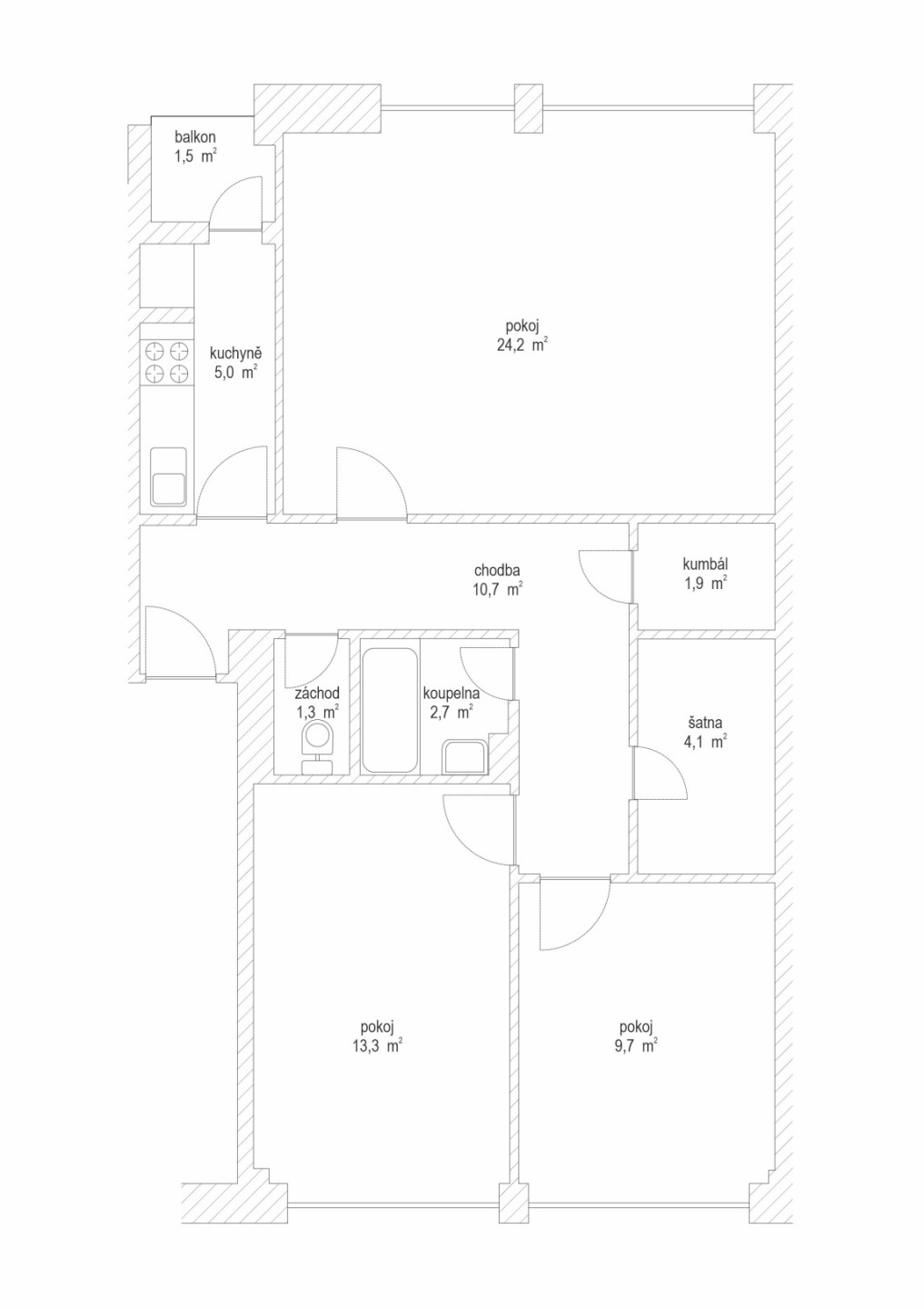
Nabízíme k pronájmu byt s dispozicí 3+1 o ploše 73 m2 + balkón 1,5 m2 v Lounech, ul. Pražská. Byt se nachází ve 2.patře cihlového domu bez výtahu.
Byt je ve výborném stavu, po nové kompletní rekonstrukci a nabízí se zařízený pouze s kuchyňskou linkou se spotřebiči vč. myčky a lednice s mrazákem.
Byt disponuje vstupní chodbou, kuchyní se vstupem na balkón, obývacím pokojem, pokojem, ložnicí, komorou s pračkou, šatnou, koupelnou s vanou, WC samostatné. K bytu náleží sklepní kóje.
V okolí je veškerá občanská vybavenost a dobrá dopravní dostupnost. K nastěhování ihned.
Byt je ve výborném stavu, po nové kompletní rekonstrukci a nabízí se zařízený pouze s kuchyňskou linkou se spotřebiči vč. myčky a lednice s mrazákem.
Byt disponuje vstupní chodbou, kuchyní se vstupem na balkón, obývacím pokojem, pokojem, ložnicí, komorou s pračkou, šatnou, koupelnou s vanou, WC samostatné. K bytu náleží sklepní kóje.
V okolí je veškerá občanská vybavenost a dobrá dopravní dostupnost. K nastěhování ihned.
| Cena: | 17 000 Kč / (za měsíc) |
| Poznámka: | + poplatky a služby 4.700,-Kč (pro 4 os.)+ele.energie, kauce 34.000,-Kč, provize RK |
| Dispozice/podlahová plocha: | 3+1/73 m² |
| Číslo zakázky: | REALITYMIX-13891 |
Podrobné informace
- Dispozice bytu: 3+1
- Číslo podlaží v domě: 3
- Počet podlaží objektu: 4
- Celková podlahová plocha: 73 m²
- Druh objektu: cihlová
- Stav objektu: po rekonstrukci
- Vlastnictví: osobní
- Balkon: 2 m²
- Energetická náročnost budovy: G - Mimořádně nehospodárná
Mapa
* Umístění na mapě je na základě GPS informací dodaných realitní kanceláří.
* Pozice na mapě je pouze orientační.