Pronájem bytu, 1+1, 41 m²
Jana Palacha, Mladá Boleslav II, Mladá Boleslav
14 000 Kč (za měsíc)Pronájem bytu, 1+1, 41 m²
Jana Palacha, Mladá Boleslav II, Mladá Boleslav
14 000 Kč
(za měsíc)
B
Úsporná
Světlý 1+1 se sklepem
Dobrý den, dnes Vám chci představit hezký byt 1+1 v Mladé Boleslavi. Můžete se těšit na byt v 6. podlaží panelového domu s výtahem. K bytu přísluší i sklep. Byt bude skvěle sloužit jak k vlastnímu bydlení, tak i k pronájmu, vzhledem ke své blízkosti ke Škodovce. Hledáte-li bydlení pro sebe nebo k uložení volné hotovosti v době zvyšující se inflace, bude tato nabídka pro Vás zajímavá. Nabízím vám byt do kterého se vejdou jeden nebo dva lidi. Tedy je vhodný jako startovací, či naopak pro někoho, kdo chce mít bydlení bez starostí s údržbou velkého bytu, nebo domu. Díky své poloze blízko největšího zaměstnavatele Škoda auto a velikosti se bude také dobře pronajímat.
Byt je v osobním vlastnictví bez právních vad, má 41 metrů čtverečních a přísluší k němu sklep, který má plochu 2 metry čtvereční. Dům je zateplený, má vyměněny okna a nové stoupačky. Vstupní dveře byly taktéž vyměněny spolu se zvonky a kódovým zámkem. V této době vysokých nákladů je zajímavá skutečnost i to že energetická náročnost je na stupni B, tedy velmi úsporná.
Jistě Vás zajímají i náklady na bydlení. V tuto chvíli je předpis záloh stanovený na 2700,-Kč + elektřina.
Byt je v osobním vlastnictví bez právních vad, má 41 metrů čtverečních a přísluší k němu sklep, který má plochu 2 metry čtvereční. Dům je zateplený, má vyměněny okna a nové stoupačky. Vstupní dveře byly taktéž vyměněny spolu se zvonky a kódovým zámkem. V této době vysokých nákladů je zajímavá skutečnost i to že energetická náročnost je na stupni B, tedy velmi úsporná.
Jistě Vás zajímají i náklady na bydlení. V tuto chvíli je předpis záloh stanovený na 2700,-Kč + elektřina.
| Cena: | 14 000 Kč / (za měsíc) |
| Poznámka: | Zálohy na služby 2700,- + elektřina. Jistota 1x nájem se službami. |
| Datum k nastěhování: | 25.09.2023 |
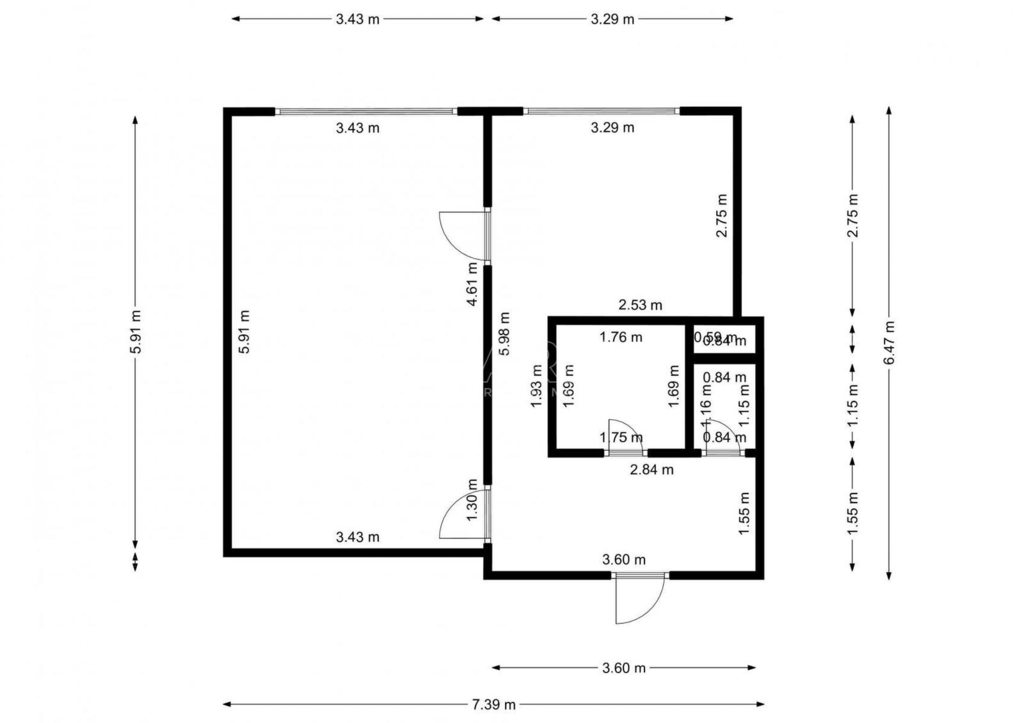
| Dispozice/podlahová plocha: | 1+1/41 m² |
| Číslo zakázky: | REALITYMIX-18658 |
Podrobné informace
- Dispozice bytu: 1+1
- Číslo podlaží v domě: 6
- Počet podlaží objektu: 8
- Užitná plocha: 41 m²
- Celková podlahová plocha: 41 m²
- Druh objektu: panelová
- Stav objektu: velmi dobrý
- Vlastnictví: osobní
- Sklep: 2 m²
- Umístění objektu: centrum obce
- Doprava: dálnice, silnice, MHD, autobus
- Elektřina: Elektro - 230 V
- Voda: Voda - dálkový vodovod
- Telekomunikace: Internet
- Topení: Ústřední - dálkové
- Odpad: Kanalizace
- Ostatní rozvody: Kabelová televize, Kabelové rozvody
- Energetická náročnost budovy: B - Úsporná
- Ukazatel energetické náročnosti budovy: 69 kWh/m²
- Energetický ukazatel podle vyhlášky: č. 148/2007 Sb.
Mapa
* Umístění na mapě je na základě GPS informací dodaných realitní kanceláří.
* Pozice na mapě je pouze orientační.
Podobné nemovitosti
Pronájem bytu, 1+1, 40 m²
Ivana Olbrachta, Mnichovo Hradiště, Mladá Boleslav
12 500 Kč za měsíc
Pronájem bytu, 1+1, 38 m²
Pod Loretou, Kosmonosy, Mladá Boleslav
15 000 Kč za měsíc
Pronájem bytu, 1+1, 41 m²
Jana Palacha, Mladá Boleslav II, Mladá Boleslav
15 000 Kč za měsíc
Pronájem bytu, 2+1, 57 m²
Pražská, Benátky nad Jizerou II, Mladá Boleslav
14 000 Kč za měsíc