Pronájem bytu, 3+kk, 62 m²
Česká, Most
12 600 Kč (za měsíc)Pronájem bytu, 3+kk, 62 m²
Česká, Most
12 600 Kč
(za měsíc)
G
Mimořádně nehospodárná
Pronájem bytu 3+kk 62 m² v Mostě
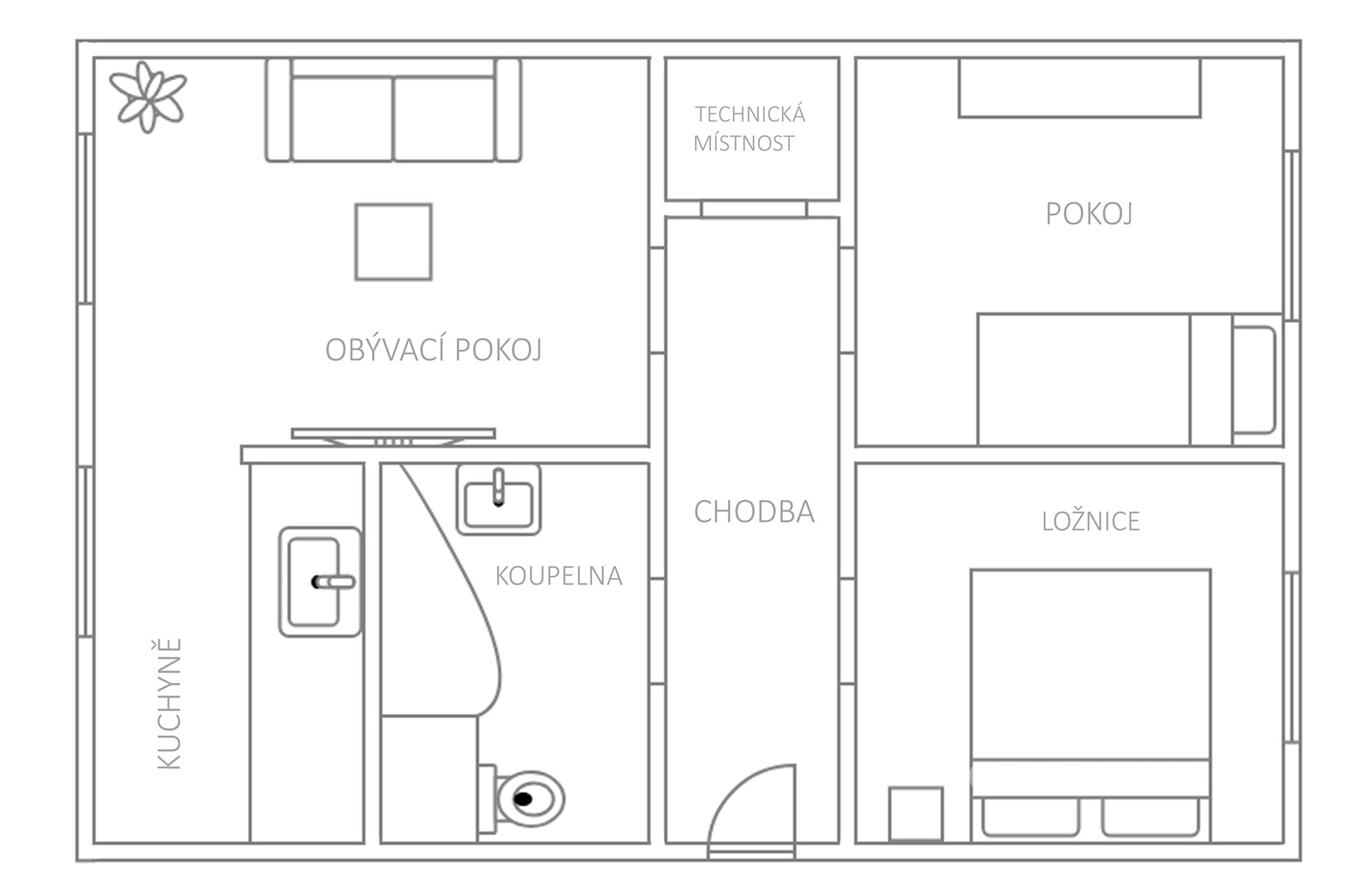
Ráda bych vám nabídla k dlouhodobému podnájmu hezký byt 3+kk o výměře 62 m² v ulici Česká v Mostě.
Jakmile vstoupíme do chodby, máme po pravé straně dvě samostatné místnosti. V ložnici je skříň. Vlevo se nachází koupelna s rohovou vanou, umyvadlem a toaletou. Naproti vstupním dveřím je technická místnost, kde je možné uložit velké množství věcí. Vedle této místnosti je velký světlý obývací pokoj s kuchyňským koutem. V kuchyni je kromě kuchyňské linky s elektrickým sporákem i lednice. V obýváku je konferenční stolek.
V celém bytě jsou nové dveře a osvětlení.
Dům je čistý a udržovaný.
Pokoje jsou na fotografiích i vizualizovány pro lepší představu jak by mohly zařízené vypadat.
Byt je volný, ihned k nastěhování. Náklady na bydlení jsou ve výši 12 600 Kč nájemné + služby 2 300, Kč/ osoba (další osoba + 700,Kč). Elektřina a plyn budou přepsány na nájemníka. Při podpisu nájemní smlouvy je požadována vratná kauce ve výši 15 000, Kč. Dále se skládá rezervační poplatek při podpisu rezervační smlouvy ve výši 12 600 + DPH). Nabídka platí pouze pro zájemce s pracovní smlouvou. V případě zájmu o prohlídku nebo o více informací kontaktujte, prosím, makléřku.
Jakmile vstoupíme do chodby, máme po pravé straně dvě samostatné místnosti. V ložnici je skříň. Vlevo se nachází koupelna s rohovou vanou, umyvadlem a toaletou. Naproti vstupním dveřím je technická místnost, kde je možné uložit velké množství věcí. Vedle této místnosti je velký světlý obývací pokoj s kuchyňským koutem. V kuchyni je kromě kuchyňské linky s elektrickým sporákem i lednice. V obýváku je konferenční stolek.
V celém bytě jsou nové dveře a osvětlení.
Dům je čistý a udržovaný.
Pokoje jsou na fotografiích i vizualizovány pro lepší představu jak by mohly zařízené vypadat.
Byt je volný, ihned k nastěhování. Náklady na bydlení jsou ve výši 12 600 Kč nájemné + služby 2 300, Kč/ osoba (další osoba + 700,Kč). Elektřina a plyn budou přepsány na nájemníka. Při podpisu nájemní smlouvy je požadována vratná kauce ve výši 15 000, Kč. Dále se skládá rezervační poplatek při podpisu rezervační smlouvy ve výši 12 600 + DPH). Nabídka platí pouze pro zájemce s pracovní smlouvou. V případě zájmu o prohlídku nebo o více informací kontaktujte, prosím, makléřku.
| Cena: | 12 600 Kč / (za měsíc) |
| Datum k nastěhování: | 19.01.2026 |
| Dispozice/podlahová plocha: | 3+kk/62 m² |
| Číslo zakázky: | REALITYMIX-973351 |
Podrobné informace
- Dispozice bytu: 3+kk
- Číslo podlaží v domě: 3
- Počet podlaží objektu: 8
- Celková podlahová plocha: 62 m²
- Druh objektu: panelová
- Stav objektu: dobrý
- Vlastnictví: družstevní
- Druh bytu: V panelovém domě
- Elektřina: Elektro - 230 V
- Energetická náročnost budovy: G - Mimořádně nehospodárná
Mapa
* Umístění na mapě je na základě GPS informací dodaných realitní kanceláří.
* Pozice na mapě je pouze orientační.