Pronájem - komerční objekt, administrativní budova, 335 m²
Hodolanská, Hodolany, Olomouc
50 000 Kč (za měsíc)Pronájem - komerční objekt, administrativní budova, 335 m²
Hodolanská, Hodolany, Olomouc
50 000 Kč
(za měsíc)
G
Mimořádně nehospodárná
Pronájem administrativní budovy 335 m2 - Hodolanská, Olomouc
Hledáte nové místo k podnikání? Tady je:
Nabízíme k pronájmu samostatnou administrativní budovu o 3 nadzemních podlažích v žádané lokalitě ulice Ho dolanská. Objekt poskytuje 335 m2 užitné plochy kanceláří a nabízí variabilní uspořádání vhodné jako sídlo firmy, zázemí pro IT společnosti, e-shopy, administrativu či služby. Budova stojí na pozemku: 335 m2.
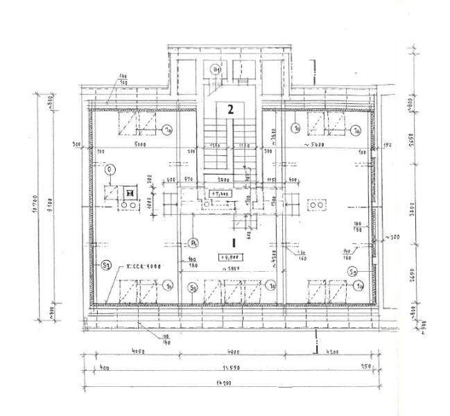
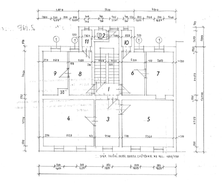
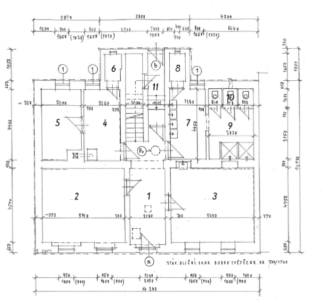
Dispozice a plochy (přiložené půdorysy jsou orientační):
Celkem 11 kanceláří (od cca 10 m²)
Podkroví: velkorysý open space cca 100 m²
Přízemí: 4 kanceláře, kuchyňka, 2 menší sklady, sociální zařízení
Mezipatra (1. a 2. NP): samostatné WC
2. NP: 7 kanceláří + 2 menší sklady
Sklep: není
Technické vybavení:
Klimatizace ve vybraných prostorách
Vytápění centrálním novým plynovým kotlem
Inženýrské sítě: voda, plyn, elektřina, kanalizace
Exteriér:
Dvorek cca 150 m2
Plechová garáž cca 38 m2
Lokalita:
Vynikající dostupnost MHD
Rychlé napojení na výpadovky na Ostravu, Šternberk a Přerov
Kompletní občanská vybavenost v okolí
Finanční podmínky
Nájemné: 50 000 Kč / měsíc + DPH
Služby: 13 000 Kč / měsíc + DPH
Jistota (kauce): 63 000 Kč
Ideální pro reprezentativní a funkční zázemí pro vaši firmu s výbornou dostupností.
Ráda vám prostory osobně představím - domluvte si prohlídku ještě dnes.
Nabízíme k pronájmu samostatnou administrativní budovu o 3 nadzemních podlažích v žádané lokalitě ulice Ho dolanská. Objekt poskytuje 335 m2 užitné plochy kanceláří a nabízí variabilní uspořádání vhodné jako sídlo firmy, zázemí pro IT společnosti, e-shopy, administrativu či služby. Budova stojí na pozemku: 335 m2.
Dispozice a plochy (přiložené půdorysy jsou orientační):
Celkem 11 kanceláří (od cca 10 m²)
Podkroví: velkorysý open space cca 100 m²
Přízemí: 4 kanceláře, kuchyňka, 2 menší sklady, sociální zařízení
Mezipatra (1. a 2. NP): samostatné WC
2. NP: 7 kanceláří + 2 menší sklady
Sklep: není
Technické vybavení:
Klimatizace ve vybraných prostorách
Vytápění centrálním novým plynovým kotlem
Inženýrské sítě: voda, plyn, elektřina, kanalizace
Exteriér:
Dvorek cca 150 m2
Plechová garáž cca 38 m2
Lokalita:
Vynikající dostupnost MHD
Rychlé napojení na výpadovky na Ostravu, Šternberk a Přerov
Kompletní občanská vybavenost v okolí
Finanční podmínky
Nájemné: 50 000 Kč / měsíc + DPH
Služby: 13 000 Kč / měsíc + DPH
Jistota (kauce): 63 000 Kč
Ideální pro reprezentativní a funkční zázemí pro vaši firmu s výbornou dostupností.
Ráda vám prostory osobně představím - domluvte si prohlídku ještě dnes.
| Cena: | 50 000 Kč / (za měsíc) |
| Poznámka: | + DPH, + 13 000 Kč zálohy na služby, |
| Datum k nastěhování: | 16.01.2026 |
| Plocha: | 335 m² |
| Číslo zakázky: | REALITYMIX-233285 |
Podrobné informace
- Celková plocha: 335 m²
- Počet podlaží objektu: 3
- Počet míst k parkování: 1
- Druh objektu: cihlová
- Stav objektu: dobrý
- Účel budovy: Administrativní budova
- Doprava: vlak, dálnice, silnice, MHD, autobus
- Elektřina: Elektro - 230 V
- Voda: Voda - dálkový vodovod
- Telekomunikace: Telefon, Internet
- Topení: Ústřední - plynové
- Odpad: Kanalizace
- Energetická náročnost budovy: G - Mimořádně nehospodárná
Mapa
* Umístění na mapě je na základě GPS informací dodaných realitní kanceláří.
* Pozice na mapě je pouze orientační.
Podobné nemovitosti
Pronájem - komerční objekt, administrativní budova, 488 m²
Libušina, Chválkovice, Olomouc
48 800 Kč za měsíc
Pronájem - komerční objekt, sklad, 19 000 m²
Slavonín, Olomouc
Cena na vyžádání
Pronájem - komerční objekt, sklad, 5 000 m²
Křelovská, Řepčín, Olomouc
Cena na vyžádání
Pronájem - komerční objekt, sklad, 26 430 m²
Olomouc
Cena na vyžádání