Pronájem - kanceláře, 275 m²
Varenská, Moravská Ostrava a Přívoz, Ostrava, Ostrava-město
73 195 Kč (za měsíc)Pronájem - kanceláře, 275 m²
Varenská, Moravská Ostrava a Přívoz, Ostrava, Ostrava-město
73 195 Kč
(za měsíc)
C
Úsporná
Pronájem kancelářských prostor 275 m2
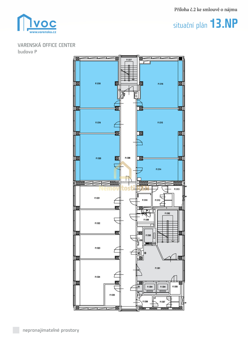
Moderní a atraktivní prostředí nabízí kancelářské prostory o celkové ploše 275 m², které se nacházejí ve 13. patře administrativní budovy.
Jedná se o oddělený kancelářský celek, který tvoří 4 kanceláře o velikosti cca 40 m² a 2 kanceláře o velikosti cca 20 m², doplněné o společné prostory – chodbu a sociální zázemí.
Preferován je pronájem celého prostoru jako jednoho celku.
Přístup do objektu je zajištěn schodištěm i výtahy.
Bezpečnost budovy zaručuje non-stop bezpečnostní služba, kontrolovaný vstup přes recepci s nepřetržitým provozem a elektronické zabezpečení celého objektu.
Kanceláře jsou klimatizované, světlé a nabízejí krásný výhled na Ostravu. Jsou vybaveny hliníkovými žaluziemi a rozvody PC sítí a internetu. V jedné z místností je umístěna kuchyňská linka.
V okolí je veškerá občanská vybavenost, včetně nákupního centra Futurum, restaurací i služeb. Výborná je rovněž dopravní dostupnost – v blízkosti se nachází zastávky MHD (tramvaj, autobus, trolejbus) i přímé napojení na hlavní silniční tahy a dálnici.
Cena nájmu: 265,83 Kč / m² / měsíc/ bez DPH
Služby a energie: 180 Kč / m² / měsíc / bez DPH
Pokud Vás tato nabídka zaujala, neváhejte mě kontaktovat.
Těším se na Vás na společné prohlídce!
Jedná se o oddělený kancelářský celek, který tvoří 4 kanceláře o velikosti cca 40 m² a 2 kanceláře o velikosti cca 20 m², doplněné o společné prostory – chodbu a sociální zázemí.
Preferován je pronájem celého prostoru jako jednoho celku.
Přístup do objektu je zajištěn schodištěm i výtahy.
Bezpečnost budovy zaručuje non-stop bezpečnostní služba, kontrolovaný vstup přes recepci s nepřetržitým provozem a elektronické zabezpečení celého objektu.
Kanceláře jsou klimatizované, světlé a nabízejí krásný výhled na Ostravu. Jsou vybaveny hliníkovými žaluziemi a rozvody PC sítí a internetu. V jedné z místností je umístěna kuchyňská linka.
V okolí je veškerá občanská vybavenost, včetně nákupního centra Futurum, restaurací i služeb. Výborná je rovněž dopravní dostupnost – v blízkosti se nachází zastávky MHD (tramvaj, autobus, trolejbus) i přímé napojení na hlavní silniční tahy a dálnici.
Cena nájmu: 265,83 Kč / m² / měsíc/ bez DPH
Služby a energie: 180 Kč / m² / měsíc / bez DPH
Pokud Vás tato nabídka zaujala, neváhejte mě kontaktovat.
Těším se na Vás na společné prohlídce!
| Cena: | 73 195 Kč / (za měsíc) |
| Poznámka: | + služby a energie 49 562,- Kč |
| Datum k nastěhování: | 01.04.2026 |
| Číslo zakázky: | REALITYMIX-0007 |
Podrobné informace
- Plocha kanceláří: 275 m²
- Plocha parcely: 1518 m²
- Druh objektu: skeletová
- Stav objektu: velmi dobrý
- Druh prostor: Kanceláře
- Umístění objektu: centrum obce
- Doprava: vlak, dálnice, silnice, MHD, autobus
- Elektřina: Elektro - 230 V
- Ostatní rozvody: Kabelové rozvody
- Energetická náročnost budovy: C - Úsporná
- Energetický ukazatel podle vyhlášky: č. 78/2013 Sb.
Mapa
* Umístění na mapě je na základě GPS informací dodaných realitní kanceláří.
* Pozice na mapě je pouze orientační.
Podobné nemovitosti
Pronájem - kanceláře, 100 m²
Masarykovo náměstí, Moravská Ostrava a Přívoz, Ostrava, Ostrava-město
52 070 Kč za měsíc
Pronájem - kanceláře, 120 m²
28. října, Moravská Ostrava a Přívoz, Ostrava, Ostrava-město
59 460 Kč za měsíc
Pronájem - kanceláře, 806 m²
Hornopolní, Moravská Ostrava a Přívoz, Ostrava, Ostrava-město
320 Kč za m2/měsíc
Pronájem - kanceláře, 3 000 m²
28. října, Moravská Ostrava a Přívoz, Ostrava, Ostrava-město
13,00 € za m2/měsíc