Pronájem - kanceláře, 25 m²
Tržní, Vítkovice, Ostrava, Ostrava-město
7 200 Kč (za měsíc)Pronájem - kanceláře, 25 m²
Tržní, Vítkovice, Ostrava, Ostrava-město
7 200 Kč
(za měsíc)
G
Mimořádně nehospodárná
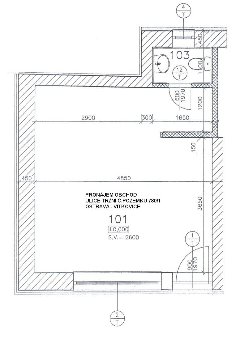
Pronájem, nebytový prostor 25m2, Ostrava - Vítkovice
Pronájem nebytového prostoru v centru Ostravy - Vítkovice, na ul. Tržní. Prostor o výměře 25 m2 má samostatný vstup přímo z ulice a nachází se u hlavní ulice Jeremenkova. Prostor je vhodné využít například jako kancelář, provozovnu, zastoupení firmy, prodejnu, salon a jiné. Prostor byl doposud využíván jako kancelář firmy. Před domem je velké parkoviště s možností parkování přímo v objektu. Veškerá občanská vybavenost se nachází v bezprostředním blízkosti. V případě zájmu, je možné se dohodnout i na pronájmu garsonky, která se nachází nad prostorem, případně ji využít taktéž jako kancelář či školící místnost. Nad prostorem je možné umístit vlastní reklamu. Prostor se pronajímá bez vybavení, přiložené fotky jsou jako vizualizace. K dispozici dle dohody.
| Cena: | 7 200 Kč / (za měsíc) |
| Poznámka: | + záloha na elektřinu 700,- + teplo a voda paušální rozpočet, kauce ve výši 2 měsíčních nájmů, hradí se provize RK |
| Datum k nastěhování: | 01.02.2026 |
| Číslo zakázky: | REALITYMIX-0022 |
Podrobné informace
- Plocha kanceláří: 25 m²
- Plocha parcely: 25 m²
- Druh objektu: smíšená
- Stav objektu: velmi dobrý
- Druh prostor: Kanceláře
- Umístění objektu: centrum obce
- Doprava: silnice, MHD, autobus
- Komunikace: asfaltová
- Elektřina: Elektro - 230 V
- Voda: Voda - dálkový vodovod
- Plyn: Plynovod
- Odpad: Kanalizace
- Energetická náročnost budovy: G - Mimořádně nehospodárná
- Energetický ukazatel podle vyhlášky: č. 264/2020 Sb.
Mapa
* Umístění na mapě je na základě GPS informací dodaných realitní kanceláří.
* Pozice na mapě je pouze orientační.
Podobné nemovitosti
Pronájem - kanceláře, 43 m²
Dlouhá, Moravská Ostrava a Přívoz, Ostrava, Ostrava-město
5 982 Kč za měsíc
Pronájem - kanceláře, 30 m²
Žerotínova, Moravská Ostrava a Přívoz, Ostrava, Ostrava-město
5 240 Kč za měsíc
Pronájem - kanceláře, 36 m²
U Studia, Ostrava-Jih, Ostrava, Ostrava-město
7 200 Kč za měsíc
Pronájem - kanceláře, 26 m²
Nádražní, Moravská Ostrava a Přívoz, Ostrava, Ostrava-město
6 580 Kč za měsíc