
Pronájem - skladovací prostor, 704 m²
U Studia, Ostrava-Jih, Ostrava, Ostrava-město
95 000 Kč (za měsíc)Pronájem - skladovací prostor, 704 m²
U Studia, Ostrava-Jih, Ostrava, Ostrava-město
95 000 Kč
(za měsíc)
G
Mimořádně nehospodárná

Upozornění pro vývojářeTento web používá již nepodporovanou knihovnu pro zobrazení mapy.Více informací najdete zde
Pronájem skladovací haly, U Studia ul., Ostrava - Zábřeh
Nabízíme pronájem skladovací haly v komerčním areálu na ulici U Studia v Ostravě – Zábřehu, naproti jednoho z největších nákupního center v Moravskoslezském kraji - Avion Shopping Parku.
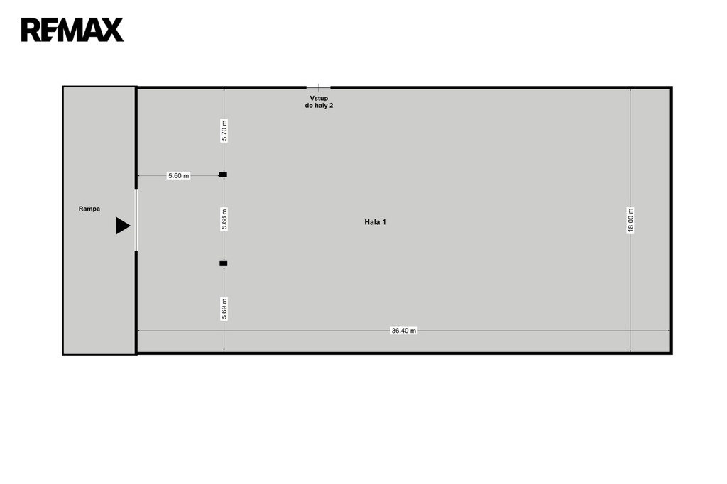
Hala má plochu 704 m² a světlou výšku 3,45 m (měřeno ke spodní hraně příruby nosníku). Hala disponuje 655 m² plochy pro skladování. V přední části haly je jeřáb s jeřábní drážkou o nosnosti 3,5 t. Rozměr roletových vrat umístěných z čela haly je 4,18 m x 3 m s výškou plošiny 1,25 m, možno využít nižší nájezd 0,76 m.
Výborná dopravní dostupnost areálu (exit 354 dálnice D1 vzdálen 3 km), veškerá městská infastruktura v bezprostřední blízkosti, zastávka MHD 4 min chůze.
Požadovaná výše nájemného je 135,- Kč/m2/měsíc + DPH, energie budou účtovány měsíčně dle skutečné spotřeby. Poplatek za strážní službu činí 2600,- Kč/měsíc + DPH. Vratná jistota ve výši třech měsíčních nájmů.
Hala je ihned k dispozici.
Pro více informací mne neváhejte kontaktovat.
Hala má plochu 704 m² a světlou výšku 3,45 m (měřeno ke spodní hraně příruby nosníku). Hala disponuje 655 m² plochy pro skladování. V přední části haly je jeřáb s jeřábní drážkou o nosnosti 3,5 t. Rozměr roletových vrat umístěných z čela haly je 4,18 m x 3 m s výškou plošiny 1,25 m, možno využít nižší nájezd 0,76 m.
Výborná dopravní dostupnost areálu (exit 354 dálnice D1 vzdálen 3 km), veškerá městská infastruktura v bezprostřední blízkosti, zastávka MHD 4 min chůze.
Požadovaná výše nájemného je 135,- Kč/m2/měsíc + DPH, energie budou účtovány měsíčně dle skutečné spotřeby. Poplatek za strážní službu činí 2600,- Kč/měsíc + DPH. Vratná jistota ve výši třech měsíčních nájmů.
Hala je ihned k dispozici.
Pro více informací mne neváhejte kontaktovat.
Cena: | 95 000 Kč / (za měsíc) |
Poznámka: | + energie a služby. Výše nájemného je k jednání. |
Datum k nastěhování: | 01.11.2021 |
Číslo zakázky: | REALITYMIX-417026 |
Podrobné informace
- Celková plocha: 704 m²
- Druh objektu: cihlová
- Stav objektu: velmi dobrý
- Druh prostor: Skladovací
- Umístění objektu: rušná část obce
- Doprava: dálnice, silnice, MHD, autobus
- Komunikace: asfaltová
- Plyn: Plynovod
- Odpad: Kanalizace
- Energetická náročnost budovy: G - Mimořádně nehospodárná
- Energetický ukazatel podle vyhlášky: č. 264/2020 Sb.
Mapa
* Umístění na mapě je na základě GPS informací dodaných realitní kanceláří.
* Pozice na mapě je pouze orientační.
Podobné nemovitosti

Pronájem - skladovací prostor, 1 095 m²
Uhlířská, Slezská Ostrava, Ostrava, Ostrava-město
77 000 Kč za měsíc
Pronájem - skladovací prostor, 1 062 m²
Vratimovská, Slezská Ostrava, Ostrava, Ostrava-město
88 500 Kč za měsíc
Pronájem - skladovací prostor, 778 m²
Československé armády, Slezská Ostrava, Ostrava, Ostrava-město
70 000 Kč za měsíc
Pronájem - kanceláře, 806 m²
Hornopolní, Moravská Ostrava a Přívoz, Ostrava, Ostrava-město
320 Kč za m2/měsíc