Pronájem - výrobní prostor, 452 m²
okr.Chomutov
34 000 Kč (za měsíc)Pronájem - výrobní prostor, 452 m²
okr.Chomutov
34 000 Kč
(za měsíc)
D
Méně úsporná
Sklady - lehká výroba - k nastěhování ihned
V exkluzivním zastoupení majitele nabízíme pronájem komerčního objektu v centru Otvic. IHNED K DISPOZICI.
Výborná dostupnost, široký samostatný vjezd z hlavní komunikace. Oplocený areál, přístup možný i z ulice samostatným schodištěm v průčelí budovy.
Prostorný dvůr pro parkování několika automobilů. Pro nakládku a vykládku automobilů je k dispozici pevná rampa v kombinaci se skluzem, doplněným elektrickým navijákem. Lze využít pro vytažení palet přímo na rampu.
Celý objekt je ve velmi dobrém technickém stavu. Zabezpečeno alarmem. Hlavní el.přívod 3x80A.
Prostory v přízemí :
- dílna 97 m2, vhodná pro lehkou výrobu nebo skladování (např. e-shop). Centrální osvětlení, rozvody energií. Dále k dispozici kancelář, skladové prostory, sociální zařízení muži/ženy. Možnost drobných stavebních úprav dle potřeby nájemce.
Prostory v patře : prostorná místnost 77 m2 s dostatkem světla, 3 kanceláře, sociální zařízení muži / ženy, denní místnost pro stravování a odpočinek.
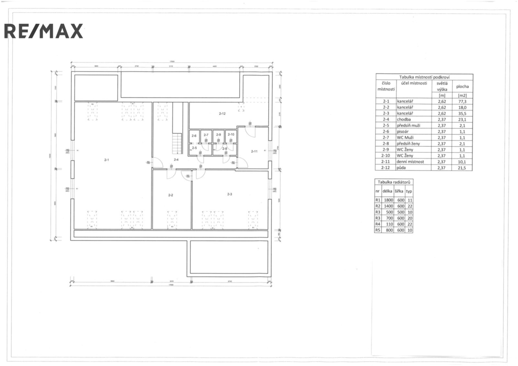
Vše viz přiložené půdorysy aktuálního stavu. Objekt vhodný pro lehké, okolí nerušící aktivity.
Sazba pronájmu uvedena bez DPH. Požadována kauce 1 nájem. Energie přepis na nájemce. Provize RK 1 nájem.
Pro více informací či prohlídku volejte makléře. Pronajímající si vyhrazuje právo vybrat nájemce na základě jím zvolených kritérií.
Výborná dostupnost, široký samostatný vjezd z hlavní komunikace. Oplocený areál, přístup možný i z ulice samostatným schodištěm v průčelí budovy.
Prostorný dvůr pro parkování několika automobilů. Pro nakládku a vykládku automobilů je k dispozici pevná rampa v kombinaci se skluzem, doplněným elektrickým navijákem. Lze využít pro vytažení palet přímo na rampu.
Celý objekt je ve velmi dobrém technickém stavu. Zabezpečeno alarmem. Hlavní el.přívod 3x80A.
Prostory v přízemí :
- dílna 97 m2, vhodná pro lehkou výrobu nebo skladování (např. e-shop). Centrální osvětlení, rozvody energií. Dále k dispozici kancelář, skladové prostory, sociální zařízení muži/ženy. Možnost drobných stavebních úprav dle potřeby nájemce.
Prostory v patře : prostorná místnost 77 m2 s dostatkem světla, 3 kanceláře, sociální zařízení muži / ženy, denní místnost pro stravování a odpočinek.
Vše viz přiložené půdorysy aktuálního stavu. Objekt vhodný pro lehké, okolí nerušící aktivity.
Sazba pronájmu uvedena bez DPH. Požadována kauce 1 nájem. Energie přepis na nájemce. Provize RK 1 nájem.
Pro více informací či prohlídku volejte makléře. Pronajímající si vyhrazuje právo vybrat nájemce na základě jím zvolených kritérií.
| Cena: | 34 000 Kč / (za měsíc) |
| Datum k nastěhování: | 05.02.2025 |
| Číslo zakázky: | REALITYMIX-407103 |
Podrobné informace
- Plocha kanceláří: 452 m²
- Plocha parcely: 285 m²
- Druh objektu: cihlová
- Stav objektu: velmi dobrý
- Druh prostor: Výrobní
- Umístění objektu: centrum obce
- Elektřina: Elektro - 230 V, Elektro - 400 V
- Voda: Voda - dálkový vodovod
- Odpad: Kanalizace
- Energetická náročnost budovy: D - Méně úsporná
- Energetický ukazatel podle vyhlášky: č. 78/2013 Sb.
Mapa
* Umístění na mapě je na základě GPS informací dodaných realitní kanceláří.
* Pozice na mapě je pouze orientační.
Podobné nemovitosti
Pronájem - skladovací prostor, 5 307 m²
Karlovarská, Chomutov
Cena na vyžádání
Pronájem - skladovací prostor, 10 000 m²
Droužkovická, Údlice, Chomutov
Cena na vyžádání
Pronájem - skladovací prostor, 2 500 m²
Droužkovická, Údlice, Chomutov
Cena na vyžádání
Pronájem - skladovací prostor, 5 000 m²
Droužkovická, Údlice, Chomutov
Cena na vyžádání