Pronájem - výrobní prostor, 2 804 m²
Libušínská, Plzeň 2-Slovany, Plzeň, Plzeň-město
300 000 Kč (za měsíc)Pronájem - výrobní prostor, 2 804 m²
Libušínská, Plzeň 2-Slovany, Plzeň, Plzeň-město
300 000 Kč
(za měsíc)
G
Mimořádně nehospodárná
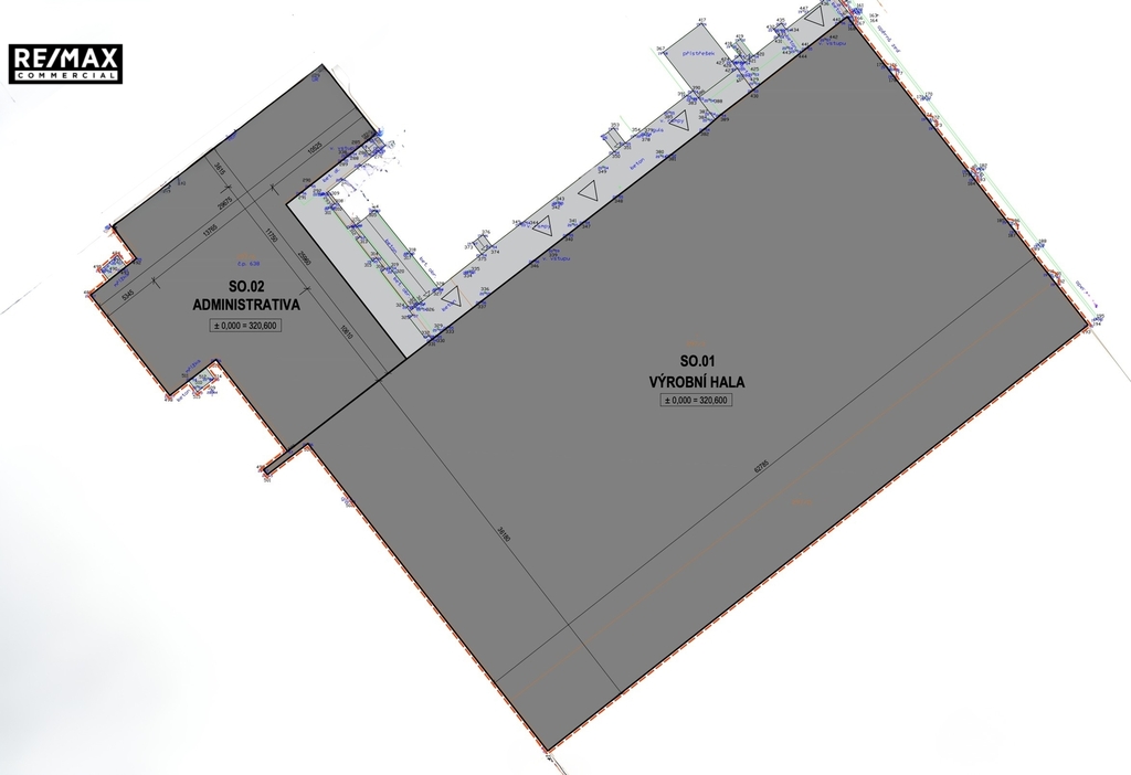
AREÁL PRO VÝROBU A SKLADOVÁNÍ PŘÍMO V PLZNI O CELKOVÉ VÝMĚŘE 4261 m2
Představuji Vám pěknou výrobní a skladovací halu s administrativním zázemím v lokalitě Plzeň Božkov. Hala o celkové výměře 2181 m2 u.p. (plus kanceláře o výměře 160 m2 u.p., které jsou umístěny ve 2.NP) je umístěna v areálu, který je oplocený s vjezdovou bránou. Hala je postavena ze čtyř lodí o průběžné výšce 6 m. Hala samotná disponuje vjezdovými vraty 4 m výška a 3,5 m šířka. V hale se nachází kompresorovna, rozvod stlačeného vzduchu, dostatek elektro zásuvek 380 V. Z kanceláří ve 2.NP je přímý výhled do výrobní haly i do skladu. Kanceláře mají vlastní světlíky, je tedy zajištěno dostatečné denní světlo.Součástí výrobní haly je také samostatná, oddělená kancelář v přízemí haly určená pro mistra. Přímo z haly lze vstoupit do zázemí kde se nachází jídelna, denní místnost, sociální zařízení pro zaměstnance. K hale patří zpevněné plochy o celkové výměře 1415 m2. Naproti hale se nachází samostatný administrativní objekt, který disponuje kancelářemi a zázemím pro administrativní pracovníky o celkové výměře 499 m2.
Technické informace: čtyřlodní výrobní hala obdélníkového půdorysu o rozměrech 60,0x36,5 m je tvořena jednopodlažním ocelovým skeletem, hala je postavena
na ocelových sloupech, opláštění je provedeno sendvičovým pláštěm se zateplením z minerální vlny. Příčky jsou do 3,5 m zděné, nad tuto úroveň ze sádrokartonu. Střecha je sedlová, z trapézových plechů zateplená stříkanou PUR pěnou. V zadní části haly je provedena vestavba kanceláří. Okna jsou plastová, izolační dvojskla. Podlaha je z silničních panelů s vrchní vrstvou betonu, nosnost 2t/m2. V hale se nachází LED osvětlení a jsou instalovány skladovací regály Jungheinrich, k dispozici jsou paletové vozíky a VZV, software na skladovací systém, datový rozvod v serverovně, docházkový systém, vybavení kanceláří.
Administrativní budova je tvořena ocelovým skeletem, opláštění je provedeno ocelovými sendvičovými panely s minerální vlnou, okna jsou dřevěná, zdvojená a částečně plastová izolační dvojskla, podlaha betonová s vrstvou z pvc, koberců. Vnitřní příčky jsou v kombinaci zděné a částečně sádrokartonové. Obě budovy jsou napojeny na veškeré sítě, areál má vlastní trafo stanici. Vytápění v hale je teplovzdušnými topidly umístěnými na stěnách a v administrativní budově radiátory, zdrojem tepla je plynová kotelna. V kancelářích jsou klimatizační jednotky. Objekty jsou napojeny na obecní vodu a kanalizaci, v budovách jsou rozvedeny datové sítě. Do areálu je možný vjezd kamionů, součástí haly je nakládací rampa. Parkování osobních a nákladních vozidel přímo v areálu.
Nájemní smlouva minimálně na 3 roky s možností prodloužení. Kauce ve výši 300.000,- Kč + DPH, zálohy na poplatky Elektřina, plyn a odpad budou převedeny na nájemce. Kauce ve výši 600.000,- Kč. V hale může být až 180 zaměstnanců ve 3 směnách.
Výborná dopravní dostupnost, bus přímo na Hlavní nádraží, trolejbus č. 12 cca 150 m od haly.
Velmi pěkné. Doporučujeme!
Technické informace: čtyřlodní výrobní hala obdélníkového půdorysu o rozměrech 60,0x36,5 m je tvořena jednopodlažním ocelovým skeletem, hala je postavena
na ocelových sloupech, opláštění je provedeno sendvičovým pláštěm se zateplením z minerální vlny. Příčky jsou do 3,5 m zděné, nad tuto úroveň ze sádrokartonu. Střecha je sedlová, z trapézových plechů zateplená stříkanou PUR pěnou. V zadní části haly je provedena vestavba kanceláří. Okna jsou plastová, izolační dvojskla. Podlaha je z silničních panelů s vrchní vrstvou betonu, nosnost 2t/m2. V hale se nachází LED osvětlení a jsou instalovány skladovací regály Jungheinrich, k dispozici jsou paletové vozíky a VZV, software na skladovací systém, datový rozvod v serverovně, docházkový systém, vybavení kanceláří.
Administrativní budova je tvořena ocelovým skeletem, opláštění je provedeno ocelovými sendvičovými panely s minerální vlnou, okna jsou dřevěná, zdvojená a částečně plastová izolační dvojskla, podlaha betonová s vrstvou z pvc, koberců. Vnitřní příčky jsou v kombinaci zděné a částečně sádrokartonové. Obě budovy jsou napojeny na veškeré sítě, areál má vlastní trafo stanici. Vytápění v hale je teplovzdušnými topidly umístěnými na stěnách a v administrativní budově radiátory, zdrojem tepla je plynová kotelna. V kancelářích jsou klimatizační jednotky. Objekty jsou napojeny na obecní vodu a kanalizaci, v budovách jsou rozvedeny datové sítě. Do areálu je možný vjezd kamionů, součástí haly je nakládací rampa. Parkování osobních a nákladních vozidel přímo v areálu.
Nájemní smlouva minimálně na 3 roky s možností prodloužení. Kauce ve výši 300.000,- Kč + DPH, zálohy na poplatky Elektřina, plyn a odpad budou převedeny na nájemce. Kauce ve výši 600.000,- Kč. V hale může být až 180 zaměstnanců ve 3 směnách.
Výborná dopravní dostupnost, bus přímo na Hlavní nádraží, trolejbus č. 12 cca 150 m od haly.
Velmi pěkné. Doporučujeme!
| Cena: | 300 000 Kč / (za měsíc) |
| Datum k nastěhování: | 01.02.2026 |
| Číslo zakázky: | REALITYMIX-427714 |
Podrobné informace
- Plocha kanceláří: 2804 m²
- Plocha parcely: 2935 m²
- Druh objektu: skeletová
- Stav objektu: velmi dobrý
- Druh prostor: Výrobní
- Umístění objektu: okraj obce
- Doprava: dálnice, silnice, MHD, autobus
- Komunikace: asfaltová
- Elektřina: Elektro - 230 V, Elektro - 400 V
- Voda: Voda - dálkový vodovod
- Telekomunikace: Internet
- Odpad: Kanalizace
- Energetická náročnost budovy: G - Mimořádně nehospodárná
- Energetický ukazatel podle vyhlášky: č. 264/2020 Sb.
Mapa
* Umístění na mapě je na základě GPS informací dodaných realitní kanceláří.
* Pozice na mapě je pouze orientační.
Podobné nemovitosti
Pronájem - kanceláře, 48 m²
Radyňská, Plzeň 2-Slovany, Plzeň, Plzeň-město
6 950 Kč za měsíc
Pronájem - obchodní prostor, 52 m²
Klatovská třída, Plzeň 3, Plzeň, Plzeň-město
19 500 Kč za měsíc
Pronájem - kanceláře, 6 000 m²
U Nové Hospody, Plzeň 3, Plzeň, Plzeň-město
8,50 € za m2/měsíc
Pronájem - kanceláře, 2 000 m²
U Nové Hospody, Plzeň 3, Plzeň, Plzeň-město
8,50 € za m2/měsíc