Pronájem bytu, 2+kk, 40 m²
Velvarská, Praha 6, Dejvice
25 000 Kč (za měsíc)Pronájem bytu, 2+kk, 40 m²
Velvarská, Praha 6, Dejvice
25 000 Kč
(za měsíc)
G
Mimořádně nehospodárná
2+kk po rekonstrukci - P6, Velvarská
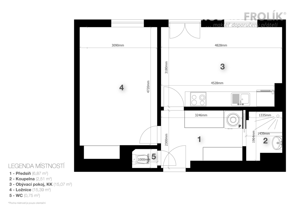
Tenhle byt si rozhodně nenechte ujít! Precizně a vkusně zrekonstruovaný, do detailu promyšlený! To je byt 2+kk, o výměře cca 40 m2, v 1. patře dobře udržovaného cihlového domu bez výtahu, v ulici Velvarská v Praze 6 - Dejvicích.
Budete to mít kousek na metro Dejvická, za nákupy i za společenským vyžitím. Francouzské okno Vám přinese kousek přírody i domů, protože budete mít výhled do pěkného parku. A před domem Vás bude každý den vítat pěkná zahrádka s posezením.
Dům bude v budoucích letech ještě vylepšený - plánuje se nová fasáda, okna, kotelna.
V bytě je využitý každý kousek plochy. Kuchyňský kout v sobě skrývá vestavěné spotřebiče (indukční varná deska, elektrická trouba, digestoř, myčka, lednice s mrazákem). Před kuchyní je místo na malý gauč a TV, u francouzského okna na jídelní stolek, případně i s osvětlením nad ním. V ložnici je šatní skříň ve zdi. Další velké skříně jsou v chodbě. V jedné z nich se skrývá i elektrický bojler na ohřev teplé vody. Topení je v domě centrální, z plynové kotelny v suterénu. Radiátory budete mít i v chodbě a koupelně. Koupelna má okno do velkého světlíku, takže byt se dá krásně větrat. Prádlo si usušíte v sušičce. Vstupní dveře do bytu jsou bezpečnostní, okna plastová s dvojskly a žaluziemi. V suterénu domu budete mít i sklípek a vedle domu pěkné společné posezení.
Kromě nájemného budete platit zálohu na domovní služby (voda, topení, úklid, odpad) 2.900 Kč/měs. + elektřinu (odhad 2.000 Kč). Ta bude napsaná na Vás. Platba nájemného a záloh bude vždy na 1 měsíc předem, jistota je 2 nájmy, provize 1 nájem.
Ještě váháte? Přijďte se co nejdříve podívat osobně, protože byt je ve skutečnosti ještě hezčí, než na fotkách! A věřím tomu, že Vás nadchne!
Byt je připravený k okamžitému nastěhování.
PENB není zpracované, podle zákona tedy musím uvádět třídu G.
Budete to mít kousek na metro Dejvická, za nákupy i za společenským vyžitím. Francouzské okno Vám přinese kousek přírody i domů, protože budete mít výhled do pěkného parku. A před domem Vás bude každý den vítat pěkná zahrádka s posezením.
Dům bude v budoucích letech ještě vylepšený - plánuje se nová fasáda, okna, kotelna.
V bytě je využitý každý kousek plochy. Kuchyňský kout v sobě skrývá vestavěné spotřebiče (indukční varná deska, elektrická trouba, digestoř, myčka, lednice s mrazákem). Před kuchyní je místo na malý gauč a TV, u francouzského okna na jídelní stolek, případně i s osvětlením nad ním. V ložnici je šatní skříň ve zdi. Další velké skříně jsou v chodbě. V jedné z nich se skrývá i elektrický bojler na ohřev teplé vody. Topení je v domě centrální, z plynové kotelny v suterénu. Radiátory budete mít i v chodbě a koupelně. Koupelna má okno do velkého světlíku, takže byt se dá krásně větrat. Prádlo si usušíte v sušičce. Vstupní dveře do bytu jsou bezpečnostní, okna plastová s dvojskly a žaluziemi. V suterénu domu budete mít i sklípek a vedle domu pěkné společné posezení.
Kromě nájemného budete platit zálohu na domovní služby (voda, topení, úklid, odpad) 2.900 Kč/měs. + elektřinu (odhad 2.000 Kč). Ta bude napsaná na Vás. Platba nájemného a záloh bude vždy na 1 měsíc předem, jistota je 2 nájmy, provize 1 nájem.
Ještě váháte? Přijďte se co nejdříve podívat osobně, protože byt je ve skutečnosti ještě hezčí, než na fotkách! A věřím tomu, že Vás nadchne!
Byt je připravený k okamžitému nastěhování.
PENB není zpracované, podle zákona tedy musím uvádět třídu G.
| Cena: | 25 000 Kč / (za měsíc) |
| Poznámka: | + poplatky |
| Datum k nastěhování: | 22.04.2026 |
| Dispozice/podlahová plocha: | 2+kk/40 m² |
| Číslo zakázky: | REALITYMIX-0581 |
Podrobné informace
- Dispozice bytu: 2+kk
- Číslo podlaží v domě: 2
- Počet podlaží objektu: 5
- Užitná plocha: 40 m²
- Celková podlahová plocha: 40 m²
- Druh objektu: cihlová
- Stav objektu: po rekonstrukci
- Vlastnictví: osobní
- Sklep: 2 m²
- Umístění objektu: rušná část obce
- Doprava: vlak, silnice, MHD, autobus
- Elektřina: Elektro - 230 V
- Voda: Voda - dálkový vodovod
- Telekomunikace: Telefon, Internet
- Plyn: Plynovod
- Odpad: Kanalizace
- Ostatní rozvody: Kabelová televize, Kabelové rozvody
- Energetická náročnost budovy: G - Mimořádně nehospodárná
- Energetický ukazatel podle vyhlášky: č. 264/2020 Sb.
Mapa
* Umístění na mapě je na základě GPS informací dodaných realitní kanceláří.
* Pozice na mapě je pouze orientační.