Pronájem - obchodní prostor, 94 m²
Lihovarská, Praha 9, Libeň
45 000 Kč (za měsíc)Pronájem - obchodní prostor, 94 m²
Lihovarská, Praha 9, Libeň
45 000 Kč
(za měsíc)
G
Mimořádně nehospodárná
Investiční komerční prostor v přízemí s výlohou a vlastní terasou - Praha 9, Libeň
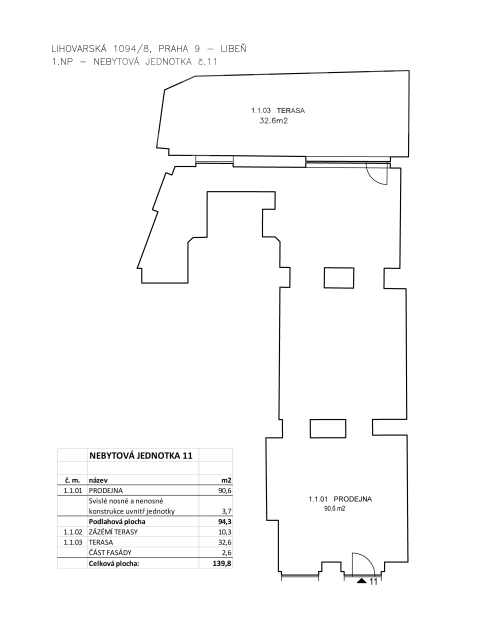
Pronájem prémiové komerční jednotky, celkové plochy 139,8 m2 s výrazným potenciálem stabilního výnosu i dlouhodobého zhodnocení, situované v dynamicky se rozvíjející části Prahy 9 - Libně.
Prostor o výměře 94 m2 je řešen jako tři na sebe navazující (průchozí) kancelářské místnosti, což umožňuje plynulý provoz, variabilní uspořádání a efektivní využití plochy. Jednotka je vhodná pro kanceláře, showroom, klientské centrum nebo obchodní provoz. Přímý kontakt s ulicí prostřednictvím výlohy a příprava na podsvícené reklamní označení na fasádě zajišťují vysokou viditelnost a silný obchodní potenciál.
Jednotka prošla kompletní rekonstrukcí v roce 2018, její velmi dobrý technický stav nevyžaduje žádné další investice. Každá kancelář vybavena samostatnou klimatizací, prostor disponuje kompletním sociálním zázemím v nadstandardním provedení a je plně zabezpečen kamerovým systémem v interiéru i exteriéru.
Významnou přidanou hodnotu zahrnuje soukromá terasa o velikosti 33 m2, která zvyšuje užitnou hodnotu jednotky i její atraktivitu pro bonitní nájemce.
Lokalita Praha 9 - Libeň patří dlouhodobě mezi žádané městské části s vysokou poptávkou po komerčních plochách, s výbornou dostupností MHD a rychlým napojením na hlavní dopravní tahy.
Ideální volba pro investory, kteří hledají:
• okamžitou možnost pronájmu
• stabilní cash flow
• ochranu kapitálu v kvalitní nemovitosti
• potenciál růstu hodnoty v čase.
Prostor o výměře 94 m2 je řešen jako tři na sebe navazující (průchozí) kancelářské místnosti, což umožňuje plynulý provoz, variabilní uspořádání a efektivní využití plochy. Jednotka je vhodná pro kanceláře, showroom, klientské centrum nebo obchodní provoz. Přímý kontakt s ulicí prostřednictvím výlohy a příprava na podsvícené reklamní označení na fasádě zajišťují vysokou viditelnost a silný obchodní potenciál.
Jednotka prošla kompletní rekonstrukcí v roce 2018, její velmi dobrý technický stav nevyžaduje žádné další investice. Každá kancelář vybavena samostatnou klimatizací, prostor disponuje kompletním sociálním zázemím v nadstandardním provedení a je plně zabezpečen kamerovým systémem v interiéru i exteriéru.
Významnou přidanou hodnotu zahrnuje soukromá terasa o velikosti 33 m2, která zvyšuje užitnou hodnotu jednotky i její atraktivitu pro bonitní nájemce.
Lokalita Praha 9 - Libeň patří dlouhodobě mezi žádané městské části s vysokou poptávkou po komerčních plochách, s výbornou dostupností MHD a rychlým napojením na hlavní dopravní tahy.
Ideální volba pro investory, kteří hledají:
• okamžitou možnost pronájmu
• stabilní cash flow
• ochranu kapitálu v kvalitní nemovitosti
• potenciál růstu hodnoty v čase.
| Cena: | 45 000 Kč / (za měsíc) |
| Poznámka: | Kauce ve výši 45.000,- + provize RK 45.000,- |
| Datum k nastěhování: | 05.02.2026 |
| Číslo zakázky: | REALITYMIX-232636 |
Podrobné informace
- Plocha kanceláří: 94 m²
- Druh objektu: cihlová
- Stav objektu: po rekonstrukci
- Druh prostor: Obchodní
- Terasa: 45 m²
- Telekomunikace: Telefon, Internet
- Ostatní rozvody: Kabelové rozvody, Ostatní rozvody
- Energetická náročnost budovy: G - Mimořádně nehospodárná
Mapa
* Umístění na mapě je na základě GPS informací dodaných realitní kanceláří.
* Pozice na mapě je pouze orientační.
Podobné nemovitosti
Pronájem - obchodní prostor, 126 m²
Poděbradská, Praha 9, Hloubětín
40 000 Kč za měsíc
Pronájem - obchodní prostor, 73 m²
Laponská, Praha 9
35 000 Kč za měsíc
Pronájem - obchodní prostor, 74 m²
Veltruská, Praha 9, Prosek
35 000 Kč za měsíc
Pronájem - obchodní prostor, 233 m²
bratří Dohalských, Praha 9, Vysočany
45 000 Kč za měsíc