Pronájem bytu, 2+kk, 46 m²
Haštalská, Praha 1, Staré Město
29 000 Kč (za měsíc)Pronájem bytu, 2+kk, 46 m²
Haštalská, Praha 1, Staré Město
29 000 Kč
(za měsíc)
B
Velmi úsporná
Praha 1, luxusní zařízený byt 2+kk k pronájmu, ul. Haštalská, Staré Město, 46m2
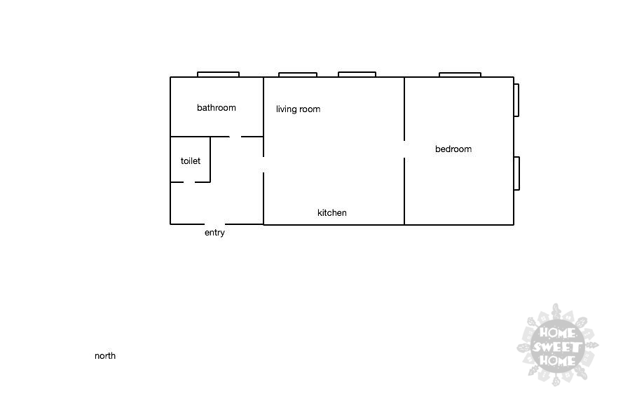
Nabízíme k dlouhodobému pronájmu jedinečný byt 2+kk o výměře 46 m², situovaný ve 2. patře pavlačového domu v klidné ulici Haštalská na Praze 1 - Staré Město. Dům, který se dříve nazýval U Modré boty, je z 15. století a patří mezi historickou památku UNESCO. Dům prošel kompletní rekonstrukcí s důrazem na zachování původních architektonických prvků. Je světlý s krásným výhledem na Staré Město. Byt je celkově zařízený. V kuchyni je sklokeramická varná deska, elektrická trouba, nádobí, myčka a lednice s mrazničkou. Elegantní koupelna s unikátní vanou. V bytě je také pračka a sušička. Toaleta je samostatně. V celém bytě jsou dřevěné parkety a dlažba, okna mají rolety.
Dům se nachází v atraktivní lokalitě historického centra Prahy s vynikající občanskou vybaveností - restaurace, obchody, kavárny a jiné. Skvělá dopravní dostupnost - tramvajová zastávka "Dlouhá třída" 3 minuty chůze od domu, stanice metra "B" Náměstí republiky 5 minut chůze, kde se nachází velké obchodní centrum "Palladium".
Byt je k dispozici od ledna 2026. Elektřina a plyn se převádějí na nájemce. Pro více informací kontaktujte makléře.
Dům se nachází v atraktivní lokalitě historického centra Prahy s vynikající občanskou vybaveností - restaurace, obchody, kavárny a jiné. Skvělá dopravní dostupnost - tramvajová zastávka "Dlouhá třída" 3 minuty chůze od domu, stanice metra "B" Náměstí republiky 5 minut chůze, kde se nachází velké obchodní centrum "Palladium".
Byt je k dispozici od ledna 2026. Elektřina a plyn se převádějí na nájemce. Pro více informací kontaktujte makléře.
| Cena: | 29 000 Kč / (za měsíc) |
| Poznámka: | + poplatky 3 000,- Kč + elektřina a plyn |
| Datum k nastěhování: | 01.01.2026 |
| Dispozice/podlahová plocha: | 2+kk/46 m² |
| Číslo zakázky: | REALITYMIX-78715 |
Podrobné informace
- Dispozice bytu: 2+kk
- Číslo podlaží v domě: 3
- Počet podlaží objektu: 6
- Užitná plocha: 46 m²
- Celková podlahová plocha: 46 m²
- Druh objektu: cihlová
- Stav objektu: velmi dobrý
- Vlastnictví: osobní
- Vybaveno: ano
- Umístění objektu: centrum obce
- Energetická náročnost budovy: B - Velmi úsporná
- Energetický ukazatel podle vyhlášky: č. 78/2013 Sb.
Mapa
* Umístění na mapě je na základě GPS informací dodaných realitní kanceláří.
* Pozice na mapě je pouze orientační.
Podobné nemovitosti
Pronájem bytu, 2+kk, 68 m²
Soukenická, Nové Město
30 000 Kč za měsíc
Pronájem bytu, 2+kk, 52 m²
Haštalské náměstí, Praha 1, Staré Město
30 000 Kč za měsíc
Pronájem bytu, 2+kk, 50 m²
U milosrdných, Praha 1, Staré Město
26 000 Kč za měsíc
Pronájem bytu, 2+kk, 62 m²
Václavské náměstí, Praha 1, Nové Město
30 900 Kč za měsíc