Pronájem - kanceláře, 319 m²
Na Perštýně, Praha 1, Staré Město
169 000 Kč (za měsíc)Pronájem - kanceláře, 319 m²
Na Perštýně, Praha 1, Staré Město
169 000 Kč
(za měsíc)
G
Mimořádně nehospodárná
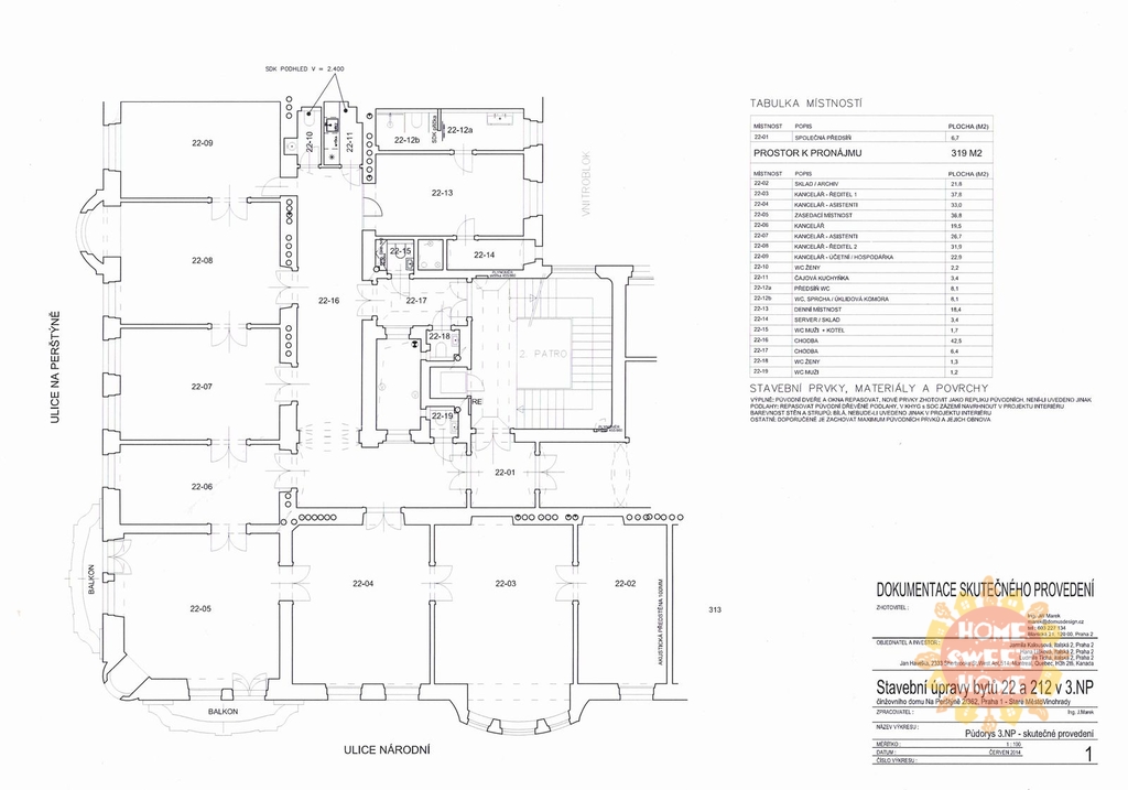
Praha, kanceláře k pronájmu, 9 místností, ul. Na Perštýně 2x balkon (319m2) v přímém srdci Prahy
Nabízíme k pronájmu moderní, prostorné kancelářské prostory situované v historickém centru Starého Města, nacházející se ve druhém patře krásného domu s výtahem. Prostory jsou velice stylové - štukované stropy a na podlaze parkety.
Dispozice:
Prostory se skládají z příjímací haly, chodby, 6 samostatných místností, další 2 průchozí místnosti, denní místnost lze využít jako zázemí pro zaměstnance + menší sklad, 5 x toaleta, koupelna a čajová kuchyňka, 2 x balkon. Vysoké stropy a dřevěné parkety - to vše podtrhuje historický avšak moderní ráz kanceláře. Prostory jsou orientované do ulice Na Perštýně a Národní
Dům se nachází jen pár kroků od nákupního centra Quadrio a Máj, zároveň několik minut pěšky do historického centra města. Perfektní občanská vybavenost: v okolí jsou krásné originální kavárny, obchody, a restaurace.
Praha 1 - Staré Město je atraktivní lokalita v samém srdci Prahy s vynikající dopravní dostupností - stanice metra a tramvají Národní Třída 150m od domu. Půvabná část Prahy, jež je vhodná pro klienty, kteří vyhledávají jedinečnou atmosféru starobylých částí města. K dispozici od 1.5.2026
Dispozice:
Prostory se skládají z příjímací haly, chodby, 6 samostatných místností, další 2 průchozí místnosti, denní místnost lze využít jako zázemí pro zaměstnance + menší sklad, 5 x toaleta, koupelna a čajová kuchyňka, 2 x balkon. Vysoké stropy a dřevěné parkety - to vše podtrhuje historický avšak moderní ráz kanceláře. Prostory jsou orientované do ulice Na Perštýně a Národní
Dům se nachází jen pár kroků od nákupního centra Quadrio a Máj, zároveň několik minut pěšky do historického centra města. Perfektní občanská vybavenost: v okolí jsou krásné originální kavárny, obchody, a restaurace.
Praha 1 - Staré Město je atraktivní lokalita v samém srdci Prahy s vynikající dopravní dostupností - stanice metra a tramvají Národní Třída 150m od domu. Půvabná část Prahy, jež je vhodná pro klienty, kteří vyhledávají jedinečnou atmosféru starobylých částí města. K dispozici od 1.5.2026
| Cena: | 169 000 Kč / (za měsíc) |
| Poznámka: | + 1.350 služby + elektřina a plyn, vratná kauce ve výši 2 měsíčních nájmů |
| Datum k nastěhování: | 01.05.2025 |
| Číslo zakázky: | REALITYMIX-78928 |
Podrobné informace
- Plocha kanceláří: 319 m²
- Druh objektu: cihlová
- Stav objektu: velmi dobrý
- Druh prostor: Kanceláře
- Ostatní: Výtah
- Plyn: Plynovod
- Odpad: Kanalizace
- Energetická náročnost budovy: G - Mimořádně nehospodárná
- Energetický ukazatel podle vyhlášky: č. 148/2007 Sb.
Mapa
* Umístění na mapě je na základě GPS informací dodaných realitní kanceláří.
* Pozice na mapě je pouze orientační.
Podobné nemovitosti
Pronájem - kanceláře, 410 m²
Politických vězňů, Praha 1, Nové Město
151 700 Kč za měsíc
Pronájem - kanceláře, 319 m²
Na Perštýně, Praha 1, Staré Město
169 000 Kč za měsíc
Pronájem - kanceláře, 319 m²
Na Perštýně, Praha 1, Staré Město
175 000 Kč za měsíc
Pronájem - kanceláře, 2 141 m²
Václavské náměstí, Praha 1, Nové Město
22,00 € za m2/měsíc