Pronájem bytu, 2+1, 70 m²
Žerotínova, Praha 3, Žižkov
26 000 Kč (za měsíc)Pronájem bytu, 2+1, 70 m²
Žerotínova, Praha 3, Žižkov
26 000 Kč
(za měsíc)
G
Mimořádně nehospodárná
Praha, pronájem, částečně zařízený byt 2+1, 70m2, balkon, sklep, Žerotínova ulice, Žižkov
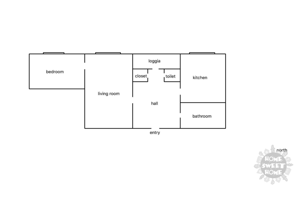
Nabízíme k pronájmu hezký částečně vybavený byt 2+1 s balkonem, který se nachází ve 2.patře cihlového domu s výtahem, v ulici Žerotínova na Žižkově.
Dispozice bytu:
vstupní chodba vybavená vestavěnou skříní, komodou a botníkem, obývací pokoj se sedačkou, samostatná ložnice se skříní a komodou, kuchyně s jídelním stolem a
moderní kuchyňskou linkou (sklokeramická deska, trouba, myčka, pračka, lednice a mikrovlnka), koupelna se sprchovým koutem, toaleta zvlášť. Dostatek úložného prostoru - komora, sklep. Na podlaze PVC, plovoucí podlaha, topení WAW.
Klidné bydlení na Praze 3. Kompletní občanská vybavenost a skvělá dopravní dostupnost. Není vhodné na spolubydlení. K dispozici od 1.2.2026
Dispozice bytu:
vstupní chodba vybavená vestavěnou skříní, komodou a botníkem, obývací pokoj se sedačkou, samostatná ložnice se skříní a komodou, kuchyně s jídelním stolem a
moderní kuchyňskou linkou (sklokeramická deska, trouba, myčka, pračka, lednice a mikrovlnka), koupelna se sprchovým koutem, toaleta zvlášť. Dostatek úložného prostoru - komora, sklep. Na podlaze PVC, plovoucí podlaha, topení WAW.
Klidné bydlení na Praze 3. Kompletní občanská vybavenost a skvělá dopravní dostupnost. Není vhodné na spolubydlení. K dispozici od 1.2.2026
| Cena: | 26 000 Kč / (za měsíc) |
| Poznámka: | + 1.800 služby pro 2 osoby, elektřina a plyn přepis na nájemce ( měsíční záloha 4.000), vratná kauce 35.000 |
| Datum k nastěhování: | 01.02.2026 |
| Dispozice/podlahová plocha: | 2+1/70 m² |
| Číslo zakázky: | REALITYMIX-78783 |
Podrobné informace
- Dispozice bytu: 2+1
- Číslo podlaží v domě: 2
- Počet podlaží objektu: 5
- Užitná plocha: 70 m²
- Celková podlahová plocha: 70 m²
- Druh objektu: cihlová
- Stav objektu: velmi dobrý
- Vlastnictví: osobní
- Vybaveno: ano
- Umístění objektu: centrum obce
- Plyn: Plynovod
- Odpad: Kanalizace
- Energetická náročnost budovy: G - Mimořádně nehospodárná
- Energetický ukazatel podle vyhlášky: č. 148/2007 Sb.
Mapa
* Umístění na mapě je na základě GPS informací dodaných realitní kanceláří.
* Pozice na mapě je pouze orientační.