Prodej bytu, 2+1, 66 m²
Lumiérů, Praha 5, Hlubočepy
Cena na vyžádáníProdej bytu, 2+1, 66 m²
Lumiérů, Praha 5, Hlubočepy
Cena na vyžádání
G
Mimořádně nehospodárná
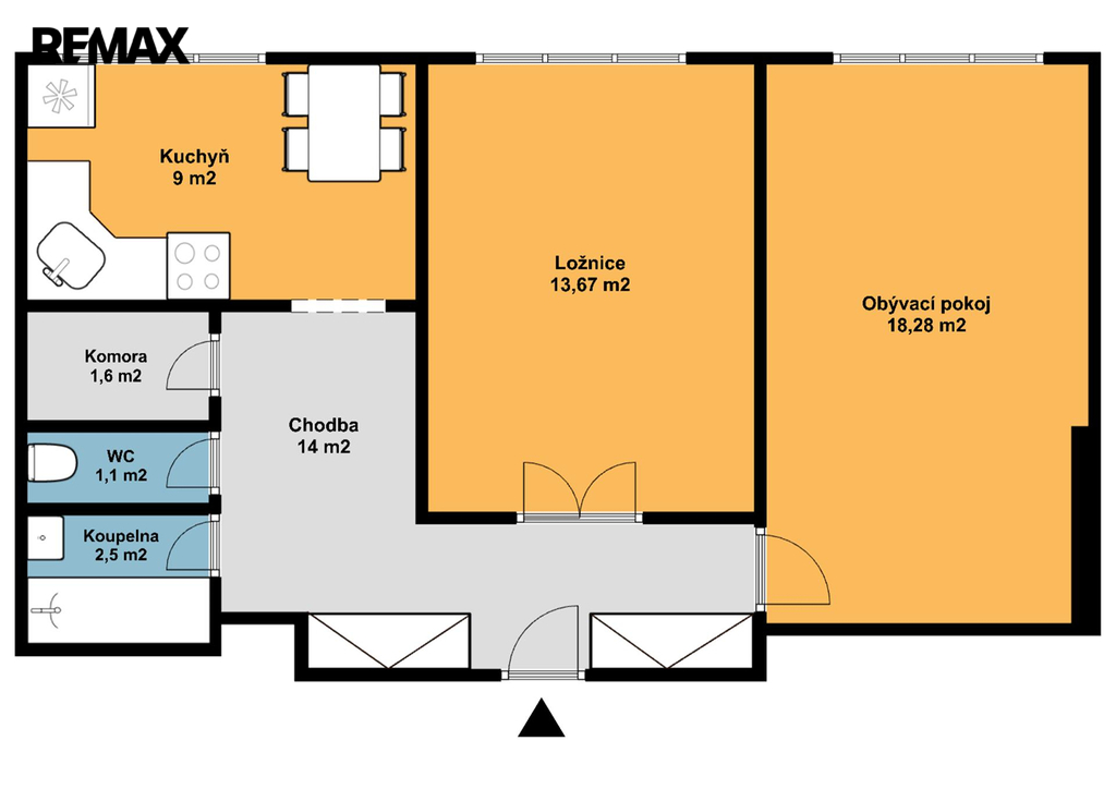
Prodej skvěle řešeného bytu v Pražské části - Hlubočepy, ul. Lumiérů
Nabízíme vám prodej družstevního bytu o dispozici 2+1 o celkové výměře 60 m² ve 2. NP v cihlovém domě bez výtahu v ul. Lumiérů na Praze 5, Hlubočepy. Byt se prodává kompletně vybavený. Součástí je i sklep o výměře cca 6 m². Bytová jednotka prošla rekonstrukcí koncem roku 2024. K dispozici je i užívání soukromé zahrady, která je součástí bytového domu.
Vybavení kuchyně -- Lednice, plynový sporák, el. horkovzdušná trouba a digestoř. Okna jsou plastová opatřena žaluziemi. Ohřev vody a vytápění je řešeno dálkově. U vstupu do bytu je vestavěná skříň, která disponuje spousty úložnými prostory.
Aktuální poplatky na osobu činí cca 5.000,-Kč
Anuita je již splacena.
Bytová jednotka je momentálně pronajatá.
V těsné blízkosti se nachází obchod s potravinami a autobusová zastávka Filmové ateliéry Barrandov, ze které se dostanete do 10 min na metro Smíchovské nádraží, nebo na Zličín.
V případě zájmu reagujte pouze písemnou odpovědí přímo na inzerci, budu Vás kontaktovat a v případě shody, Vám velmi rád nabídnu osobní prohlídku v rámci předem naplánovaného prohlídkového dne.
Vybavení kuchyně -- Lednice, plynový sporák, el. horkovzdušná trouba a digestoř. Okna jsou plastová opatřena žaluziemi. Ohřev vody a vytápění je řešeno dálkově. U vstupu do bytu je vestavěná skříň, která disponuje spousty úložnými prostory.
Aktuální poplatky na osobu činí cca 5.000,-Kč
Anuita je již splacena.
Bytová jednotka je momentálně pronajatá.
V těsné blízkosti se nachází obchod s potravinami a autobusová zastávka Filmové ateliéry Barrandov, ze které se dostanete do 10 min na metro Smíchovské nádraží, nebo na Zličín.
V případě zájmu reagujte pouze písemnou odpovědí přímo na inzerci, budu Vás kontaktovat a v případě shody, Vám velmi rád nabídnu osobní prohlídku v rámci předem naplánovaného prohlídkového dne.
| Cena: | Cena na vyžádání |
| Poznámka: | cena u makléře |
| Datum k nastěhování: | 17.03.2025 |
| Dispozice/podlahová plocha: | 2+1/66 m² |
| Číslo zakázky: | REALITYMIX-432692 |
Podrobné informace
- Dispozice bytu: 2+1
- Číslo podlaží v domě: 2
- Počet podlaží objektu: 5
- Užitná plocha: 60 m²
- Celková podlahová plocha: 66 m²
- Druh objektu: cihlová
- Stav objektu: velmi dobrý
- Vlastnictví: družstevní
- Sklep: 6 m²
- Vybaveno: ano
- Umístění objektu: klidná část obce
- Doprava: MHD, autobus
- Plyn: Plynovod
- Odpad: Kanalizace
- Energetická náročnost budovy: G - Mimořádně nehospodárná
- Energetický ukazatel podle vyhlášky: č. 264/2020 Sb.
Právní rádce
-
Detail
Důvodem je odlišný přístup makléře k zakázce. Pokud je kupní cena inzerována včetně provize, tak realitního makléře platí prodávající. Pokud je kupní cena inzerována bez provize, tak provizi platí kupující.
-
Detail
Realitní makléř má své nezastupitelné místo v realitním obchodu. Realitním makléřem nemyslím nevzdělané jelito, které absolvovalo dvoudenní školení a ví, jak se nahraje inzerát na inzertní portál.
Realitním makléřem, který se Vám skutečně vyplatí, je zkušený profesionál, který je schopen Vám dobře poradit jak prodat za co nejvíc a s nejmenším rizikem a hlavně je Vás schopen obratně provést celým realitním obchodem.
Prodáváte nemovitost a potřebujete zjistit její reálnou hodnotu?
Zjistit reálnou cenuVývoj průměrné ceny za m2 v lokalitě Praha 5
Ceny uvedené v grafu, jsou průměrnými cenami ze sledované lokality a nezohledňují stav, stáří ani vybavení nemovitosti.
Prodáváte nemovitost a potřebujete zjistit její reálnou hodnotu?
Zjistit reálnou cenuMapa
* Umístění na mapě je na základě GPS informací dodaných realitní kanceláří.
* Pozice na mapě je pouze orientační.