Pronájem bytu, 1+kk, 22 m²
Magistrů, Praha 4, Michle
12 000 Kč (za měsíc)Pronájem bytu, 1+kk, 22 m²
Magistrů, Praha 4, Michle
12 000 Kč
(za měsíc)
D
Méně úsporná
Pronájem 1+kk v Praze Michli
Chcete si pronajmout byt o dispozici 1+kk na klidném místě s dobrou dopravní dostupností do centra Prahy? Jeden takový mám pro vás v Praze 4 Michli.
Popis bytu
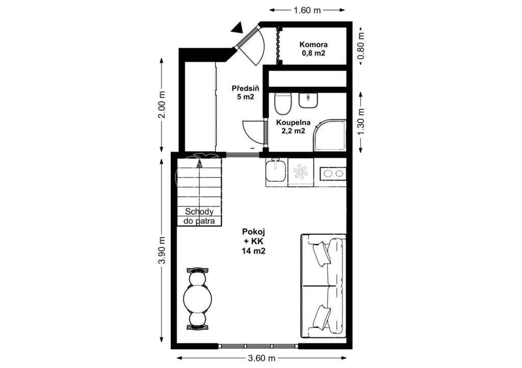
Bytový dům se nachází ve vedlejší méně frekventované ulici a je orientovaný na východ. Je v 1. patře a má 22 m2 + spací patro s úložným prostorem. Je rozdělený na obývací pokoj s kuchyňskou linkou (14 m2), koupelnu s toaletou (2,2 m2), předsíň (5 m2), komoru (0,8m2) a spací patro s úložným prostorem.
Vybavení bytu
V bytě je k dispozici kuchyňská linka s ledničkou, dvouplotýnkovým vařičem a digestoří, rozkládací pohovka a ve spacím patře jedna matrace (200 x 90 cm). Do spacího patra se vejde i větší matrace na rozměr 200 x 160 cm. Pračka je umístěna v suterénu domu, kde ji společně využívají obyvatelé menších bytů a náklad na vodu si rozpočítávají podle spotřeby.
V bytě je možnost připojení TV, Internet a telefon.
Náklady spojené s pronájmem bytu
Měsíční nájemné – 12 000 Kč
Měsíční zálohy na služby – 2 600 Kč
Měsíční záloha na elektřinu – 600 Kč
Kauce – 15 200 Kč
Provize RK – 14 520 Kč
Preferované podmínky pronájmu
V současné době je byt volný. Nájemní smlouva na 1 rok s možností prodloužení. Smlouvu na elektřinu majitel nepřevádí na nájemce.
Lokalita
Nejbližší zastávka tramvají a autobusů je Pod Jezerkou, odkud se dostanete do 15 min do centra Prahy nebo za 6 minut ke stanici metra C Pankrác.
Prohlídky
První kolo prohlídek proběhne 8. dubna v odpoledních a večerních hodinách. Konkrétní časy budeme domlouvat během 7. dubna.
Popis bytu
Bytový dům se nachází ve vedlejší méně frekventované ulici a je orientovaný na východ. Je v 1. patře a má 22 m2 + spací patro s úložným prostorem. Je rozdělený na obývací pokoj s kuchyňskou linkou (14 m2), koupelnu s toaletou (2,2 m2), předsíň (5 m2), komoru (0,8m2) a spací patro s úložným prostorem.
Vybavení bytu
V bytě je k dispozici kuchyňská linka s ledničkou, dvouplotýnkovým vařičem a digestoří, rozkládací pohovka a ve spacím patře jedna matrace (200 x 90 cm). Do spacího patra se vejde i větší matrace na rozměr 200 x 160 cm. Pračka je umístěna v suterénu domu, kde ji společně využívají obyvatelé menších bytů a náklad na vodu si rozpočítávají podle spotřeby.
V bytě je možnost připojení TV, Internet a telefon.
Náklady spojené s pronájmem bytu
Měsíční nájemné – 12 000 Kč
Měsíční zálohy na služby – 2 600 Kč
Měsíční záloha na elektřinu – 600 Kč
Kauce – 15 200 Kč
Provize RK – 14 520 Kč
Preferované podmínky pronájmu
V současné době je byt volný. Nájemní smlouva na 1 rok s možností prodloužení. Smlouvu na elektřinu majitel nepřevádí na nájemce.
Lokalita
Nejbližší zastávka tramvají a autobusů je Pod Jezerkou, odkud se dostanete do 15 min do centra Prahy nebo za 6 minut ke stanici metra C Pankrác.
Prohlídky
První kolo prohlídek proběhne 8. dubna v odpoledních a večerních hodinách. Konkrétní časy budeme domlouvat během 7. dubna.
| Cena: | 12 000 Kč / (za měsíc) |
| Datum k nastěhování: | 13.04.2026 |
| Dispozice/podlahová plocha: | 1+kk/22 m² |
| Číslo zakázky: | REALITYMIX-19358 |
Podrobné informace
- Dispozice bytu: 1+kk
- Číslo podlaží v domě: 2
- Počet podlaží objektu: 6
- Užitná plocha: 22 m²
- Celková podlahová plocha: 22 m²
- Druh objektu: smíšená
- Stav objektu: velmi dobrý
- Vlastnictví: osobní
- Vybaveno: ano
- Umístění objektu: centrum obce
- Doprava: MHD, autobus
- Elektřina: Elektro - 120 V
- Telekomunikace: Telefon, Internet
- Odpad: Kanalizace
- Ostatní rozvody: Kabelové rozvody
- Energetická náročnost budovy: D - Méně úsporná
- Energetický ukazatel podle vyhlášky: č. 264/2020 Sb.
Mapa
* Umístění na mapě je na základě GPS informací dodaných realitní kanceláří.
* Pozice na mapě je pouze orientační.