Pronájem bytu, 1+1, 37 m²
Hořejší nábřeží, Praha 5, Smíchov
18 000 Kč (za měsíc)Pronájem bytu, 1+1, 37 m²
Hořejší nábřeží, Praha 5, Smíchov
18 000 Kč
(za měsíc)
Pronájem bytu 1+1, Hořejší nábřeží, Smíchov, 18 000 Kč/měs, 37 m2
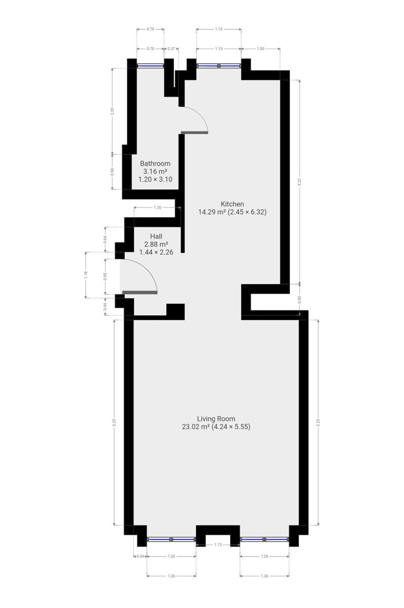
K dlouhodobému podnájmu nabízíme prostorný byt o dispozici 1+1 v oblíbené lokalitě Praha - Smíchov. Byt o celkové výměře 37 m2 se nachází v prvním patře cihlového domu.
V kuchyni se nachází trouba se sklokeramickou varnou deskou (Pračka na fotkách není součástí vybavení). Ložnice je nevybavená. Koupelna s toaletou disponuje sprchou, umyvadlem a zrcadlem.
V blízkosti bytu se nachází smíchovská náplavka, restaurace, potraviny, kavárny a park. Dále pak nákupní centrum Nový Smíchov s hypermarketem a kinem. Dopravní dostupnost zajišťuje zastávka Zborovská a metro Anděl/Palackého náměstí.
Byt je volný od 1.7.2026.
Uvedena energetická kategorie G, jelikož nemáme k dispozici PENB.
Byt pronajímá Ideální nájemce - služba, se kterou budete bydlet bezstarostně a za férových podmínek. Když se něco přihodí, k dispozici jsou správci, kteří s vámi vše vyřeší. Pomůžeme s veškerou administrativou, s nastavením plateb a zajistíme vám speciální pojištění. Pojďte bydlet s námi!
V kuchyni se nachází trouba se sklokeramickou varnou deskou (Pračka na fotkách není součástí vybavení). Ložnice je nevybavená. Koupelna s toaletou disponuje sprchou, umyvadlem a zrcadlem.
V blízkosti bytu se nachází smíchovská náplavka, restaurace, potraviny, kavárny a park. Dále pak nákupní centrum Nový Smíchov s hypermarketem a kinem. Dopravní dostupnost zajišťuje zastávka Zborovská a metro Anděl/Palackého náměstí.
Byt je volný od 1.7.2026.
Uvedena energetická kategorie G, jelikož nemáme k dispozici PENB.
Byt pronajímá Ideální nájemce - služba, se kterou budete bydlet bezstarostně a za férových podmínek. Když se něco přihodí, k dispozici jsou správci, kteří s vámi vše vyřeší. Pomůžeme s veškerou administrativou, s nastavením plateb a zajistíme vám speciální pojištění. Pojďte bydlet s námi!
| Cena: | 18 000 Kč / (za měsíc) |
| Poznámka: | vratná jistota, náklady na bydlení 6364 Kč, poplatek za podnájem |
| Dispozice/podlahová plocha: | 1+1/37 m² |
| Číslo zakázky: | REALITYMIX-2878 |
Podrobné informace
- Dispozice bytu: 1+1
- Číslo podlaží v domě: 1
- Počet podlaží objektu: 5
- Celková podlahová plocha: 37 m²
- Druh objektu: cihlová
- Stav objektu: velmi dobrý
- Vlastnictví: osobní
- Umístění objektu: centrum obce
- Doprava: vlak, dálnice, silnice, MHD, autobus
- Občanská vybavenost: Škola, Školka, Zdravotnická zařízení, Pošta, Supermarket, Kompletní síť obchodů a služeb
- Elektřina: Elektro - 230 V
- Topení: Lokální - elektrické
Mapa
* Umístění na mapě je na základě GPS informací dodaných realitní kanceláří.
* Pozice na mapě je pouze orientační.