Pronájem bytu, 2+1, 55 m²
Klostermannova, Praha 12, Modřany
21 900 Kč (za měsíc)Pronájem bytu, 2+1, 55 m²
Klostermannova, Praha 12, Modřany
21 900 Kč
(za měsíc)
G
Mimořádně nehospodárná
Pronájem bytu 2+1, 55 m² se zahradou - Praha - Modřany
K nastěhování ihned.
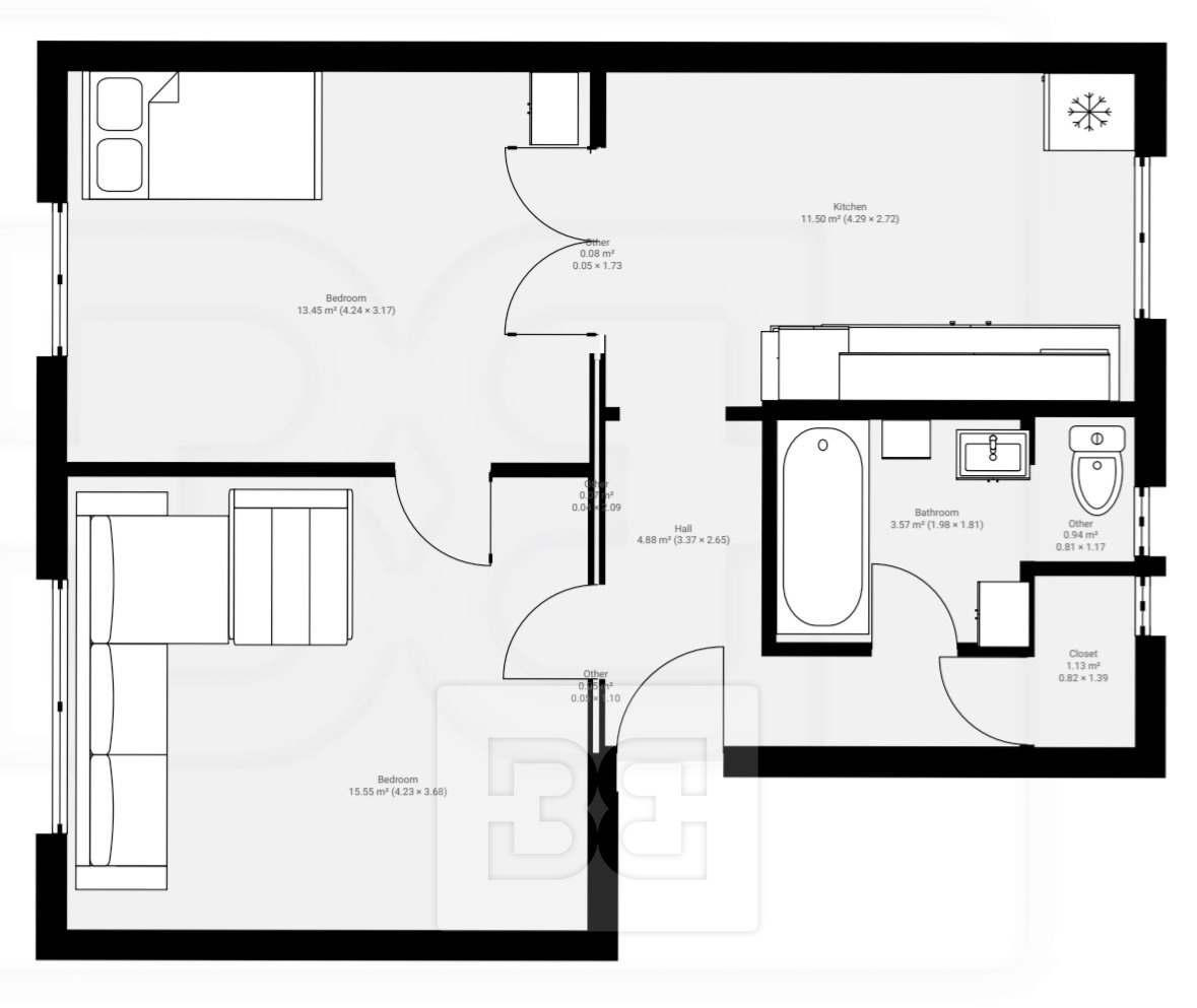
Nabízíme Vám k pronájmu byt 2+1 s obytnou plochou 55 m², situovaný ve zvýšeném přízemí cihlového domu bez výtahu, v ulici Klostermannova. Byt se sestává ze vstupní chodby, komory, koupelny s vanou a toaletou, dvou pokojů a kuchyně s plynovým sporákem, elektrickou troubou a lednicí. Nájemníkům se k dispozici zahrada cca 30 m², v uzamčeném vnitrobloku.
Měsíční nájem činí 21 900 Kč. Poplatky za služby ve výši 2 450 Kč - energie převodem na nájemníky. Vratná kauce. Provize RK 24 350 Kč + DPH.
Nechcete ztrácet čas? V případě zájmu Vám rád pošlu odkaz na virtuální prohlídku, abyste měli úplnou představu o nabízené nemovitosti (360° prohlídka s možností orientace ve videu dle vašich představ).
Byt je spravován společností Bohemian Estates, která zajišťuje profesionální správu této nemovitosti. Nájemcům je k dispozici kontaktní osoba, která pomáhá s řešením všech běžných záležitostí spojených s nájmem – od administrativy až po zajištění oprav a údržby. V případě potřeby zajistíme prověřené dodavatele pro servisní zásahy či opravy, což nájemníkům usnadňuje řešení běžných situací spojených s užíváním bytu.
V případě zájmu o tuto nemovitost prosíme o uvedení základních informací (zda Vám vyhovuje počátek nájmu; počet osob, které by byt obývaly, zaměstnání, zda máte domácího mazlíčka).
Dle požadavků majitele musí mít nájemce rejstřík exekucí/trestů/insolvencí bez záznamu. Dlouhodobý pronájem vítán.
Nabízíme Vám k pronájmu byt 2+1 s obytnou plochou 55 m², situovaný ve zvýšeném přízemí cihlového domu bez výtahu, v ulici Klostermannova. Byt se sestává ze vstupní chodby, komory, koupelny s vanou a toaletou, dvou pokojů a kuchyně s plynovým sporákem, elektrickou troubou a lednicí. Nájemníkům se k dispozici zahrada cca 30 m², v uzamčeném vnitrobloku.
Měsíční nájem činí 21 900 Kč. Poplatky za služby ve výši 2 450 Kč - energie převodem na nájemníky. Vratná kauce. Provize RK 24 350 Kč + DPH.
Nechcete ztrácet čas? V případě zájmu Vám rád pošlu odkaz na virtuální prohlídku, abyste měli úplnou představu o nabízené nemovitosti (360° prohlídka s možností orientace ve videu dle vašich představ).
Byt je spravován společností Bohemian Estates, která zajišťuje profesionální správu této nemovitosti. Nájemcům je k dispozici kontaktní osoba, která pomáhá s řešením všech běžných záležitostí spojených s nájmem – od administrativy až po zajištění oprav a údržby. V případě potřeby zajistíme prověřené dodavatele pro servisní zásahy či opravy, což nájemníkům usnadňuje řešení běžných situací spojených s užíváním bytu.
V případě zájmu o tuto nemovitost prosíme o uvedení základních informací (zda Vám vyhovuje počátek nájmu; počet osob, které by byt obývaly, zaměstnání, zda máte domácího mazlíčka).
Dle požadavků majitele musí mít nájemce rejstřík exekucí/trestů/insolvencí bez záznamu. Dlouhodobý pronájem vítán.
| Cena: | 21 900 Kč / (za měsíc) |
| Dispozice/podlahová plocha: | 2+1/55 m² |
| Číslo zakázky: | REALITYMIX-N09022 |
Podrobné informace
- Dispozice bytu: 2+1
- Číslo podlaží v domě: 1
- Počet podlaží objektu: 1
- Celková podlahová plocha: 55 m²
- Druh objektu: cihlová
- Stav objektu: velmi dobrý
- Vlastnictví: družstevní
- Energetická náročnost budovy: G - Mimořádně nehospodárná
Mapa
* Umístění na mapě je na základě GPS informací dodaných realitní kanceláří.
* Pozice na mapě je pouze orientační.