Pronájem bytu, 2+1, 49 m²
Na Jezerce, Praha 4, Nusle
20 900 Kč (za měsíc)Pronájem bytu, 2+1, 49 m²
Na Jezerce, Praha 4, Nusle
20 900 Kč
(za měsíc)
G
Mimořádně nehospodárná
Pronájem bytu 2+1, Na Jezerce, 49 m2
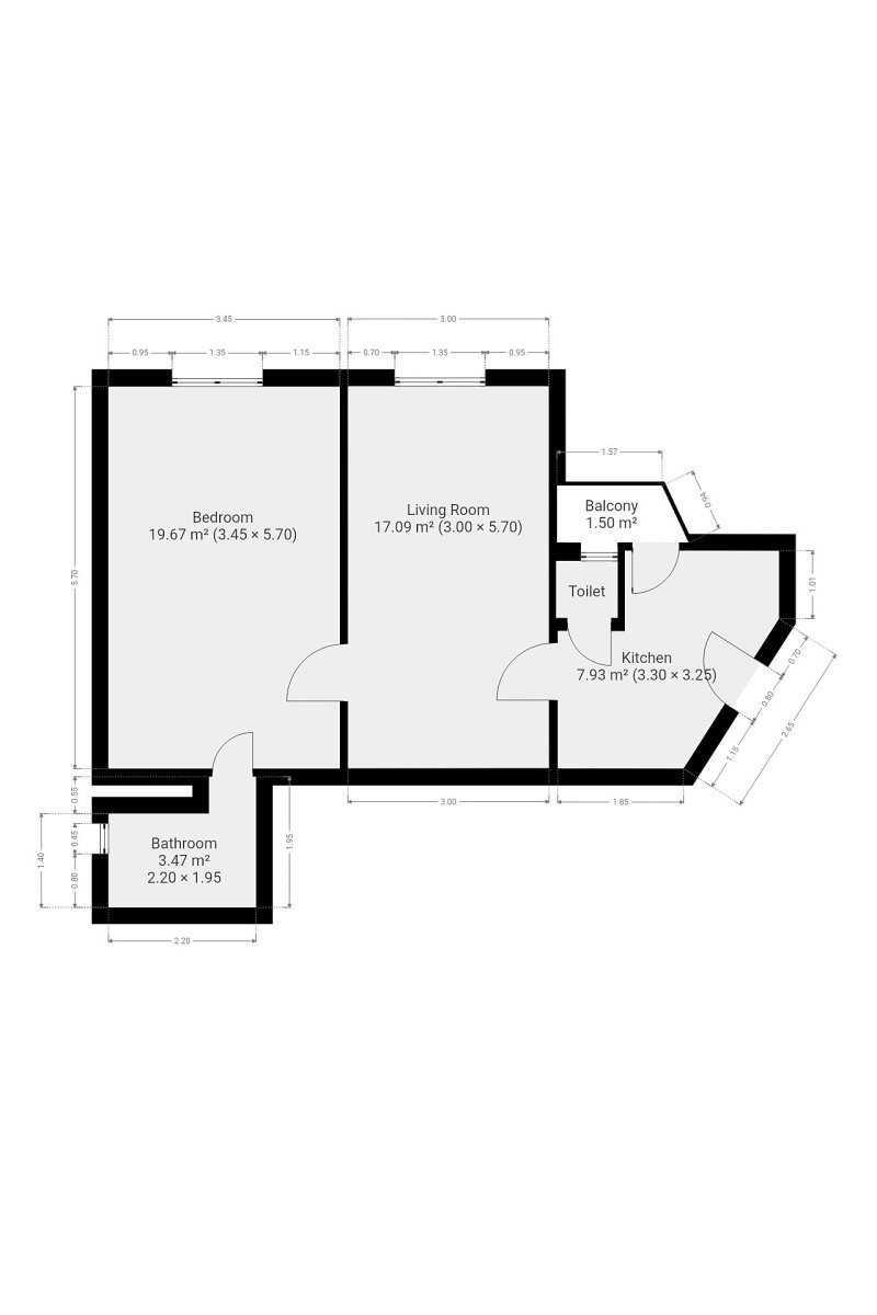
Nabízíme k dlouhodobému podnájmu příjemně světlý byt o dispozici 2+1, situovaný v srdci klidné rezidenční čtvrti pražských Nuslí. Tento byt o celkové výměře 49 m² se nachází ve druhém patře pečlivě udržovaného domu a jeho velkým benefitem je vlastní balkon i praktický sklepní prostor. Interiér je nabízen jako částečně vybavený, což vám dává ideální příležitost zařídit si nový domov přesně podle vlastního vkusu a potřeb.
Kuchyně disponuje vším potřebným včetně lednice s mrazákem, elektrické trouby a sporáku. Prostorný obývací pokoj je v současnosti vybaven jídelním koutem, zatímco zbytek místnosti zůstává otevřený pro váš nábytek. Druhý samostatný pokoj pak skvěle poslouží jako klidná ložnice nebo inspirativní pracovna. Komfort doplňuje koupelna se sprchovým koutem a pračkou, přičemž toaleta je pro větší soukromí řešena samostatně.
Lokalita vyniká perfektní občanskou vybaveností i skvělou dostupností do centra. V docházkové vzdálenosti najdete OC Arkády Pankrác, supermarkety Lidl a Tesco, poštu i širokou síť lékařských služeb a restaurací. Pro milovníky aktivního odpočinku a zeleně je doslova pár kroků od domu malebný park Jezerka. Spojení s městem zajišťují blízké zastávky tramvají a autobusů s rychlou návazností na metro.
Byt je volný a připravený k nastěhování ihned,
Zálohy činí 3.700Kč pro 2 osoby, zahrnuto je vše
Energetická třída: G (průkaz nedodán).
Kuchyně disponuje vším potřebným včetně lednice s mrazákem, elektrické trouby a sporáku. Prostorný obývací pokoj je v současnosti vybaven jídelním koutem, zatímco zbytek místnosti zůstává otevřený pro váš nábytek. Druhý samostatný pokoj pak skvěle poslouží jako klidná ložnice nebo inspirativní pracovna. Komfort doplňuje koupelna se sprchovým koutem a pračkou, přičemž toaleta je pro větší soukromí řešena samostatně.
Lokalita vyniká perfektní občanskou vybaveností i skvělou dostupností do centra. V docházkové vzdálenosti najdete OC Arkády Pankrác, supermarkety Lidl a Tesco, poštu i širokou síť lékařských služeb a restaurací. Pro milovníky aktivního odpočinku a zeleně je doslova pár kroků od domu malebný park Jezerka. Spojení s městem zajišťují blízké zastávky tramvají a autobusů s rychlou návazností na metro.
Byt je volný a připravený k nastěhování ihned,
Zálohy činí 3.700Kč pro 2 osoby, zahrnuto je vše
Energetická třída: G (průkaz nedodán).
| Cena: | 20 900 Kč / (za měsíc) |
| Poznámka: | vratná jistota, náklady na bydlení 3 700 Kč, poplatek za podnájem |
| Dispozice/podlahová plocha: | 2+1/49 m² |
| Číslo zakázky: | REALITYMIX-7348 |
Podrobné informace
- Dispozice bytu: 2+1
- Číslo podlaží v domě: 2
- Počet podlaží objektu: 4
- Celková podlahová plocha: 49 m²
- Druh objektu: cihlová
- Stav objektu: velmi dobrý
- Vlastnictví: osobní
- Umístění objektu: klidná část obce
- Doprava: silnice, MHD, autobus
- Občanská vybavenost: Škola, Školka, Zdravotnická zařízení, Pošta, Supermarket, Kompletní síť obchodů a služeb
- Elektřina: Elektro - 230 V
- Topení: Lokální - plynové
- Energetická náročnost budovy: G - Mimořádně nehospodárná
Mapa
* Umístění na mapě je na základě GPS informací dodaných realitní kanceláří.
* Pozice na mapě je pouze orientační.