Pronájem bytu, 2+1, 58 m²
Na Petřinách, Praha 6, Břevnov
21 900 Kč (za měsíc)Pronájem bytu, 2+1, 58 m²
Na Petřinách, Praha 6, Břevnov
21 900 Kč
(za měsíc)
D
Nevyhovující
Pronájem bytu 2+1, Na Petřinách, Břevnov, 21900 Kč/měs, 58 m2
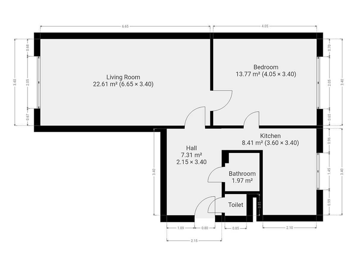
K dlouhodobému podnájmu nabízíme světlý byt o dispozici 2+1 v oblíbené rezidenční lokalitě Praha 6 – Břevnov, v ulici Na Petřinách. Byt o celkové ploše 58 m² se nachází v 1. patře udržovaného panelového domu bez výtahu. K bytu náleží sklepní kóje.
Byt je částečně vybavený a nabízí dostatek prostoru pro zařízení podle vlastních představ. Kuchyně je vybavena lednicí s mrazákem, myčkou, troubou, varnou deskou, mikrovlnnou troubou, digestoří a pračkou. Obývací pokoj je nezařízený, v ložnici je k dispozici šatní skříň.
V koupelně se nachází vana, umyvadlo se zrcadlem a koupelnová skříňka. Toaleta je umístěna samostatně. V předsíni je botník a vestavěná skříň s dostatkem úložného prostoru.
Velkou výhodou bytu je jeho poloha v klidné části Prahy 6 s množstvím zeleně. Lokalita Petřiny patří dlouhodobě mezi velmi vyhledávané díky příjemnému rezidenčnímu charakteru a výborné občanské vybavenosti. V docházkové vzdálenosti se nachází restaurace, kavárny, supermarkety, drogerie, lékárna, pošta i městská knihovna.
Blízké okolí nabízí také řadu možností pro procházky a sport – například Břevnovskou klášterní zahradu, Zámecký park Veleslavín, Oboru Hvězda nebo park Ladronka.
Dopravní dostupnost je velmi dobrá – v docházkové vzdálenosti se nachází stanice metra A – Petřiny i tramvajové zastávky, které zajišťují rychlé spojení do centra města.
Byt je vhodný zejména pro jednotlivce nebo pár, kteří hledají klidné bydlení v příjemné lokalitě s dostatkem zeleně a výbornou dostupností do centra.
Majitel preferuje zájemce bez domácích mazlíčků.
Byt je volný k nastěhování ihned.
Prohlídky jsou možné po domluvě. V případě zájmu nám napište krátkou zprávu o sobě a rádi se vám ozveme s termínem prohlídky.
Energetická náročnost budovy: třída D (méně úsporná).
Byt je částečně vybavený a nabízí dostatek prostoru pro zařízení podle vlastních představ. Kuchyně je vybavena lednicí s mrazákem, myčkou, troubou, varnou deskou, mikrovlnnou troubou, digestoří a pračkou. Obývací pokoj je nezařízený, v ložnici je k dispozici šatní skříň.
V koupelně se nachází vana, umyvadlo se zrcadlem a koupelnová skříňka. Toaleta je umístěna samostatně. V předsíni je botník a vestavěná skříň s dostatkem úložného prostoru.
Velkou výhodou bytu je jeho poloha v klidné části Prahy 6 s množstvím zeleně. Lokalita Petřiny patří dlouhodobě mezi velmi vyhledávané díky příjemnému rezidenčnímu charakteru a výborné občanské vybavenosti. V docházkové vzdálenosti se nachází restaurace, kavárny, supermarkety, drogerie, lékárna, pošta i městská knihovna.
Blízké okolí nabízí také řadu možností pro procházky a sport – například Břevnovskou klášterní zahradu, Zámecký park Veleslavín, Oboru Hvězda nebo park Ladronka.
Dopravní dostupnost je velmi dobrá – v docházkové vzdálenosti se nachází stanice metra A – Petřiny i tramvajové zastávky, které zajišťují rychlé spojení do centra města.
Byt je vhodný zejména pro jednotlivce nebo pár, kteří hledají klidné bydlení v příjemné lokalitě s dostatkem zeleně a výbornou dostupností do centra.
Majitel preferuje zájemce bez domácích mazlíčků.
Byt je volný k nastěhování ihned.
Prohlídky jsou možné po domluvě. V případě zájmu nám napište krátkou zprávu o sobě a rádi se vám ozveme s termínem prohlídky.
Energetická náročnost budovy: třída D (méně úsporná).
| Cena: | 21 900 Kč / (za měsíc) |
| Poznámka: | vratná jistota, náklady na bydlení 5 269 Kč, poplatek za podnájem |
| Dispozice/podlahová plocha: | 2+1/58 m² |
| Číslo zakázky: | REALITYMIX-7246 |
Podrobné informace
- Dispozice bytu: 2+1
- Číslo podlaží v domě: 2
- Počet podlaží objektu: 4
- Celková podlahová plocha: 58 m²
- Druh objektu: panelová
- Stav objektu: velmi dobrý
- Vlastnictví: osobní
- Umístění objektu: klidná část obce
- Doprava: vlak, dálnice, silnice, MHD, autobus
- Občanská vybavenost: Škola, Školka, Zdravotnická zařízení, Pošta, Supermarket, Kompletní síť obchodů a služeb
- Elektřina: Elektro - 230 V
- Voda: Voda - dálkový vodovod
- Plyn: Plynovod
- Topení: Ústřední - dálkové
- Energetická náročnost budovy: D - Nevyhovující
Mapa
* Umístění na mapě je na základě GPS informací dodaných realitní kanceláří.
* Pozice na mapě je pouze orientační.