Pronájem bytu, 2+kk, 44 m²
Světova, Praha 8, Libeň
21 000 Kč (za měsíc)Pronájem bytu, 2+kk, 44 m²
Světova, Praha 8, Libeň
21 000 Kč
(za měsíc)
D
Méně úsporná
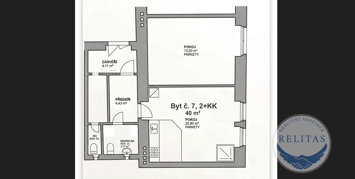
Pronájem bytu 2+kk, 44 m², Praha 8 – Libeň, ul. Světova
Nabízíme k pronájmu světlý a velmi příjemný byt o dispozici 2+kk a celkové ploše cca 44 m², situovaný ve zrekonstruovaném domě v ulici Světova, Praha 8 – Libeň.
Byt se nachází v domě, který prošel kompletní a citlivou rekonstrukcí, díky čemuž nabízí kombinaci moderního komfortu a zachovaného charakteru klasické pražské zástavby.
Dispozice bytu tvoří prostorný obývací pokoj s kuchyňským koutem, samostatná ložnice, koupelna se sprchovým koutem a toaletou a vstupní část. Dominantou bytu jsou krásné renovované parkety, vysoké stropy a dostatek denního světla, který bytu dodává vzdušnost a příjemnou atmosféru.
Kuchyňská linka je vybavena základními spotřebiči. Byt je ve velmi dobrém technickém stavu a připraven k okamžitému nastěhování.
Velkou výhodou je samotný dům – vlastněný jedním majitelem, s důrazem na dlouhodobou správu a kvalitní údržbu. Společné prostory jsou ve výborném stavu.
Lokalita Libně nabízí skvělou občanskou vybavenost i výbornou dopravní dostupnost. V pěší vzdálenosti se nachází tramvajové zastávky i stanice metra B – Palmovka. V okolí najdete množství kaváren, restaurací, obchodů i zeleně.
Byt se nachází v domě, který prošel kompletní a citlivou rekonstrukcí, díky čemuž nabízí kombinaci moderního komfortu a zachovaného charakteru klasické pražské zástavby.
Dispozice bytu tvoří prostorný obývací pokoj s kuchyňským koutem, samostatná ložnice, koupelna se sprchovým koutem a toaletou a vstupní část. Dominantou bytu jsou krásné renovované parkety, vysoké stropy a dostatek denního světla, který bytu dodává vzdušnost a příjemnou atmosféru.
Kuchyňská linka je vybavena základními spotřebiči. Byt je ve velmi dobrém technickém stavu a připraven k okamžitému nastěhování.
Velkou výhodou je samotný dům – vlastněný jedním majitelem, s důrazem na dlouhodobou správu a kvalitní údržbu. Společné prostory jsou ve výborném stavu.
Lokalita Libně nabízí skvělou občanskou vybavenost i výbornou dopravní dostupnost. V pěší vzdálenosti se nachází tramvajové zastávky i stanice metra B – Palmovka. V okolí najdete množství kaváren, restaurací, obchodů i zeleně.
| Cena: | 21 000 Kč / (za měsíc) |
| Datum k nastěhování: | 06.04.2026 |
| Dispozice/podlahová plocha: | 2+kk/44 m² |
| Číslo zakázky: | REALITYMIX-4750783 |
Podrobné informace
- Dispozice bytu: 2+kk
- Číslo podlaží v domě: 2
- Počet podlaží objektu: 7
- Užitná plocha: 44 m²
- Celková podlahová plocha: 44 m²
- Druh objektu: cihlová
- Stav objektu: velmi dobrý
- Vlastnictví: osobní
- Výška stropu: 2 m
- Umístění objektu: klidná část obce
- Doprava: MHD
- Telekomunikace: Telefon, Internet
- Plyn: Plynovod
- Topení: Lokální - plynové
- Energetická náročnost budovy: D - Méně úsporná
- Energetický ukazatel podle vyhlášky: č. 78/2013 Sb.
Mapa
* Umístění na mapě je na základě GPS informací dodaných realitní kanceláří.
* Pozice na mapě je pouze orientační.