Pronájem bytu, 2+kk, 53 m²
Šimonova, Praha 17, Řepy
18 900 Kč (za měsíc)Pronájem bytu, 2+kk, 53 m²
Šimonova, Praha 17, Řepy
18 900 Kč
(za měsíc)
B
Velmi úsporná
Pronájem bytu 2+kk 53 m², Praha - Řepy
K nastěhování ihned.
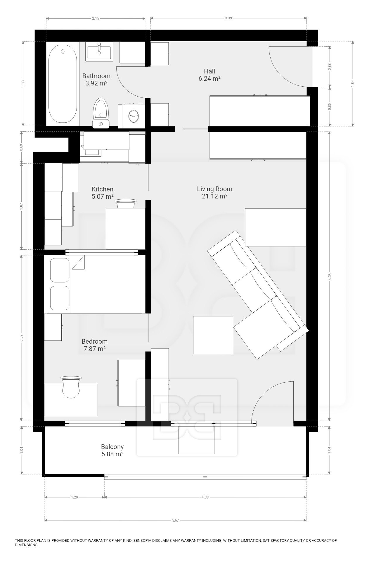
Nabízíme k pronájmu krásny byt 2+kk o velikosti 53m², situovaný v pečlivě udržovaném panelovém domě s výtahem. Celý byt je řešený atypicky a disponuje na míru vyrobeným nábytkem a posuvnými dveřmi pro maximální využití prostoru.
Dispozice bytu:
• Vstupní předsíň s vestavěnými skříněmi
• Koupelna s vanou, toaletou, umyvadlem, pračkou a vestavnou úložnou skříní
• Prostorný obývací pokoj s vestavěnou skříní, pracovním stolem a gaučem
• Kuchyně je umístěna samostatně a je kompletně vybavena ( myčkou, lednicí, elektrickou troubou. digestoří)
• Samostatná ložnice s postelí, pracovním stolem a skříní
• K bytu náleží sklepní
Lokalita:
Byt se nachází v oblíbené části Řep s výbornou občanskou vybaveností v okolí (obchody, služby, školy, MHD) i dostupností do centra města.
Měsíční nájem činí 18900 Kč. Poplatky za služby 3200 Kč + elektrická energie. Vratná kauce 22100 Kč. Provize RK 22100 Kč + DPH.
Pozor, velkou výhodou pro potenciální nájemce je, že byt je v profesionální správě společnosti Bohemian Estates, jenž správu pro majitele tohoto bytu vykonává. Nájemci je k dispozici kontaktní osoba, která řeší veškeré záležitosti s nájmem spojené (údržba, platby nájemného, vyúčtování, dodatky, a pod.). Nájemci je tak zajištěno bezproblémové užívání bytu s kompletním servisem.
Nabízíme k pronájmu krásny byt 2+kk o velikosti 53m², situovaný v pečlivě udržovaném panelovém domě s výtahem. Celý byt je řešený atypicky a disponuje na míru vyrobeným nábytkem a posuvnými dveřmi pro maximální využití prostoru.
Dispozice bytu:
• Vstupní předsíň s vestavěnými skříněmi
• Koupelna s vanou, toaletou, umyvadlem, pračkou a vestavnou úložnou skříní
• Prostorný obývací pokoj s vestavěnou skříní, pracovním stolem a gaučem
• Kuchyně je umístěna samostatně a je kompletně vybavena ( myčkou, lednicí, elektrickou troubou. digestoří)
• Samostatná ložnice s postelí, pracovním stolem a skříní
• K bytu náleží sklepní
Lokalita:
Byt se nachází v oblíbené části Řep s výbornou občanskou vybaveností v okolí (obchody, služby, školy, MHD) i dostupností do centra města.
Měsíční nájem činí 18900 Kč. Poplatky za služby 3200 Kč + elektrická energie. Vratná kauce 22100 Kč. Provize RK 22100 Kč + DPH.
Pozor, velkou výhodou pro potenciální nájemce je, že byt je v profesionální správě společnosti Bohemian Estates, jenž správu pro majitele tohoto bytu vykonává. Nájemci je k dispozici kontaktní osoba, která řeší veškeré záležitosti s nájmem spojené (údržba, platby nájemného, vyúčtování, dodatky, a pod.). Nájemci je tak zajištěno bezproblémové užívání bytu s kompletním servisem.
| Cena: | 18 900 Kč / (za měsíc) |
| Poznámka: | + 3200 Kč zálohy na služby + elektřina, vratná jistota 22100 Kč, provize 22100 Kč + DPH |
| Datum k nastěhování: | 05.01.2026 |
| Dispozice/podlahová plocha: | 2+kk/53 m² |
| Číslo zakázky: | REALITYMIX-N08669 |
Podrobné informace
- Dispozice bytu: 2+kk
- Číslo podlaží v domě: 4
- Počet podlaží objektu: 11
- Celková podlahová plocha: 53 m²
- Druh objektu: panelová
- Stav objektu: velmi dobrý
- Vlastnictví: družstevní
- Umístění objektu: klidná část obce
- Doprava: vlak, dálnice, silnice, MHD, autobus
- Topení: Ústřední - dálkové
- Energetická náročnost budovy: B - Velmi úsporná
- Ukazatel energetické náročnosti budovy: 81 kWh/m²
- Energetický ukazatel podle vyhlášky: č. 264/2020 Sb.
Mapa
* Umístění na mapě je na základě GPS informací dodaných realitní kanceláří.
* Pozice na mapě je pouze orientační.