Pronájem bytu, 2+kk, 55 m²
Nad Kolčavkou, Praha 9, Libeň
25 990 Kč (za měsíc)Pronájem bytu, 2+kk, 55 m²
Nad Kolčavkou, Praha 9, Libeň
25 990 Kč
(za měsíc)
B
Velmi úsporná
Pronájem bytu 2+kk 54,7 m² Nad Kolčavkou, Praha - Libeň
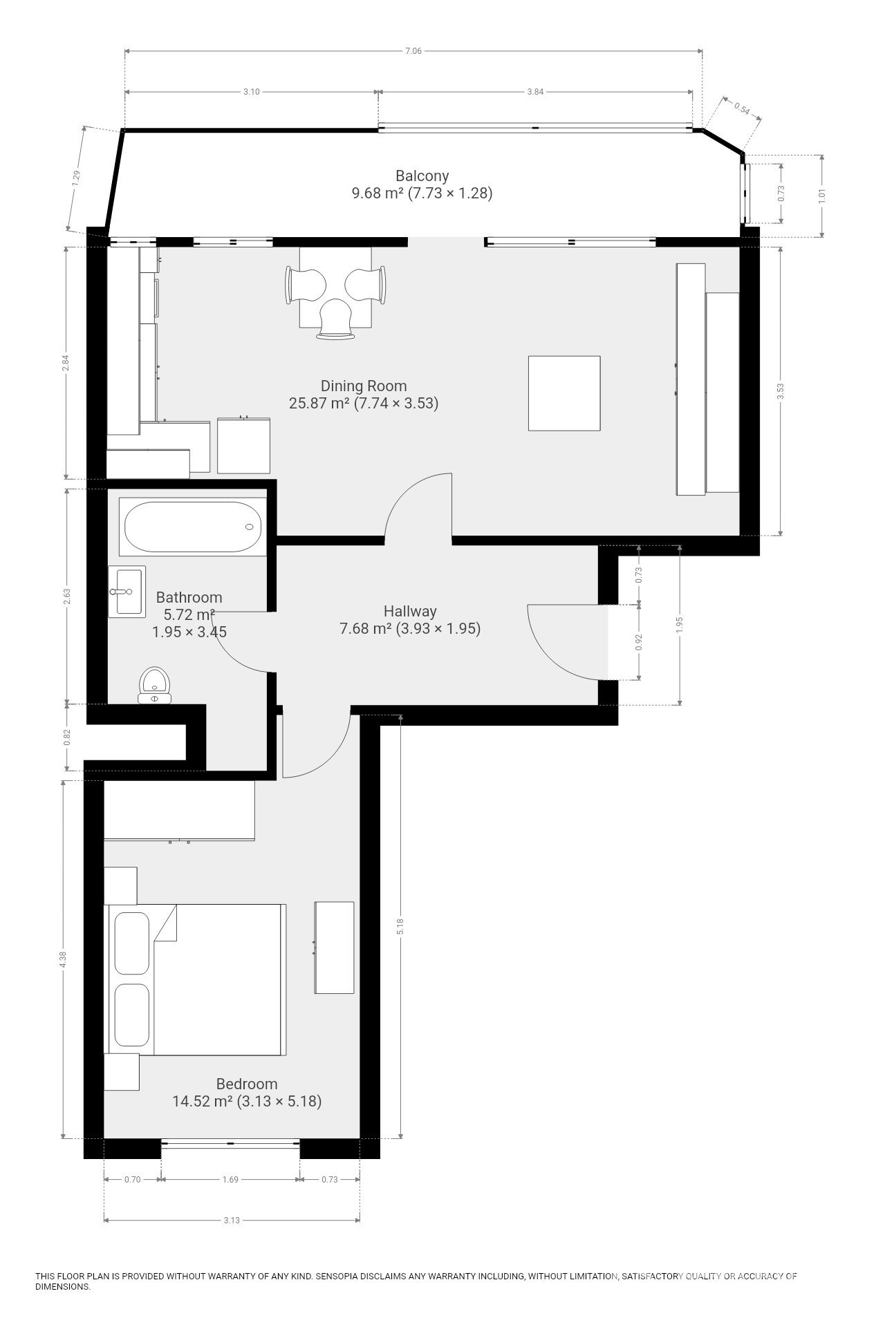
Nabízíme k dlouhodobému pronájmu moderní, plně zařízený byt 2+kk o podlahové ploše 54,7 m² ve 3. NP novostavby rezidenčního projektu KOLČAVKA na rozhraní Libně a Vysočan. Byt je připraven pro prvního nájemníka a nabízí komfortní bydlení v moderním standardu.
Dispozice bytu:
Otevřený obytný prostor propojuje obývací část s kuchyňským koutem a jídelnou. Kuchyňská linka v šedém provedení s tmavou pracovní deskou je vybavena vestavěnými spotřebiči – troubou, indukční varnou deskou, myčkou nádobí, lednicí a dřezem. Obývací část zahrnuje designovou stěnu s úložnými prostory, konferenční stolek a jídelní stůl se čtyřmi židlemi.
Ložnice je vybavena manželskou postelí s lamelovými rošty, dvěma nočními stolky, prostornou šatní skříní s posuvnými dveřmi a zrcadlem a komodou. Pokoj je světlý, orientovaný do klidného okolí.
Koupelna disponuje vanou se sprchovou baterií, umyvadlem, podsvíceným zrcadlem, zavěšenou toaletou a žebříkovým radiátorem.
Součástí bytu je prostorný balkon (10 m²) s výhledem do zeleně, přístupný z obývacího pokoje francouzskými okny.
Součástí pronájmu je sklepní kóje (4 m²) a garážové stání v podzemních garážích domu. Dům je vybaven výtahem a bezbariérovým přístupem.
Projekt KOLČAVKA se nachází v klidné, zelení obklopené části Prahy 9 s kompletní občanskou vybaveností – obchody, restaurace, lékárna i poliklinika v docházkové vzdálenosti. V okolí příjemné procházky podél Rokytky a do blízkých parků.
Výborná dopravní dostupnost: tramvajová zastávka Balabenka, stanice metra B Palmovka a Českomoravská, několik autobusových linek. Centrum Prahy cca 15 minut.
Dispozice bytu:
Otevřený obytný prostor propojuje obývací část s kuchyňským koutem a jídelnou. Kuchyňská linka v šedém provedení s tmavou pracovní deskou je vybavena vestavěnými spotřebiči – troubou, indukční varnou deskou, myčkou nádobí, lednicí a dřezem. Obývací část zahrnuje designovou stěnu s úložnými prostory, konferenční stolek a jídelní stůl se čtyřmi židlemi.
Ložnice je vybavena manželskou postelí s lamelovými rošty, dvěma nočními stolky, prostornou šatní skříní s posuvnými dveřmi a zrcadlem a komodou. Pokoj je světlý, orientovaný do klidného okolí.
Koupelna disponuje vanou se sprchovou baterií, umyvadlem, podsvíceným zrcadlem, zavěšenou toaletou a žebříkovým radiátorem.
Součástí bytu je prostorný balkon (10 m²) s výhledem do zeleně, přístupný z obývacího pokoje francouzskými okny.
Součástí pronájmu je sklepní kóje (4 m²) a garážové stání v podzemních garážích domu. Dům je vybaven výtahem a bezbariérovým přístupem.
Projekt KOLČAVKA se nachází v klidné, zelení obklopené části Prahy 9 s kompletní občanskou vybaveností – obchody, restaurace, lékárna i poliklinika v docházkové vzdálenosti. V okolí příjemné procházky podél Rokytky a do blízkých parků.
Výborná dopravní dostupnost: tramvajová zastávka Balabenka, stanice metra B Palmovka a Českomoravská, několik autobusových linek. Centrum Prahy cca 15 minut.
| Cena: | 25 990 Kč / (za měsíc) |
| Poznámka: | měsíční poplatky 4 200 Kč + 750 Kč elektřina |
| Datum k nastěhování: | 16.02.2026 |
| Dispozice/podlahová plocha: | 2+kk/55 m² |
| Číslo zakázky: | REALITYMIX-00868 |
Podrobné informace
- Bezbariérový byt: ano
- Dispozice bytu: 2+kk
- Číslo podlaží v domě: 3
- Počet podlaží objektu: 6
- Celková podlahová plocha: 55 m²
- Druh objektu: skeletová
- Stav objektu: novostavba
- Vlastnictví: osobní
- Sklep: 4 m²
- Vybaveno: ano
- Umístění objektu: centrum obce
- Doprava: silnice, MHD
- Elektřina: Elektro - 230 V
- Telekomunikace: Internet
- Topení: Ústřední - dálkové
- Odpad: Kanalizace
- Energetická náročnost budovy: B - Velmi úsporná
- Ukazatel energetické náročnosti budovy: 101 kWh/m²
- Energetický ukazatel podle vyhlášky: č. 78/2013 Sb.
Mapa
* Umístění na mapě je na základě GPS informací dodaných realitní kanceláří.
* Pozice na mapě je pouze orientační.