Pronájem bytu, 2+kk, 45 m²
Krausova, Praha 18, Letňany
17 500 Kč (za měsíc)Pronájem bytu, 2+kk, 45 m²
Krausova, Praha 18, Letňany
17 500 Kč
(za měsíc)
Pronájem bytu 2+kk, Krausova, Letňany, 17 500 Kč/měs, 45 m2
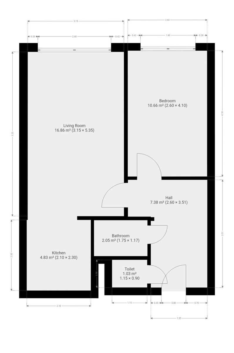
K dlouhodobému podnájmu nabízíme byt o dispozici 2+kk v klidné a oblíbené lokalitě Letňany. Byt o celkové výměře 45 m2 se nachází ve 2. podlaží panelového domu s výtahem. K bytu patří i sklep.
Byt se nabízí částečně vybavený. Kuchyně disponuje lednicí, troubou a varnou deskou. Obývací část je zařízena rozkládací pohovkou, konferenčním stolem, jídelním stolem a televizní stěnou. Ložnice je nevybavena. V koupelně je sprchový kout. Toaleta je umístěna samostatně.
V okolí domu najdeme restaurace, supermarket Albert, Lidl, základní a mateřskou školu, lékárnu, OC Letňay atd. Čtyři minuty chůze od domu je vzdálená autobusová zastávka Fryčovická a Poliklinika Frýdecká s výbornou dostupností na metro.
Majitel preferuje zájemce bez domácích mazlíčků.
Byt je volný k nastěhování od 1.5
Uvedena energetická kategorie G, jelikož nemáme k dispozici PENB.
Byt pronajímá Ideální nájemce - služba, se kterou budete bydlet bezstarostně a za férových podmínek. Když se něco přihodí, k dispozici jsou správci, kteří s vámi vše vyřeší. Pomůžeme s veškerou administrativou, s nastavením plateb a zajistíme vám speciální pojištění. Pojďte bydlet s námi!
Byt se nabízí částečně vybavený. Kuchyně disponuje lednicí, troubou a varnou deskou. Obývací část je zařízena rozkládací pohovkou, konferenčním stolem, jídelním stolem a televizní stěnou. Ložnice je nevybavena. V koupelně je sprchový kout. Toaleta je umístěna samostatně.
V okolí domu najdeme restaurace, supermarket Albert, Lidl, základní a mateřskou školu, lékárnu, OC Letňay atd. Čtyři minuty chůze od domu je vzdálená autobusová zastávka Fryčovická a Poliklinika Frýdecká s výbornou dostupností na metro.
Majitel preferuje zájemce bez domácích mazlíčků.
Byt je volný k nastěhování od 1.5
Uvedena energetická kategorie G, jelikož nemáme k dispozici PENB.
Byt pronajímá Ideální nájemce - služba, se kterou budete bydlet bezstarostně a za férových podmínek. Když se něco přihodí, k dispozici jsou správci, kteří s vámi vše vyřeší. Pomůžeme s veškerou administrativou, s nastavením plateb a zajistíme vám speciální pojištění. Pojďte bydlet s námi!
| Cena: | 17 500 Kč / (za měsíc) |
| Poznámka: | vratná jistota, náklady na bydlení 4 900 kč, poplatek za podnájem |
| Dispozice/podlahová plocha: | 2+kk/45 m² |
| Číslo zakázky: | REALITYMIX-3993 |
Podrobné informace
- Dispozice bytu: 2+kk
- Číslo podlaží v domě: 2
- Počet podlaží objektu: 12
- Celková podlahová plocha: 45 m²
- Druh objektu: panelová
- Stav objektu: velmi dobrý
- Vlastnictví: osobní
- Vybaveno: ano
- Umístění objektu: klidná část obce
- Doprava: vlak, dálnice, silnice, MHD, autobus
- Občanská vybavenost: Škola, Školka, Zdravotnická zařízení, Pošta, Supermarket, Kompletní síť obchodů a služeb
- Elektřina: Elektro - 230 V
- Topení: Ústřední - dálkové
Mapa
* Umístění na mapě je na základě GPS informací dodaných realitní kanceláří.
* Pozice na mapě je pouze orientační.
Podobné nemovitosti
Pronájem bytu, 2+kk, 31 m²
Tupolevova, Praha 18, Letňany
18 400 Kč za měsíc
Pronájem bytu, 2+kk, 40 m²
Havířovská, Praha 18, Letňany
16 990 Kč za měsíc
Pronájem bytu, 2+kk, 42 m²
Malkovského, Praha 18, Letňany
18 990 Kč za měsíc
Pronájem bytu, 2+kk, 31 m²
Tupolevova, Praha 18, Letňany
18 400 Kč za měsíc