Pronájem bytu, 2+kk, 54 m²
Na Plzeňce, Praha 5, Smíchov
22 000 Kč (za měsíc)Pronájem bytu, 2+kk, 54 m²
Na Plzeňce, Praha 5, Smíchov
22 000 Kč
(za měsíc)
G
Mimořádně nehospodárná
Pronájem bytu 2+kk, Na Plzeňce, Praha 5 - Smíchov, v domě s výtahem.
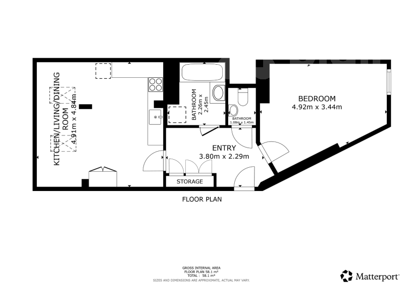
Objevte ideální bydlení v srdci Prahy. Nabízíme k pronájmu krásný a plně zařízený byt o dispozici 2+kk s celkovou plochou 54 m2. Byt je připraven k okamžitému nastěhování, stačí si přivézt své osobní věci a můžete začít bydlet. Byt je umístěn v 5. patře (posledním patře) moderního domu s výtahem a nabízí příjemný výhled na Vyšehrad.
Dispozice 2+kk, prostorná chodba s dostatkem úložných prostor, koupelna s vanou s praktickou zástěnou a novou pračkou se sušičkou, samostatná toaleta, obývací pokoj s kuchyňským koutem (nová lednice s mrazákem, trouba, varná deska, digestoř, mikrovlnná trouba, základní kuchyňské vybavení nože, příbory, hrnce, hrnečky, skleničky), ložnice s postelí a skříněmi, psací stolek. K bytu náleží sklep (4m2).
Nájemné: 22 000 Kč, Poplatky: zálohy 1400 Kč, elektřina na nájemce; vratná kauce ve výši dvou nájmů. Provize RK 1 měsíční nájem.
Dopravní dostupnost:
Metro "Smíchovské nádraží": 3 minuty pěšky
Tramvajová zastávka "Lihovar": 5 minut pěšky
Vlakové nádraží "Praha-Smíchov": 10 minut pěšky
Parkování na ulici před domem.
Veškerá občanská vybavenost k dispozici: OC Nový Smíchov: 5 min. autem nebo 15 min. pěšky
Cesta autem do centra Prahy 1 trvá cca 15 min. Veřejnou dopravou, např. metrem ze stanice "Smíchovské nádraží" na stanici "Staroměstská", se dostanete za přibližně 10-12 min., poté si můžete užít krásnou procházku Pařížskou ulicí. Tato lokalita je tedy velmi dobře dostupná a nabízí rychlé spojení do centra města.
Byt je ideální pro jednotlivce nebo pár hledající komfortní bydlení s vynikající dostupností a občanskou vybaveností. Pro více informací a zájmu o prohlídku nás neváhejte kontaktovat.
Dispozice 2+kk, prostorná chodba s dostatkem úložných prostor, koupelna s vanou s praktickou zástěnou a novou pračkou se sušičkou, samostatná toaleta, obývací pokoj s kuchyňským koutem (nová lednice s mrazákem, trouba, varná deska, digestoř, mikrovlnná trouba, základní kuchyňské vybavení nože, příbory, hrnce, hrnečky, skleničky), ložnice s postelí a skříněmi, psací stolek. K bytu náleží sklep (4m2).
Nájemné: 22 000 Kč, Poplatky: zálohy 1400 Kč, elektřina na nájemce; vratná kauce ve výši dvou nájmů. Provize RK 1 měsíční nájem.
Dopravní dostupnost:
Metro "Smíchovské nádraží": 3 minuty pěšky
Tramvajová zastávka "Lihovar": 5 minut pěšky
Vlakové nádraží "Praha-Smíchov": 10 minut pěšky
Parkování na ulici před domem.
Veškerá občanská vybavenost k dispozici: OC Nový Smíchov: 5 min. autem nebo 15 min. pěšky
Cesta autem do centra Prahy 1 trvá cca 15 min. Veřejnou dopravou, např. metrem ze stanice "Smíchovské nádraží" na stanici "Staroměstská", se dostanete za přibližně 10-12 min., poté si můžete užít krásnou procházku Pařížskou ulicí. Tato lokalita je tedy velmi dobře dostupná a nabízí rychlé spojení do centra města.
Byt je ideální pro jednotlivce nebo pár hledající komfortní bydlení s vynikající dostupností a občanskou vybaveností. Pro více informací a zájmu o prohlídku nás neváhejte kontaktovat.
| Cena: | 22 000 Kč / (za měsíc) |
| Poznámka: | Nájem Kč 22 000/měs., Zálohy Kč 1400/měs., vratná kauce ve výši dvou nájmů. Elektřina se převádí na nájemce. Provize RK 1 mesíční nájem. |
| Datum k nastěhování: | 15.09.2025 |
| Dispozice/podlahová plocha: | 2+kk/54 m² |
| Číslo zakázky: | REALITYMIX-233481 |
Podrobné informace
- Bezbariérový byt: ano
- Dispozice bytu: 2+kk
- Číslo podlaží v domě: 6
- Počet podlaží objektu: 6
- Celková podlahová plocha: 54 m²
- Druh objektu: cihlová
- Stav objektu: velmi dobrý
- Stáří objektu: 1919
- Vlastnictví: osobní
- Sklep: 4 m²
- Vybaveno: ano
- Doprava: silnice, MHD, autobus
- Elektřina: Elektro - 230 V
- Voda: Voda - dálkový vodovod
- Telekomunikace: Internet
- Topení: Ústřední - dálkové
- Odpad: Kanalizace
- Ostatní rozvody: Satelit, Kabelová televize
- Energetická náročnost budovy: G - Mimořádně nehospodárná
- Popis vybavení: Varná deska, Myčka nádobí, horkovzdušná trouba elektrická, mikrovlnná trouba, digestoř. Nová lednice s mrazákem. V koupelně je pračka a sušička v jednom. Základní kuchyňské vybavení, příbory, nože, t
Mapa
* Umístění na mapě je na základě GPS informací dodaných realitní kanceláří.
* Pozice na mapě je pouze orientační.