Pronájem bytu, 3+1, 83 m²
Brandlova, Praha 11, Chodov
24 950 Kč (za měsíc)Pronájem bytu, 3+1, 83 m²
Brandlova, Praha 11, Chodov
24 950 Kč
(za měsíc)
C
Vyhovující
Pronájem bytu 3+1, Brandlova, 24 950 Kč/měs Chodov, 83 m2
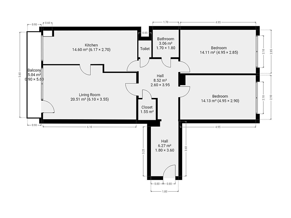
K dlouhodobému podnájmu vám nabízíme tento částečně zařízený byt 3+1 se zaklenou lodžií. Byt se nachází v lokalitě s veškerou občanskou vybaveností a vynikající dopravní dostupností. Pár kroku od domu se nachází hypermarket Albert, lékárna a několik základních i mateřských škol. V pěší dostupnosti je stanice metra C - Háje a autobusová zastávka Hněvkovského nebo Prašná.
Interiér bytu tvoří centrální chodba vybavena vybavena vestavnými skříněmi, obývací pokoj se vstupem na zasklenou lodžii, ložnice a dětský pokoj s další, velkou šatní skříní. Byt si déle můžete zařídit plně dle svých představ a potřeb. Koupelna je vybavena vanou, umyvadlem. Toaleta je umístěna samostatně.
Kuchyně je vybavena troubou, myčkou, lednicí, digestoří a plynovým sporákem.
Zálohové platby už obsahují zálohy na elektřinu a pojištění domácnosti.
Byt je k nastěhování IHNED.
Interiér bytu tvoří centrální chodba vybavena vybavena vestavnými skříněmi, obývací pokoj se vstupem na zasklenou lodžii, ložnice a dětský pokoj s další, velkou šatní skříní. Byt si déle můžete zařídit plně dle svých představ a potřeb. Koupelna je vybavena vanou, umyvadlem. Toaleta je umístěna samostatně.
Kuchyně je vybavena troubou, myčkou, lednicí, digestoří a plynovým sporákem.
Zálohové platby už obsahují zálohy na elektřinu a pojištění domácnosti.
Byt je k nastěhování IHNED.
| Cena: | 24 950 Kč / (za měsíc) |
| Poznámka: | vratná jistota, náklady na bydlení 5.428 Kč, poplatek za podnájem |
| Dispozice/podlahová plocha: | 3+1/83 m² |
| Číslo zakázky: | REALITYMIX-4684 |
Podrobné informace
- Bezbariérový byt: ano
- Dispozice bytu: 3+1
- Číslo podlaží v domě: 4
- Počet podlaží objektu: 8
- Celková podlahová plocha: 83 m²
- Druh objektu: panelová
- Stav objektu: dobrý
- Vlastnictví: osobní
- Umístění objektu: klidná část obce
- Občanská vybavenost: Škola, Školka, Zdravotnická zařízení, Pošta, Supermarket, Kompletní síť obchodů a služeb
- Elektřina: Elektro - 230 V
- Topení: Ústřední - dálkové
- Energetická náročnost budovy: C - Vyhovující
Mapa
* Umístění na mapě je na základě GPS informací dodaných realitní kanceláří.
* Pozice na mapě je pouze orientační.