Pronájem bytu, 3+1, 84 m²
Rosečská, Praha 4, Krč
31 000 Kč (za měsíc)Pronájem bytu, 3+1, 84 m²
Rosečská, Praha 4, Krč
31 000 Kč
(za měsíc)
G
Mimořádně nehospodárná
Pronájem bytu 3+1, Rosečská, Krč, 31000 Kč/měs, 84 m2
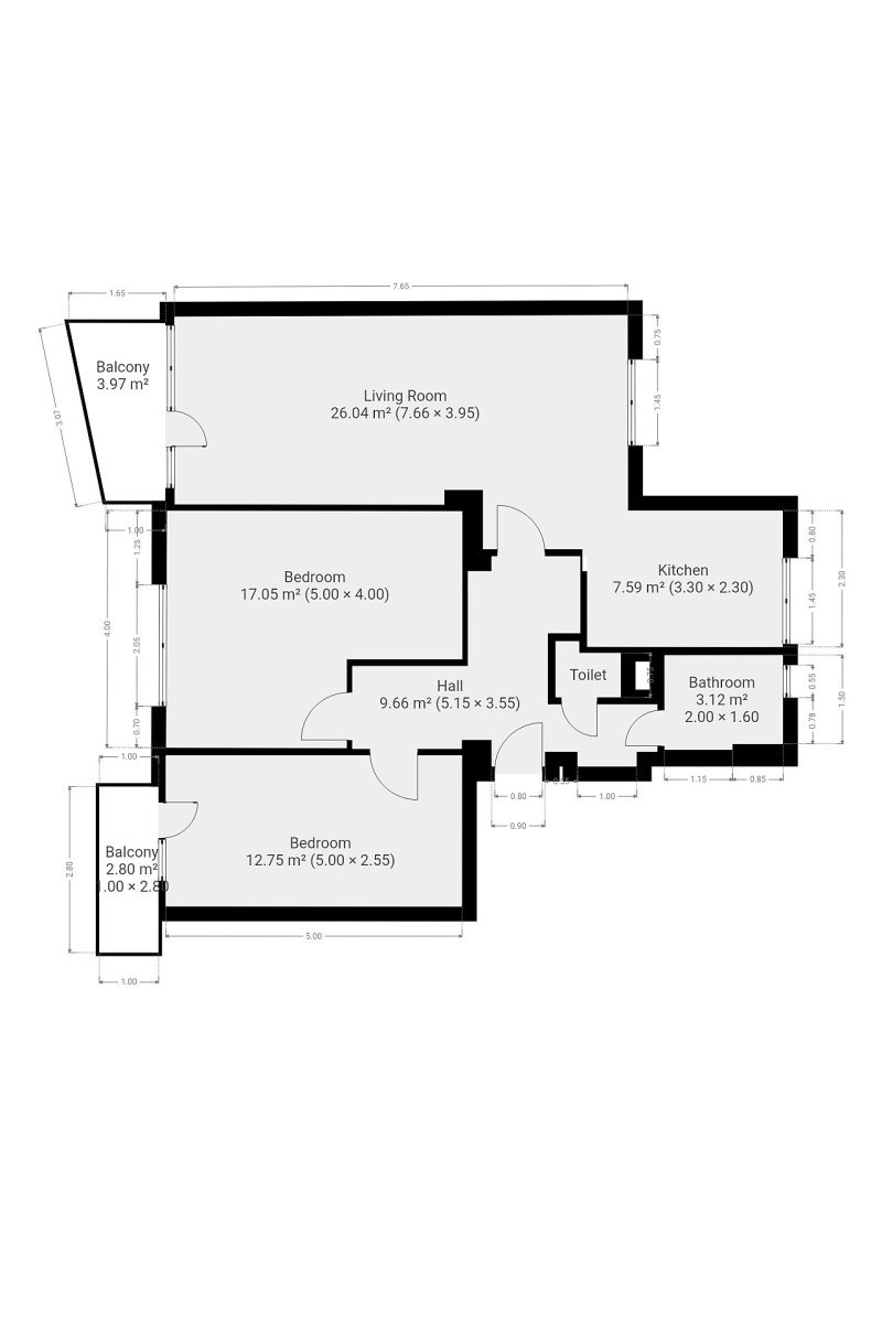
K dlouhodobému podnájmu nabízíme moderní a světlý byt o dispozici 3+1 v klidné lokalitě Praha 4- Krč. Byt o celkové výměře 84 m² se nachází v 2. patře udržovaného bytového domu. K bytu náleží balkon s příjemný výhledem do přírody a také praktický sklep.
Byt je nabízen nezařízený, což dává možnost uzpůsobit si interiér podle vlastního vkusu. Kuchyně je vybavena lednicí s mrazákem, elektrickou a mikrovlnnou troubou, varnou deskou, digestoří, myčkou, pračkou a praktickým úložným prostorem. Obytná část disponuje rozměrným a světlým prostorem, který lze vybavit jak sedací soupravou, tak i například jídelním koutem. K dispozici jsou rovněž dva samostatné pokoje, které mohou sloužit jako například ložnice, dětský pokoj nebo pracovna. Koupelna je vybavena vanou, umyvadlem, koupelnovou skříňkou, toaleta je umístěna samostatně.
V okolí domu je kompletní občanská vybavenost – supermarket Albert, lékařská péče, školy a školky, restaurace, pošta. Pro volný čas je ideální blízký Kunratický les, vzdálený jen pár minut chůze. Výbornou dopravní dostupnost zajišťuje autobusová doprava.
Byt je volný k nastěhování ihned.
Energetická třída: G (průkaz nedodán).
Byt je nabízen nezařízený, což dává možnost uzpůsobit si interiér podle vlastního vkusu. Kuchyně je vybavena lednicí s mrazákem, elektrickou a mikrovlnnou troubou, varnou deskou, digestoří, myčkou, pračkou a praktickým úložným prostorem. Obytná část disponuje rozměrným a světlým prostorem, který lze vybavit jak sedací soupravou, tak i například jídelním koutem. K dispozici jsou rovněž dva samostatné pokoje, které mohou sloužit jako například ložnice, dětský pokoj nebo pracovna. Koupelna je vybavena vanou, umyvadlem, koupelnovou skříňkou, toaleta je umístěna samostatně.
V okolí domu je kompletní občanská vybavenost – supermarket Albert, lékařská péče, školy a školky, restaurace, pošta. Pro volný čas je ideální blízký Kunratický les, vzdálený jen pár minut chůze. Výbornou dopravní dostupnost zajišťuje autobusová doprava.
Byt je volný k nastěhování ihned.
Energetická třída: G (průkaz nedodán).
| Cena: | 31 000 Kč / (za měsíc) |
| Poznámka: | vratná jistota, náklady na bydlení 6298 Kč, poplatek za podnájem |
| Dispozice/podlahová plocha: | 3+1/84 m² |
| Číslo zakázky: | REALITYMIX-6930 |
Podrobné informace
- Dispozice bytu: 3+1
- Číslo podlaží v domě: 2
- Počet podlaží objektu: 3
- Celková podlahová plocha: 84 m²
- Druh objektu: smíšená
- Stav objektu: velmi dobrý
- Vlastnictví: osobní
- Umístění objektu: klidná část obce
- Doprava: dálnice, silnice, MHD, autobus
- Občanská vybavenost: Škola, Školka, Zdravotnická zařízení, Pošta, Supermarket, Kompletní síť obchodů a služeb
- Elektřina: Elektro - 230 V
- Topení: Lokální - plynové
- Energetická náročnost budovy: G - Mimořádně nehospodárná
Mapa
* Umístění na mapě je na základě GPS informací dodaných realitní kanceláří.
* Pozice na mapě je pouze orientační.