Pronájem bytu, 3+kk, 54 m²
Na Šutce, Praha 8, Troja
23 999 Kč (za měsíc)Pronájem bytu, 3+kk, 54 m²
Na Šutce, Praha 8, Troja
23 999 Kč
(za měsíc)
G
Mimořádně nehospodárná
Pronájem bytu 3+kk 55 m2 Praha 8, ulice Na Šutce
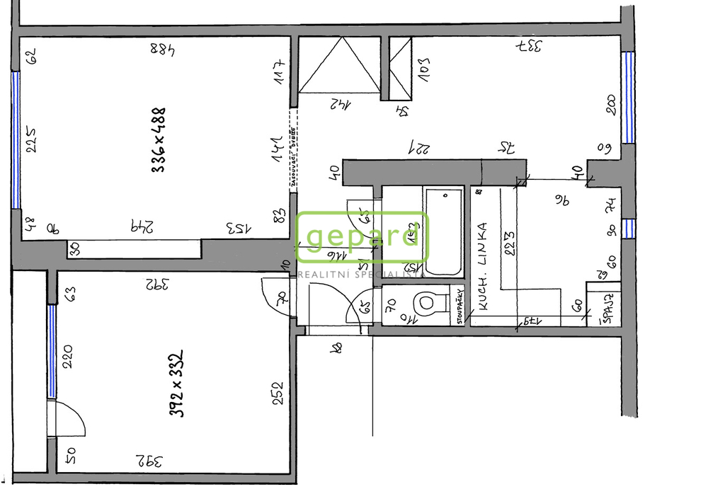
Pronajme se slunný byt o velikosti 3+kk 55 m2 v 3. podlaží třípodlažního zděného bytového domu v Praze 8 - Troja, ulice Na Šutce.
Byt je v osobním vlastnictví, po nadstandardní rekonstrukci. Byt je orientován jižním směrem, s nádherným výhledem na Prahu.
Dispozice:
- vstupní hala 6 m2
- pokoj 1 (ložnice) 13 m2
- lodžie 3 m2
- pokoj 2 (obýv. pokoj) 17 m2
- WC 1 m2
- koupelna 3 m2
- pokoj 3 (jídelna) 8 m2
- kuchyň 4 m2
- komora/sklad v suterénu domu 7 m2
Byt je po nadstandardní rekonstrukci. V ložnici a obývacím pokoji dřevěné parkety, v hale, jídelně a kuchyni vinylové podlahy, v koupelně a WC keramická dlažba. Na stěnách štuk s výmalbou, v koupelně keramické obklady. V kuchyni nová kuchyňská linka, všechny dveře nové včetně obložek. Ve vstupní hale je vestavěná skříň.
Byt se nabízí k pronájmu bez nábytku, částečně vybavený:
kuchyň - elektrický sporák se sklokeramickou varnou deskou, mikrovlnná trouba
předsíň - vestavěná skříň
Topení a ohřev vody - centrální
Elektrická energie - 220V.
Voda - veřejný vodovod.
Kanalizace - veřejná kanalizace.
Možnost kabelové televize, internetu.
Parkování - u domu.
Byt má nízké provozní náklady - měsíční zúčtovatelná záloha (pro 1 osobu) 3.900,- Kč, záloha na spotřebu elektro 500,- Kč.
Dům je ve výborném stavu, udržovaný, po rekonstrukci - nová plastová okna a vchodové dveře, nová střecha.
Velice žádané místo s veškerou občanskou vybaveností v okolí domu, s dobrým dopravním spojením.
Byt je volný ihned. Majitel upřednostní dlouhodobý nájemní vztah. Vratná kauce - dvě měsíční platby. Majitel si vyhrazuje právo vybrat nájemce dle svých vlastních kritérií.
Byt je v osobním vlastnictví, po nadstandardní rekonstrukci. Byt je orientován jižním směrem, s nádherným výhledem na Prahu.
Dispozice:
- vstupní hala 6 m2
- pokoj 1 (ložnice) 13 m2
- lodžie 3 m2
- pokoj 2 (obýv. pokoj) 17 m2
- WC 1 m2
- koupelna 3 m2
- pokoj 3 (jídelna) 8 m2
- kuchyň 4 m2
- komora/sklad v suterénu domu 7 m2
Byt je po nadstandardní rekonstrukci. V ložnici a obývacím pokoji dřevěné parkety, v hale, jídelně a kuchyni vinylové podlahy, v koupelně a WC keramická dlažba. Na stěnách štuk s výmalbou, v koupelně keramické obklady. V kuchyni nová kuchyňská linka, všechny dveře nové včetně obložek. Ve vstupní hale je vestavěná skříň.
Byt se nabízí k pronájmu bez nábytku, částečně vybavený:
kuchyň - elektrický sporák se sklokeramickou varnou deskou, mikrovlnná trouba
předsíň - vestavěná skříň
Topení a ohřev vody - centrální
Elektrická energie - 220V.
Voda - veřejný vodovod.
Kanalizace - veřejná kanalizace.
Možnost kabelové televize, internetu.
Parkování - u domu.
Byt má nízké provozní náklady - měsíční zúčtovatelná záloha (pro 1 osobu) 3.900,- Kč, záloha na spotřebu elektro 500,- Kč.
Dům je ve výborném stavu, udržovaný, po rekonstrukci - nová plastová okna a vchodové dveře, nová střecha.
Velice žádané místo s veškerou občanskou vybaveností v okolí domu, s dobrým dopravním spojením.
Byt je volný ihned. Majitel upřednostní dlouhodobý nájemní vztah. Vratná kauce - dvě měsíční platby. Majitel si vyhrazuje právo vybrat nájemce dle svých vlastních kritérií.
| Cena: | 23 999 Kč / (za měsíc) |
| Poznámka: | vratná kauce 2 měsíční platby |
| Datum k nastěhování: | 25.02.2026 |
| Dispozice/podlahová plocha: | 3+kk/54 m² |
| Číslo zakázky: | REALITYMIX-11932 |
Podrobné informace
- Dispozice bytu: 3+kk
- Číslo podlaží v domě: 3
- Počet podlaží objektu: 4
- Užitná plocha: 51 m²
- Celková podlahová plocha: 54 m²
- Druh objektu: cihlová
- Stav objektu: po rekonstrukci
- Vlastnictví: osobní
- Lodžie: 3 m²
- Sklep: 7 m²
- Vybaveno: ano
- Umístění objektu: klidná část obce
- Doprava: silnice, MHD, autobus
- Elektřina: Elektro - 230 V
- Voda: Voda - dálkový vodovod
- Plyn: Plynovod
- Odpad: Kanalizace
- Energetická náročnost budovy: G - Mimořádně nehospodárná
- Energetický ukazatel podle vyhlášky: č. 264/2020 Sb.
Mapa
* Umístění na mapě je na základě GPS informací dodaných realitní kanceláří.
* Pozice na mapě je pouze orientační.