Pronájem bytu, 3+kk, 83 m²
Čakovická, Praha 9, Prosek
34 000 Kč (za měsíc)Pronájem bytu, 3+kk, 83 m²
Čakovická, Praha 9, Prosek
34 000 Kč
(za měsíc)
B
Úsporná
Pronájem bytu 3+kk, Čakovická, Prosek, 34000 Kč/měs, 83 m2
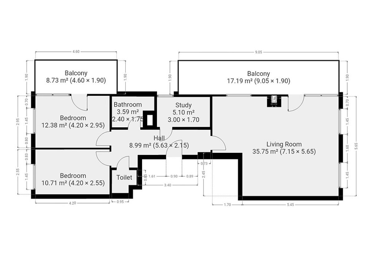
K dlouhodobému podnájmu nabízíme prostorný byt o dispozici 3+kk v moderním rezidenčním projektu Finep na adrese Čakovická 883/44, Praha 9. Byt o celkové výměře 83 m² se nachází ve 3. podlaží domu s výtahem. K bytu náleží velká terasa o rozloze 25 m², garážové stání v ceně nájmu a sklepní kóje.
Byt se nabízí nevybavený, avšak s kompletně zařízenou kuchyňskou linkou včetně varné desky, trouby, digestoře, myčky a vestavěné pračky se sušičkou. Výhodou je také praktická komora / šatna, která poskytuje dostatek úložného prostoru.
V koupelně se nachází vana, toaleta je oddělená. Z obývacího pokoje i ložnice je přímý vstup na prostornou terasu, která nabízí příjemné venkovní posezení. Součástí bude také vestavěná pračka se sušičkou.
Skvělou výhodou je pouze tříminutová pěší vzdálenost na stanici metra Prosek, díky čemuž je zajištěna výborná dostupnost do centra města. V okolí se nachází také obchodní centrum Letňany, restaurace, školy, školky a zastávky MHD.
Byt bude volný k nastěhování ihned.
Byt se nabízí nevybavený, avšak s kompletně zařízenou kuchyňskou linkou včetně varné desky, trouby, digestoře, myčky a vestavěné pračky se sušičkou. Výhodou je také praktická komora / šatna, která poskytuje dostatek úložného prostoru.
V koupelně se nachází vana, toaleta je oddělená. Z obývacího pokoje i ložnice je přímý vstup na prostornou terasu, která nabízí příjemné venkovní posezení. Součástí bude také vestavěná pračka se sušičkou.
Skvělou výhodou je pouze tříminutová pěší vzdálenost na stanici metra Prosek, díky čemuž je zajištěna výborná dostupnost do centra města. V okolí se nachází také obchodní centrum Letňany, restaurace, školy, školky a zastávky MHD.
Byt bude volný k nastěhování ihned.
| Cena: | 34 000 Kč / (za měsíc) |
| Poznámka: | vratná jistota, náklady na bydlení 8200 Kč, poplatek za podnájem |
| Dispozice/podlahová plocha: | 3+kk/83 m² |
| Číslo zakázky: | REALITYMIX-6857 |
Podrobné informace
- Dispozice bytu: 3+kk
- Číslo podlaží v domě: 3
- Počet podlaží objektu: 7
- Celková podlahová plocha: 83 m²
- Druh objektu: cihlová
- Stav objektu: novostavba
- Vlastnictví: osobní
- Umístění objektu: klidná část obce
- Elektřina: Elektro - 230 V
- Energetická náročnost budovy: B - Úsporná
Mapa
* Umístění na mapě je na základě GPS informací dodaných realitní kanceláří.
* Pozice na mapě je pouze orientační.