Pronájem - kanceláře, 107 m²
Jeseniova, Praha 3, Žižkov
250 Kč (za m2/měsíc)Pronájem - kanceláře, 107 m²
Jeseniova, Praha 3, Žižkov
250 Kč
(za m2/měsíc)
E
Nehospodárná
Pronájem kancelářských prostor, 107m2, Praha 3 - Žižkov, nezařízené, 3 místnosti, soc. zázemí
Dovolujeme si Vám nabídnout k pronájmu kancelářské prostory o celkové ploše 107m2, situované v přízemí cihlového domu v Praze 3 - Žižkov, v ulici Koldínova (roh s ulicí Jeseniova), v těsné blízkosti parku Parukářka.
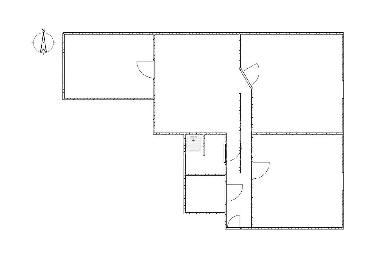
Prostory sestávající z prostorné vstupní chodby s kuchyňským koutem, 3 samostatných kanceláří (každá cca 17m2), samostatné toalety s umyvadlem, a koupelny se sprchovým koutem.
Kanceláře se pronajímají jako nezařízené (část nábytku na fotografiích je možné odkoupit od současného nájemce, více informací při prohlídce). Z vybavení zůstává ze strany pronajímatele pouze kuchyňský kout (linka s dřezem, lednicí s menším mrazákem a mikrovlnou troubou) s barovým skleněným pultem, velká vestavěná skříň.
Nová eurookna s mřížemi, vytápění zajišťuje vlastní plynový kotel s termostatem, ohřev vody pak nový průtokový ohřívač. Podlahovou krytinu tvoří zátěžové koberce (ve 2 kancelářích), dlažba a parkety (vstupní chodba a 3. kancelář).
K dispozici optický internet.
Parkování možné na ulici před domem (rezidentní parkovací zóny Prahy 3).
Sídlo společnosti samozřejmostí.
Preferujeme dlouhodobého nájemníka s účelem podnikání administrativního charakteru.
K nastěhování ihned.
Pro více informací či termín prohlídky mne neváhejte kdykoliv kontaktovat.
ID nabídky: N2280
Prostory sestávající z prostorné vstupní chodby s kuchyňským koutem, 3 samostatných kanceláří (každá cca 17m2), samostatné toalety s umyvadlem, a koupelny se sprchovým koutem.
Kanceláře se pronajímají jako nezařízené (část nábytku na fotografiích je možné odkoupit od současného nájemce, více informací při prohlídce). Z vybavení zůstává ze strany pronajímatele pouze kuchyňský kout (linka s dřezem, lednicí s menším mrazákem a mikrovlnou troubou) s barovým skleněným pultem, velká vestavěná skříň.
Nová eurookna s mřížemi, vytápění zajišťuje vlastní plynový kotel s termostatem, ohřev vody pak nový průtokový ohřívač. Podlahovou krytinu tvoří zátěžové koberce (ve 2 kancelářích), dlažba a parkety (vstupní chodba a 3. kancelář).
K dispozici optický internet.
Parkování možné na ulici před domem (rezidentní parkovací zóny Prahy 3).
Sídlo společnosti samozřejmostí.
Preferujeme dlouhodobého nájemníka s účelem podnikání administrativního charakteru.
K nastěhování ihned.
Pro více informací či termín prohlídky mne neváhejte kdykoliv kontaktovat.
ID nabídky: N2280
| Cena: | 250 Kč / (za m2/měsíc) |
| Poznámka: | + záloha na domovní služby (cca 1.000,-Kč/měs.) + přepis el. a plynu na nájemce |
| Číslo zakázky: | REALITYMIX-2280 |
Podrobné informace
- Plocha kanceláří: 107 m²
- Druh objektu: cihlová
- Stav objektu: velmi dobrý
- Druh prostor: Kanceláře
- Umístění objektu: rušná část obce
- Doprava: MHD
- Elektřina: Elektro - 230 V
- Voda: Voda - dálkový vodovod
- Topení: Lokální - plynové
- Energetická náročnost budovy: E - Nehospodárná
Mapa
* Umístění na mapě je na základě GPS informací dodaných realitní kanceláří.
* Pozice na mapě je pouze orientační.
Podobné nemovitosti
Pronájem - kanceláře, 28 m²
Lucemburská, Praha 3
9 000 Kč za měsíc
Pronájem - kanceláře, 420 m²
Přemyslovská, Praha 3, Žižkov
384 Kč za m2/měsíc
Pronájem - kanceláře, 275 m²
Chrudimská, Praha 3, Vinohrady
330 Kč za m2/měsíc
Pronájem - obchodní prostor, 376 m²
Chrudimská, Praha 3, Vinohrady
Cena na vyžádání