Pronájem - jiné, 70 m²
Maiselova, Praha 1, Josefov
27 000 Kč (za měsíc)Pronájem - jiné, 70 m²
Maiselova, Praha 1, Josefov
27 000 Kč
(za měsíc)
G
Mimořádně nehospodárná
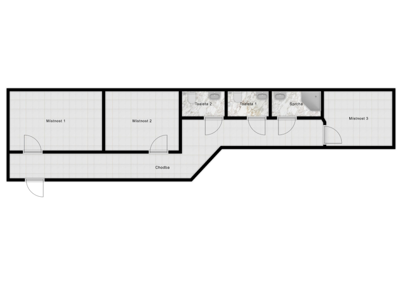
Pronájem komerčních prostor o velikosti 70 m2 (3 místnosti) v podzemí
Pronájem komerčních prostor po rekonstrukci v podzemí o velikosti 70 m2 - 3 samostatné místnosti o velikosti 10 m2, 12 m2 a 13 m2, 2 samostatné toalet y + samostatná sprcha.
Jedná se o podzemní prostory s přístupem přes dům z ulice.
Luxusní lokalita ve vedlejší ulici od Pařížské ul.
Prostory jsou nově zrekonstruovány s novou vzduchotechnikou.
Nové rozvody elektřiny a vody.
Prostory jsou vhodné na kanceláře, pedikůru a jiné služby.
Nájemné 27 000 Kč/měsíc na prvních 6 měsíců, následně 32 000 Kč/měsíc + náklady na elektřinu.
Kauce 2x nájemné
Uvedené ceny jsou bez DPH.
Odměna RK 27 000 Kč vč. DPH
Těším se na osobní setkání při osobní prohlídce.
Jedná se o podzemní prostory s přístupem přes dům z ulice.
Luxusní lokalita ve vedlejší ulici od Pařížské ul.
Prostory jsou nově zrekonstruovány s novou vzduchotechnikou.
Nové rozvody elektřiny a vody.
Prostory jsou vhodné na kanceláře, pedikůru a jiné služby.
Nájemné 27 000 Kč/měsíc na prvních 6 měsíců, následně 32 000 Kč/měsíc + náklady na elektřinu.
Kauce 2x nájemné
Uvedené ceny jsou bez DPH.
Odměna RK 27 000 Kč vč. DPH
Těším se na osobní setkání při osobní prohlídce.
| Cena: | 27 000 Kč / (za měsíc) |
| Poznámka: | Odměna RK 27 000 Kč, kauce 2x nájemné |
| Datum k nastěhování: | 01.01.2026 |
| Číslo zakázky: | REALITYMIX-232995 |
Podrobné informace
- Plocha kanceláří: 70 m²
- Druh objektu: cihlová
- Stav objektu: před rekonstrukcí
- Druh prostor: Jiné
- Umístění objektu: centrum obce
- Komunikace: asfaltová
- Energetická náročnost budovy: G - Mimořádně nehospodárná
Mapa
* Umístění na mapě je na základě GPS informací dodaných realitní kanceláří.
* Pozice na mapě je pouze orientační.
Podobné nemovitosti
Pronájem - kanceláře, 659 m²
Na Poříčí, Praha 1, Nové Město
23,75 € za m2/měsíc
Pronájem - kanceláře, 38 m²
Senovážné náměstí, Praha 1, Nové Město
270 Kč za m2/měsíc
Pronájem - obchodní prostor, 50 m²
Václavské náměstí, Praha 1, Nové Město
500 000 Kč za měsíc
Pronájem - kanceláře, 21 m²
Senovážné náměstí, Praha 1, Nové Město
270 Kč za m2/měsíc