Pronájem - obchodní prostor, 123 m²
Strakonická, Praha-Zbraslav, Lahovice
19 251 Kč (za měsíc)Pronájem - obchodní prostor, 123 m²
Strakonická, Praha-Zbraslav, Lahovice
19 251 Kč
(za měsíc)
G
Mimořádně nehospodárná
Pronájem komerčních prostor: Praha 5 - Hlubočepy, Strakonická
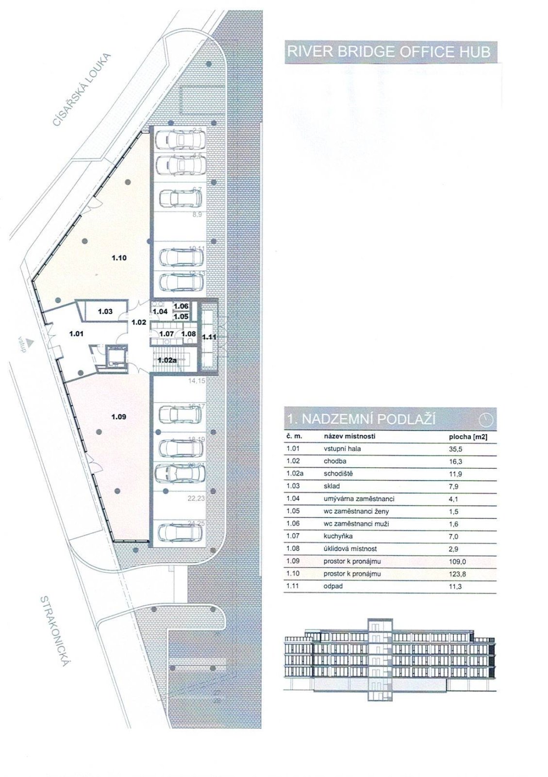
Nabízíme k pronájmu komerční prostory v moderní administrativní budově River Bridge Office Hub v atraktivní lokalitě Prahy 5. Prostory o rozloze 99,1 m2 se nachází v přízemí (1NP) budovy s recepcí a 24/7 ostrahou. Součástí pronájmu je využití sociálního zázemí o rozloze 66 m2. Lokalita s veškerou občanskou vybaveností a výbornou dopravní dostupností autem i MHD. Jen pár minut od tramvajové zastávky Lihovar a několik minut od stanice metra Smíchovské nádraží. Blízký nájezd na Pražský okruh a návaznou dálniční síť.
Zvýhodněné nájemné po dobu prvních 9 měsíců činí 7,99 Euro/m2/měsíc + 21%DPH, plné nájemné činí 14,99 Euro/m2/měsíc + 21% DPH. Celkové nájemné uvedené v EUR se platí v Kč, které se přepočítává dle průměru kurzů za poslední 3 měsíce.
Cena za služby je 140 Kč/m2/měsíc + DPH a obsahuje: služby recepce + vrátnice, 24/7 ostraha, elektřina, vytápění, úklid a údržba společných prostor, odvoz odpadu, údržba přístupových komunikací a areálu RBOH.
K dispozici je parkovací stání za extra cenu za měsíc: krytá parkovací stání pod budovou 115 Euro + DPH, venkovní parkovací stání 85 Euro + DPH, parkovací stání za mostem 1,010 Kč + DPH.
Tento prostor lze využit ve spojení se sportovním odvětvím – ať už formou prodejny se sportovními potřebami (výživa, oblečení, pomůcky apod.), nebo například jako cvičební studio, menší fitness či podobný koncept. Prostory jsou k nastěhování od března 2026. K dispozici více prostor k pronájmu v 1. až 3. patře budovy - pro více informací kontaktujte, prosím, naši kancelář.
Zvýhodněné nájemné po dobu prvních 9 měsíců činí 7,99 Euro/m2/měsíc + 21%DPH, plné nájemné činí 14,99 Euro/m2/měsíc + 21% DPH. Celkové nájemné uvedené v EUR se platí v Kč, které se přepočítává dle průměru kurzů za poslední 3 měsíce.
Cena za služby je 140 Kč/m2/měsíc + DPH a obsahuje: služby recepce + vrátnice, 24/7 ostraha, elektřina, vytápění, úklid a údržba společných prostor, odvoz odpadu, údržba přístupových komunikací a areálu RBOH.
K dispozici je parkovací stání za extra cenu za měsíc: krytá parkovací stání pod budovou 115 Euro + DPH, venkovní parkovací stání 85 Euro + DPH, parkovací stání za mostem 1,010 Kč + DPH.
Tento prostor lze využit ve spojení se sportovním odvětvím – ať už formou prodejny se sportovními potřebami (výživa, oblečení, pomůcky apod.), nebo například jako cvičební studio, menší fitness či podobný koncept. Prostory jsou k nastěhování od března 2026. K dispozici více prostor k pronájmu v 1. až 3. patře budovy - pro více informací kontaktujte, prosím, naši kancelář.
| Cena: | 19 251 Kč / (za měsíc) |
| Poznámka: | + služby |
| Číslo zakázky: | REALITYMIX-26017 |
Podrobné informace
- Plocha kanceláří: 123 m²
- Druh objektu: smíšená
- Stav objektu: velmi dobrý
- Druh prostor: Obchodní
- Umístění objektu: rušná část obce
- Energetická náročnost budovy: G - Mimořádně nehospodárná
- Energetický ukazatel podle vyhlášky: č. 264/2020 Sb.
Mapa
* Umístění na mapě je na základě GPS informací dodaných realitní kanceláří.
* Pozice na mapě je pouze orientační.
Podobné nemovitosti
Pronájem - kanceláře, 38 m²
Žitavského, Praha-Zbraslav, Zbraslav
9 120 Kč za měsíc
Pronájem - kanceláře, 28 m²
Žitavského, Praha-Zbraslav, Zbraslav
6 720 Kč za měsíc
Pronájem - kanceláře, 123 m²
Strakonická, Praha-Zbraslav, Lahovice
24 050 Kč za měsíc
Pronájem - obchodní prostor, 147 m²
Zbraslavské náměstí, Praha-Zbraslav, Zbraslav
50 000 Kč za měsíc