Pronájem bytu, 1+kk, 34 m²
Musílkova, Praha 5, Košíře
20 100 Kč (za měsíc)Pronájem bytu, 1+kk, 34 m²
Musílkova, Praha 5, Košíře
20 100 Kč
(za měsíc)
G
Mimořádně nehospodárná
Pronájem moderního bytu 1+kk v klidné části Prahy 5
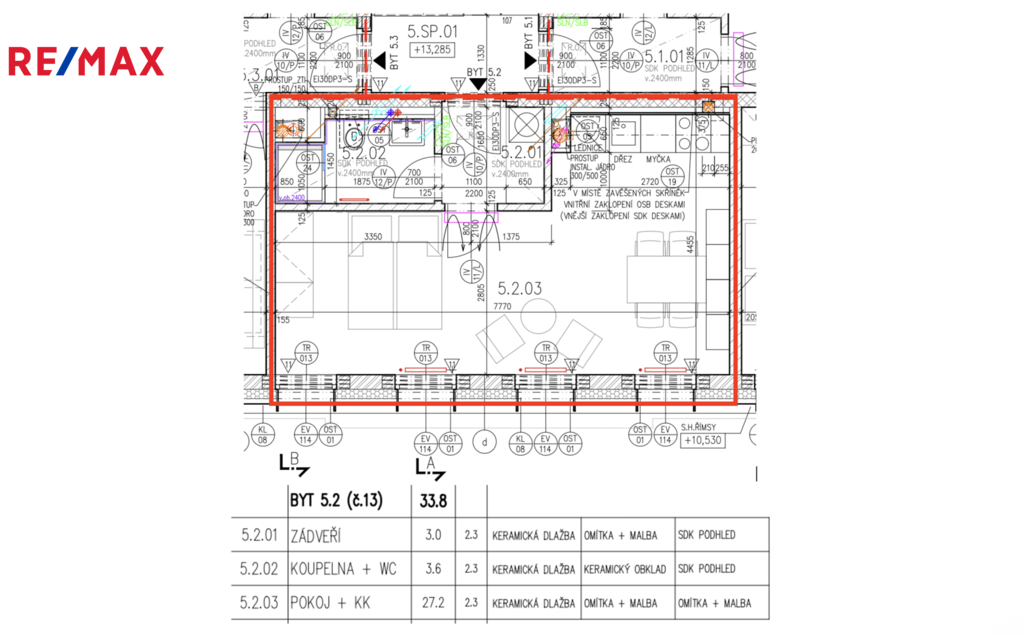
K dlouhodobému pronájmu nabízím nově zrekonstruovaný byt 1+kk o ploše 33,8 m², jenž je umístěný v 5. nadzemním podlaží nově zrevitalizovaného cihlového domu s výtahem v ulici Musílkova, v oblíbené části Prahy 5 - Košíře. Dům prošel kompletní rekonstrukcí včetně moderní kotelny (2026) a nabízí celkem 16 nájemních jednotek (14 bytů a 2 ateliéry) navržených s důrazem na moderní, komfortní a dlouhodobé bydlení. Nastěhování je možné ihned.
Dispozice bytu (5.2.) zahrnuje vstupní chodbu se skříní, která zajišťuje základní úložný prostor a přípravou na pračku, designovou koupelnu se sprchovým koutem, umyvadlem s koupelnovou skříňkou, WC. Z chodby se vstupuje do prostorného světlé pokoje s kuchyňským koutem, jenž disponuje moderní kuchyňskou linkou se spotřebiči - lednicí s mrazákem, troubou, indukční varnou deskou, myčkou, dřezem a digestoří. V obývací části je instalována klimatizace i elektrické předokenní rolety, které zvyšují komfort bydlení po celý rok. Internetové připojení je řešeno přes O2 / CETIN, v bytě jsou připravené datové zásuvky. Okna jsou trojskla, tudíž zaručují velmi dobrou izolaci. Topení v obývací části bude osazené v nejbližších dnech.
Finanční podmínky:
Nájemné = 20 100 Kč / měsíčně.
Zálohy na služby = 1 osoba = 2.000,- Kč / měs., 2 osoby = 3.000,- Kč / měs. Elektřina se převádí na nájemce.
Jistota (kauce) ve výši 30 000,-Kč.
Rezervační platba/provize = 24 321,- Kč.
Bytový dům se nachází v klidné a zelené části Košíře, která je vyhledávaná pro svou příjemnou atmosféru a výbornou dopravní dostupnost. V okolí je kompletní občanská vybavenost - obchody, kavárny, restaurace i ostatní služby. Autobusová zastávka "Pod Školou" je do 5 min. chůzí, tramvajová zastávka "Kavalírka" je do 10 min. chůzí od domu a díky tomu se během několika minut pohodlně dostanete do centra města i na stanici metra =B= Anděl.
Rád se s Vámi setkám na prohlídce bytů. Pronajímající si vyhrazuje právo vybrat nájemce na základě jím zvolených kritérií.
Dispozice bytu (5.2.) zahrnuje vstupní chodbu se skříní, která zajišťuje základní úložný prostor a přípravou na pračku, designovou koupelnu se sprchovým koutem, umyvadlem s koupelnovou skříňkou, WC. Z chodby se vstupuje do prostorného světlé pokoje s kuchyňským koutem, jenž disponuje moderní kuchyňskou linkou se spotřebiči - lednicí s mrazákem, troubou, indukční varnou deskou, myčkou, dřezem a digestoří. V obývací části je instalována klimatizace i elektrické předokenní rolety, které zvyšují komfort bydlení po celý rok. Internetové připojení je řešeno přes O2 / CETIN, v bytě jsou připravené datové zásuvky. Okna jsou trojskla, tudíž zaručují velmi dobrou izolaci. Topení v obývací části bude osazené v nejbližších dnech.
Finanční podmínky:
Nájemné = 20 100 Kč / měsíčně.
Zálohy na služby = 1 osoba = 2.000,- Kč / měs., 2 osoby = 3.000,- Kč / měs. Elektřina se převádí na nájemce.
Jistota (kauce) ve výši 30 000,-Kč.
Rezervační platba/provize = 24 321,- Kč.
Bytový dům se nachází v klidné a zelené části Košíře, která je vyhledávaná pro svou příjemnou atmosféru a výbornou dopravní dostupnost. V okolí je kompletní občanská vybavenost - obchody, kavárny, restaurace i ostatní služby. Autobusová zastávka "Pod Školou" je do 5 min. chůzí, tramvajová zastávka "Kavalírka" je do 10 min. chůzí od domu a díky tomu se během několika minut pohodlně dostanete do centra města i na stanici metra =B= Anděl.
Rád se s Vámi setkám na prohlídce bytů. Pronajímající si vyhrazuje právo vybrat nájemce na základě jím zvolených kritérií.
| Cena: | 20 100 Kč / (za měsíc) |
| Datum k nastěhování: | 01.03.2026 |
| Dispozice/podlahová plocha: | 1+kk/34 m² |
| Číslo zakázky: | REALITYMIX-431226 |
Podrobné informace
- Dispozice bytu: 1+kk
- Číslo podlaží v domě: 5
- Počet podlaží objektu: 5
- Užitná plocha: 34 m²
- Celková podlahová plocha: 34 m²
- Druh objektu: cihlová
- Stav objektu: po rekonstrukci
- Vlastnictví: osobní
- Umístění objektu: klidná část obce
- Doprava: dálnice, silnice, MHD, autobus
- Elektřina: Elektro - 230 V
- Voda: Voda - dálkový vodovod
- Telekomunikace: Internet
- Plyn: Plynovod
- Odpad: Kanalizace
- Energetická náročnost budovy: G - Mimořádně nehospodárná
- Energetický ukazatel podle vyhlášky: č. 264/2020 Sb.
Mapa
* Umístění na mapě je na základě GPS informací dodaných realitní kanceláří.
* Pozice na mapě je pouze orientační.