Pronájem - obchodní prostor, 128 m²
Zborovská, Praha 5
35 000 Kč (za měsíc)Pronájem - obchodní prostor, 128 m²
Zborovská, Praha 5
35 000 Kč
(za měsíc)
G
Mimořádně nehospodárná
Pronájem obchodního prostoru, 128 m2, Zborovská ulice, Praha 5 - Smíchov
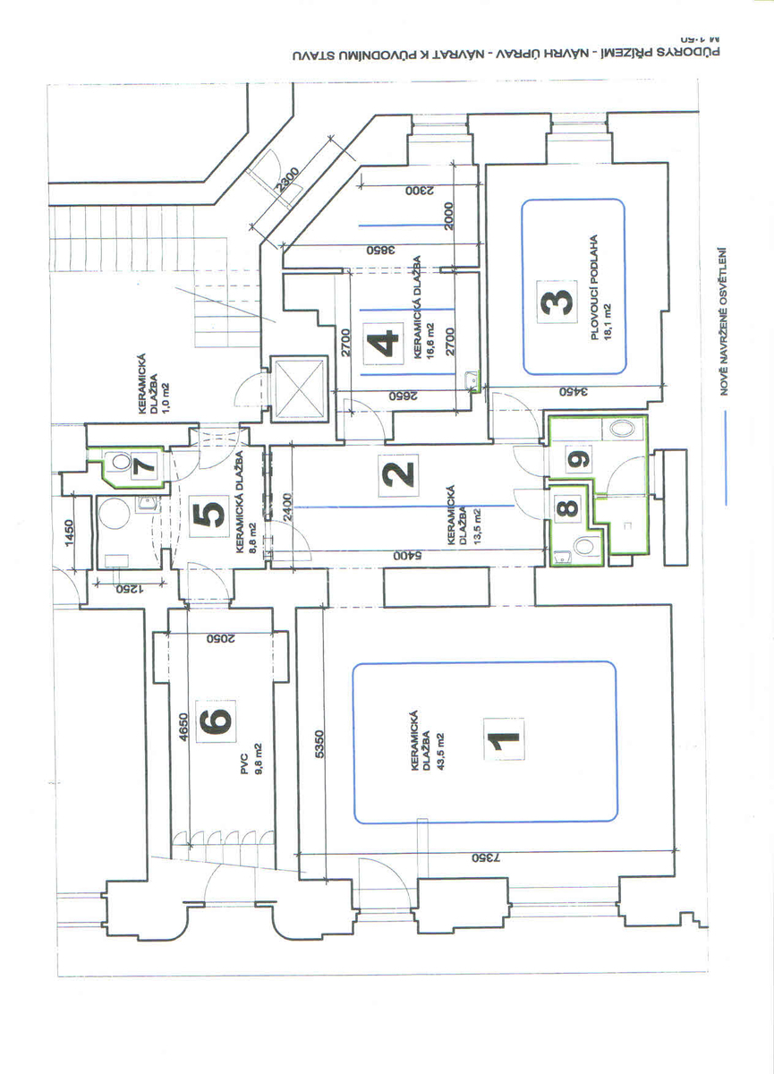
Zprostředkuji Vám pronájem obchodního prostoru, s výměrou 128 m2, na pražském Smíchově, v secesním domě ve Zborovské ulici. Tyto bezbariérové obchodní prostory se nachází přímo u náměstí 14. října. Hlavní místnost (50m²) má prostornou výlohu do ulice Zborovská. Nad výlohou je umístěn světelný reklamní banner. Rozsáhlé zázemí tvoří dvě místnosti, koupelna se sprchovým koutem, dvě toalety, místnost skladová a technická (pro přesnou představu plánek v galerii fotek). Vytápění je zajištěno etážovým kotlem, ohřev vody bojlerem. V prostorách zaveden 3-fázový proud, jistič 3x32A. Použité podlahové krytiny: zátěžové koberce a dlažba.
Měsíční náklady: nájemné + služby 1.400 Kč + přepis elektrické energie a plynu na nájemce. Parkování v místě na placených zónách či v OC Nový Smíchov. Dobrá dopravní dostupnost - Metro linky B (Anděl) 5 minut chůze, tramvajová stanice Zborovská minuta chůze. Jistota ve výši 70.000 Kč + odměna zprostředkovatele. Prostory jsou vhodné např. pro prodejnu, nábytkové studio, internetový obchod s e-shopem. Nelze na gastro, potraviny, večerku, kosmetické a kadeřnické služby, fitness, jóga studio, tanec, aktivity s hlučným provozem, apod. Prohlídky jsou možné od března 2026.
Měsíční náklady: nájemné + služby 1.400 Kč + přepis elektrické energie a plynu na nájemce. Parkování v místě na placených zónách či v OC Nový Smíchov. Dobrá dopravní dostupnost - Metro linky B (Anděl) 5 minut chůze, tramvajová stanice Zborovská minuta chůze. Jistota ve výši 70.000 Kč + odměna zprostředkovatele. Prostory jsou vhodné např. pro prodejnu, nábytkové studio, internetový obchod s e-shopem. Nelze na gastro, potraviny, večerku, kosmetické a kadeřnické služby, fitness, jóga studio, tanec, aktivity s hlučným provozem, apod. Prohlídky jsou možné od března 2026.
| Cena: | 35 000 Kč / (za měsíc) |
| Datum k nastěhování: | 01.02.2026 |
| Číslo zakázky: | REALITYMIX-18050 |
Podrobné informace
- Plocha kanceláří: 128 m²
- Plocha parcely: 128 m²
- Druh objektu: smíšená
- Stav objektu: velmi dobrý
- Druh prostor: Obchodní
- Umístění objektu: centrum obce
- Plyn: Plynovod
- Odpad: Kanalizace
- Energetická náročnost budovy: G - Mimořádně nehospodárná
- Energetický ukazatel podle vyhlášky: č. 264/2020 Sb.
Mapa
* Umístění na mapě je na základě GPS informací dodaných realitní kanceláří.
* Pozice na mapě je pouze orientační.
Podobné nemovitosti
Pronájem - obchodní prostor, 130 m²
Řeporyjská, Praha 5, Jinonice
33 826 Kč za měsíc
Pronájem - obchodní prostor, 47 m²
Preslova, Praha 5, Smíchov
30 000 Kč za měsíc
Pronájem - kanceláře, 516 m²
Kačírkova, Praha 5, Jinonice
16,00 € za m2/měsíc
Pronájem - kanceláře, 771 m²
Kačírkova, Praha 5, Jinonice
16,00 € za m2/měsíc