Pronájem - obchodní prostor, 360 m²
Chrudimská, Praha 3, Vinohrady
126 000 Kč (za měsíc)Pronájem - obchodní prostor, 360 m²
Chrudimská, Praha 3, Vinohrady
126 000 Kč
(za měsíc)
G
Mimořádně nehospodárná
Pronájem obchodního prostoru 360 m² Chrudimská, Praha - Vinohrady
Neplatíte provizi!
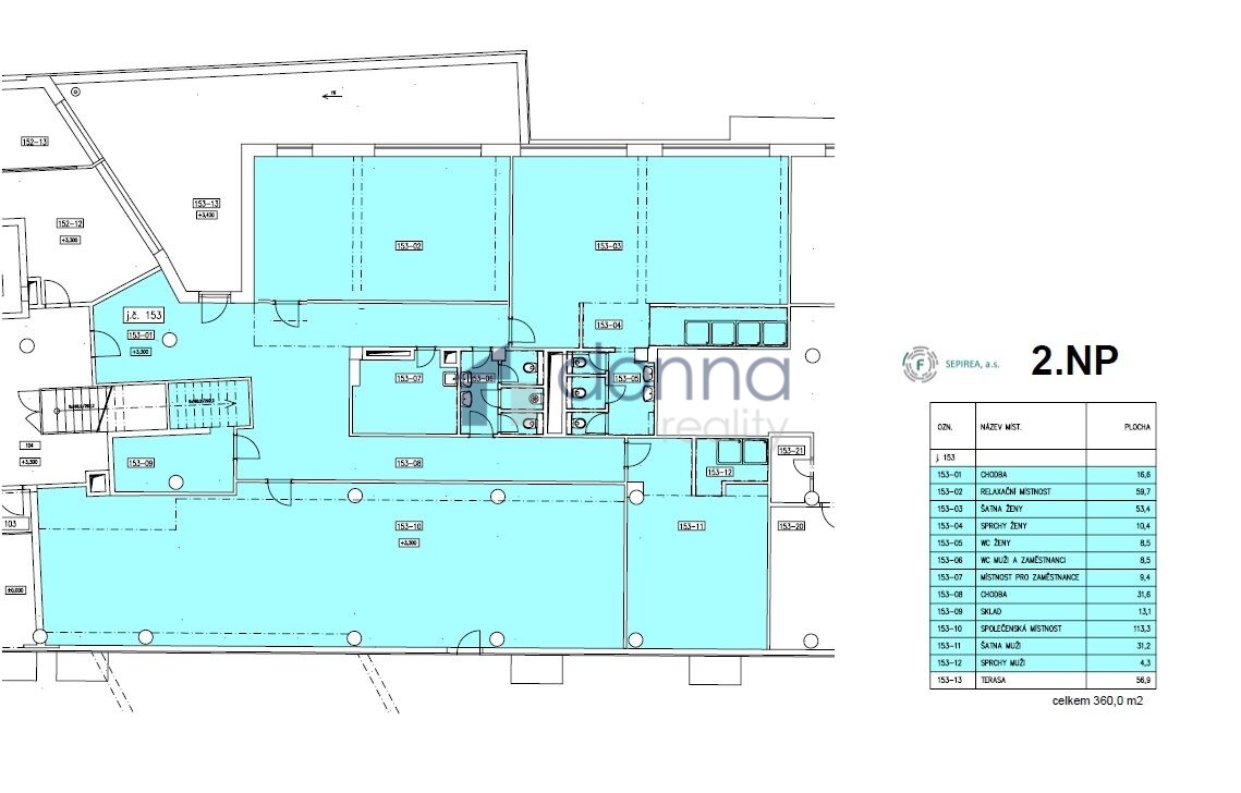
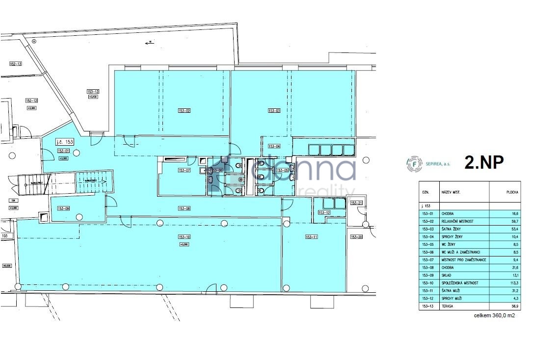
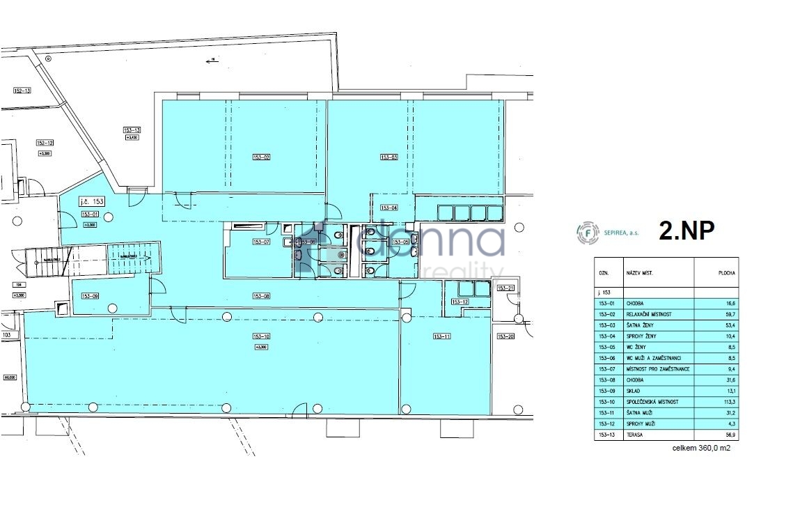
Nabízíme k pronájmu nebytové prostory s pronajímatelnou plochou o výměře 360 m2. Prostory se nacházejí ve 2.NP s výtahem se vstupem z pasáže objektu AGORA FLORA, která je spojnicí ulice Hradecké a Chrudimské. Nabízené prostory mají okna jak do pasáže, tak i do vnitrobloku a jsou aktuálně využívané jako studio Hot Yogy. Prostory jsou zkolaudovány jako „centrum volného času“, takže jsou vhodné pro aktivity podobného zaměření (yoga, pilates, pohybové aktivity, taneční studio, masáže apod.).
Technická specifikace prostor:
• elektrická energie, přívod teplé a studené vody,
• vlastní sociální zázemí
• vytápění, chlazení, nucené větrání
Vybavení budovy:
• ostraha 24/7
• EPS, CCTV
• vstup na čipy
• možnost pronájmu garážích stání přímo v objektu
Komplex má exkluzivní polohu, nachází se v centru Vinohrad, a je výborně dostupný pražskou MHD i autem. Stanice metra A – Flora, tramvajové i autobusové zastávky jsou v bezprostřední blízkosti objektu. Objekt sousedí s ulicí Chrudimskou, Slezskou a Hradeckou, má vlastní pasáž s obchody propojující Chrudimskou a Hradeckou ulici.
V objektu se nachází mimo jiné:
• prodejna PENNY,
• fitness centrum,
• kadeřnictví, manikúra,
• ordinace lékařů,
• restaurace,
• kavárna
Zúčtovatelné zálohy na služby a vlastní spotřebu: výše záloh bude stanovena dle typu využití zvoleného provozu.
Doba nájmu: minimálně 3 roky.
Jistina: 2 x měsíční nájmy (vč. DPH) + 2 x zálohy na služby.
Termín počátku nájemního vztahu dle dohody.
Neplatíte provizi!
Nabízíme k pronájmu nebytové prostory s pronajímatelnou plochou o výměře 360 m2. Prostory se nacházejí ve 2.NP s výtahem se vstupem z pasáže objektu AGORA FLORA, která je spojnicí ulice Hradecké a Chrudimské. Nabízené prostory mají okna jak do pasáže, tak i do vnitrobloku a jsou aktuálně využívané jako studio Hot Yogy. Prostory jsou zkolaudovány jako „centrum volného času“, takže jsou vhodné pro aktivity podobného zaměření (yoga, pilates, pohybové aktivity, taneční studio, masáže apod.).
Technická specifikace prostor:
• elektrická energie, přívod teplé a studené vody,
• vlastní sociální zázemí
• vytápění, chlazení, nucené větrání
Vybavení budovy:
• ostraha 24/7
• EPS, CCTV
• vstup na čipy
• možnost pronájmu garážích stání přímo v objektu
Komplex má exkluzivní polohu, nachází se v centru Vinohrad, a je výborně dostupný pražskou MHD i autem. Stanice metra A – Flora, tramvajové i autobusové zastávky jsou v bezprostřední blízkosti objektu. Objekt sousedí s ulicí Chrudimskou, Slezskou a Hradeckou, má vlastní pasáž s obchody propojující Chrudimskou a Hradeckou ulici.
V objektu se nachází mimo jiné:
• prodejna PENNY,
• fitness centrum,
• kadeřnictví, manikúra,
• ordinace lékařů,
• restaurace,
• kavárna
Zúčtovatelné zálohy na služby a vlastní spotřebu: výše záloh bude stanovena dle typu využití zvoleného provozu.
Doba nájmu: minimálně 3 roky.
Jistina: 2 x měsíční nájmy (vč. DPH) + 2 x zálohy na služby.
Termín počátku nájemního vztahu dle dohody.
Neplatíte provizi!
| Cena: | 126 000 Kč / (za měsíc) |
| Poznámka: | Nájemce neplatí provizi RK |
| Datum k nastěhování: | 20.04.2026 |
| Číslo zakázky: | REALITYMIX-11160 |
Podrobné informace
- Plocha kanceláří: 360 m²
- Druh objektu: montovaná
- Stav objektu: velmi dobrý
- Druh prostor: Obchodní
- Ostatní: Výtah
- Umístění objektu: centrum obce
- Energetická náročnost budovy: G - Mimořádně nehospodárná
- Energetický ukazatel podle vyhlášky: č. 264/2020 Sb.
Mapa
* Umístění na mapě je na základě GPS informací dodaných realitní kanceláří.
* Pozice na mapě je pouze orientační.
Podobné nemovitosti
Pronájem - obchodní prostor, 257 m²
Chrudimská, Praha 3, Vinohrady
102 800 Kč za měsíc
Pronájem - obchodní prostor, 360 m²
Chrudimská, Praha 3, Vinohrady
126 000 Kč za měsíc
Pronájem - obchodní prostor, 133 m²
Chrudimská, Praha 3, Vinohrady
Cena na vyžádání
Pronájem - obchodní prostor, 376 m²
Chrudimská, Praha 3, Vinohrady
Cena na vyžádání