Pronájem - kanceláře, 104 m²
Vinopalnická, Praha 8, Libeň
25 000 Kč (za měsíc)Pronájem - kanceláře, 104 m²
Vinopalnická, Praha 8, Libeň
25 000 Kč
(za měsíc)
C
Úsporná
Pronájem reprezentativního kancelářského prostoru 5kk, 104 m2, Praha 8 - Libeň, ulice Vinopalnická
Pronájem reprezentativního kancelářského prostoru o dispozici 5kk, 104 m2, Praha 8 - Libeň, ulice Vinopalnická, 1.patro ve velmi pěkném, kompletně udržovaném cihlovém domě. Dům se nachází v klidné, slepé ulici a je obklopen zelení, o kterou pravidelně pečují zahradníci. Dům i okolí působí velmi klidným a inspirativním dojmem. Orientace prostoru je na východ (2 místnosti, každá má pak i okno na jih nebo sever) a na západ (1 místnost a koupelna). Prostor je po nákladné, právě dokončené rekonstrukci, při které byly vyměněny všechna střešní okna, v celém prostoru položen kvalitní vinyl, nainstalována nová kuchyňská linka a proběhla kompletní výmalba.
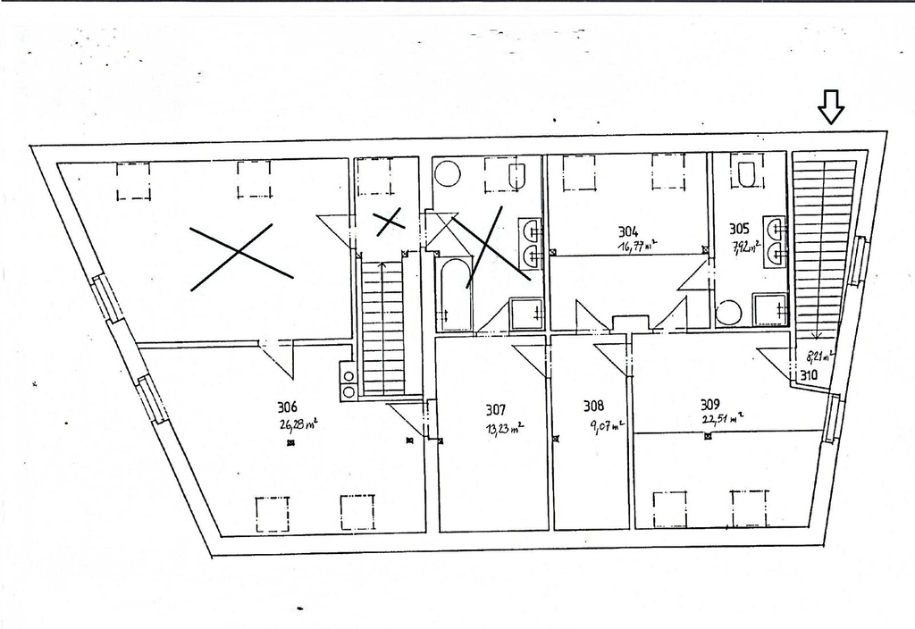
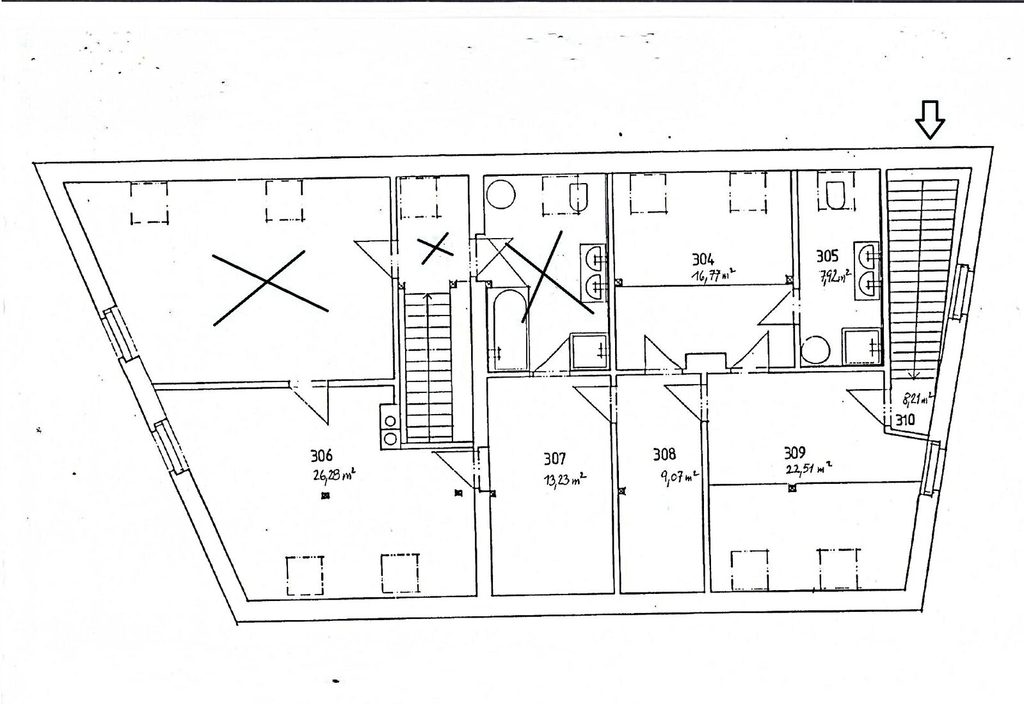
Prostor sestává ze vstupního schodiště (8,21 m2), 4 průchozích místností (22,51 m2, 16,77 m2, 9,07 m2, 13,23 m2), koupelny s WC (7,92 m2) a 1 neprůchozí místnosti, ve které je i klimatizační jednotka (26,28 m2). Prostor je nezařízený nábytkem. K dispozici je nová kuchyňská linka s novými spotřebiči – indukční vařič, lednice a mikrovlnná trouba. V prostorné koupelně je umývadlo, WC, vana i sprchový kout. Topení je ústřední - společný kotel pro celý dům, který se ovládá samostatným termostatem nainstalovaným v prostoru. Prostor je možné mít zabezpečený alarmem od společnosti Jablotron, který je napojený na CPO a to za 400 Kč měsíčně. Parkování je možné pro 2 auta na přilehlém pozemku před domem za 1.450 Kč měsíčně / 1 auto.
Výborná dopravní dostupnost do centra - 50 m od domu je zastávka Vinopalnická (bus č. 166) s přímým spojením (2 zastávky) na tram a Metro C - Ládví nebo 1 zastávka nebo cca 5 min. chůze tram a bus Bulovka s přímým spojením do samotného centra Prahy a na Metro A,B,C.
Prostor má nízké měsíční náklady - vytápění 2.000 Kč měsíčně, el. energie 1.700 Kč měsíčně, voda 150 Kč měsíčně / 1 osoba. Vratná kauce je ve výši 30.000 Kč. Prostor je k dispozici ihned.
Prostor sestává ze vstupního schodiště (8,21 m2), 4 průchozích místností (22,51 m2, 16,77 m2, 9,07 m2, 13,23 m2), koupelny s WC (7,92 m2) a 1 neprůchozí místnosti, ve které je i klimatizační jednotka (26,28 m2). Prostor je nezařízený nábytkem. K dispozici je nová kuchyňská linka s novými spotřebiči – indukční vařič, lednice a mikrovlnná trouba. V prostorné koupelně je umývadlo, WC, vana i sprchový kout. Topení je ústřední - společný kotel pro celý dům, který se ovládá samostatným termostatem nainstalovaným v prostoru. Prostor je možné mít zabezpečený alarmem od společnosti Jablotron, který je napojený na CPO a to za 400 Kč měsíčně. Parkování je možné pro 2 auta na přilehlém pozemku před domem za 1.450 Kč měsíčně / 1 auto.
Výborná dopravní dostupnost do centra - 50 m od domu je zastávka Vinopalnická (bus č. 166) s přímým spojením (2 zastávky) na tram a Metro C - Ládví nebo 1 zastávka nebo cca 5 min. chůze tram a bus Bulovka s přímým spojením do samotného centra Prahy a na Metro A,B,C.
Prostor má nízké měsíční náklady - vytápění 2.000 Kč měsíčně, el. energie 1.700 Kč měsíčně, voda 150 Kč měsíčně / 1 osoba. Vratná kauce je ve výši 30.000 Kč. Prostor je k dispozici ihned.
| Cena: | 25 000 Kč / (za měsíc) |
| Poznámka: | + poplatky viz text inzerce |
| Datum k nastěhování: | 12.01.2026 |
| Číslo zakázky: | REALITYMIX-22153 |
Podrobné informace
- Plocha kanceláří: 104 m²
- Druh objektu: cihlová
- Stav objektu: po rekonstrukci
- Druh prostor: Kanceláře
- Energetická náročnost budovy: C - Úsporná
- Energetický ukazatel podle vyhlášky: č. 264/2020 Sb.
Mapa
* Umístění na mapě je na základě GPS informací dodaných realitní kanceláří.
* Pozice na mapě je pouze orientační.
Podobné nemovitosti
Pronájem - kanceláře, 1 800 m²
Na žertvách, Praha 8, Libeň
10,00 € za m2/měsíc
Pronájem - kanceláře, 12 m²
Pomořanská, Praha 8, Troja
4 500 Kč za měsíc
Pronájem - kanceláře, 1 564 m²
Pernerova, Praha 8, Karlín
525 Kč za m2/měsíc
Pronájem - kanceláře, 595 m²
Pernerova, Praha 8, Karlín
525 Kč za m2/měsíc