Pronájem - obchodní prostor, 38 m²
Palackého, Praha 1, Nové Město
44 900 Kč (za měsíc)Pronájem - obchodní prostor, 38 m²
Palackého, Praha 1, Nové Město
44 900 Kč
(za měsíc)
G
Mimořádně nehospodárná
Reprezentantivní obchodní prostor se vstupem do ulice, Praha 1 - Nové Město
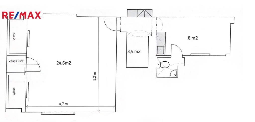
Nabízíme k pronájmu reprezentativní prostory o rozloze 38 m² se dvěma prosklenými výlohami a přímým vstupem do ulice v historické budově v ul. Palackého v centru Prahy.
Prostory o ploše 38 m² mohou být využity jako optika, galerie, zlatnictví, kancelář (např. pobočka cestovní agentury nebo různých finančních/pojišťovacích společností) či jako prodejna se zdravotnickými potřebami (díky umístění polikliniky ve stejné ulici). Prostory sestávají ze vstupní místnosti, na kterou navazuje menší prostor/technické nebo skladové zázemí a další místnost v podobě zázemí pro zaměstnance či klienty a toaleta s umyvadlem. Úprava interiéru je možná po dohodě s majiteli domu. Dvě výlohy a přístup z ulice skýtají atraktivní příležitost a velmi široké komerční využití.
Měsíční náklady na vodné/stočné a správu domu činí 1.000,- Kč, elektřina - 6.000,- Kč (bude převedena na nájemce). Kauce v podobě dvou měsíčních nájmů. Prostor je k dispozici po dohodě.
Budova je umístěna na výborné adrese, v centru Nového Města, které disponuje veškerou občanskou vybaveností od restaurací, kaváren až po velké množství obchodů, služeb a turistických zajímavostí. Jen několik kroků od budovy je zastávka tramvaje Vodičkova stejně jako stanice metra Můstek.
Pro více informací kontaktujte makléře nabídky!
Prostory o ploše 38 m² mohou být využity jako optika, galerie, zlatnictví, kancelář (např. pobočka cestovní agentury nebo různých finančních/pojišťovacích společností) či jako prodejna se zdravotnickými potřebami (díky umístění polikliniky ve stejné ulici). Prostory sestávají ze vstupní místnosti, na kterou navazuje menší prostor/technické nebo skladové zázemí a další místnost v podobě zázemí pro zaměstnance či klienty a toaleta s umyvadlem. Úprava interiéru je možná po dohodě s majiteli domu. Dvě výlohy a přístup z ulice skýtají atraktivní příležitost a velmi široké komerční využití.
Měsíční náklady na vodné/stočné a správu domu činí 1.000,- Kč, elektřina - 6.000,- Kč (bude převedena na nájemce). Kauce v podobě dvou měsíčních nájmů. Prostor je k dispozici po dohodě.
Budova je umístěna na výborné adrese, v centru Nového Města, které disponuje veškerou občanskou vybaveností od restaurací, kaváren až po velké množství obchodů, služeb a turistických zajímavostí. Jen několik kroků od budovy je zastávka tramvaje Vodičkova stejně jako stanice metra Můstek.
Pro více informací kontaktujte makléře nabídky!
| Cena: | 44 900 Kč / (za měsíc) |
| Poznámka: | Uvedená cena zahrnuje veškeré poplatky za služby RE/MAX |
| Datum k nastěhování: | 02.02.2026 |
| Číslo zakázky: | REALITYMIX-431579 |
Podrobné informace
- Plocha kanceláří: 38 m²
- Druh objektu: cihlová
- Stav objektu: velmi dobrý
- Druh prostor: Obchodní
- Ostatní: Bezbarierový přístup
- Umístění objektu: centrum obce
- Doprava: MHD
- Voda: Voda - dálkový vodovod
- Odpad: Kanalizace
- Energetická náročnost budovy: G - Mimořádně nehospodárná
- Energetický ukazatel podle vyhlášky: č. 264/2020 Sb.
Mapa
* Umístění na mapě je na základě GPS informací dodaných realitní kanceláří.
* Pozice na mapě je pouze orientační.
Podobné nemovitosti
Pronájem - obchodní prostor, 76 m²
Martinská, Praha 1, Staré Město
42 000 Kč za měsíc
Pronájem - kanceláře, 1 722 m²
Na Poříčí, Praha 1, Nové Město
23,75 € za m2/měsíc
Pronájem - kanceláře, 38 m²
Senovážné náměstí, Praha 1, Nové Město
270 Kč za m2/měsíc
Pronájem - obchodní prostor, 50 m²
Václavské náměstí, Praha 1, Nové Město
500 000 Kč za měsíc