Pronájem - obchodní prostor, 190 m²
Rostoklaty, Kolín
45 000 Kč (za měsíc)Pronájem - obchodní prostor, 190 m²
Rostoklaty, Kolín
45 000 Kč
(za měsíc)
B
Velmi úsporná
Pronájem nového nebytového prostoru 190 m2
Exkluzivně nabízíme zcela nový, nepoužívaný nebytový prostor s přímým vstupem z ulice na atraktivním místě u hlavního tahu na Český Brod a Kolín.
Nebytový prostor o výměře 190 m2 se nachází v přízemí cihlové novostavby a má široké využití, jako například atraktivní obchodní prostory – showroom, kanceláře, sklad nebo i prodejna potravin.
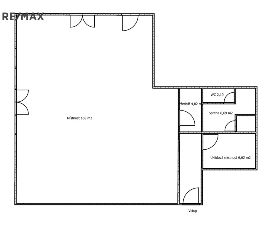
Vytápění prostoru je zajištěno pomocí tepelného čerpadla, topení je podlahové. Prostor je řešen jako jedna velká plocha o výměře 168 m2, kterou je možno rozdělit sádrokartonovou příčkou dle potřeby, dále pak sklad, dvě toalety, kuchyňka, technická místnost, předsíň a případně sprcha.
Nebytový prostor je vybaven zabezpečovacím zařízením, okna jsou plastová trojskla. Dům, ve kterém se prostor nachází je na oploceném pozemku s možností umístění reklamy, která bude velmi dobře viditelná pro projíždějící auta po hlavní silnici.
Parkovaní před domem pro zákazníky, dále pak parkování v oploceném areálu, který je střežen kamerovým systémem se záznamem.
Měsíční nájemné činí 45 000 Kč plus poplatky za služby 5 000 Kč. Vratná kauce je 60 000 Kč.
Prostor je ihned volný. Pronajímající si vyhrazuje právo vybrat nájemce na základě jím zvolených kritérií.
Nebytový prostor o výměře 190 m2 se nachází v přízemí cihlové novostavby a má široké využití, jako například atraktivní obchodní prostory – showroom, kanceláře, sklad nebo i prodejna potravin.
Vytápění prostoru je zajištěno pomocí tepelného čerpadla, topení je podlahové. Prostor je řešen jako jedna velká plocha o výměře 168 m2, kterou je možno rozdělit sádrokartonovou příčkou dle potřeby, dále pak sklad, dvě toalety, kuchyňka, technická místnost, předsíň a případně sprcha.
Nebytový prostor je vybaven zabezpečovacím zařízením, okna jsou plastová trojskla. Dům, ve kterém se prostor nachází je na oploceném pozemku s možností umístění reklamy, která bude velmi dobře viditelná pro projíždějící auta po hlavní silnici.
Parkovaní před domem pro zákazníky, dále pak parkování v oploceném areálu, který je střežen kamerovým systémem se záznamem.
Měsíční nájemné činí 45 000 Kč plus poplatky za služby 5 000 Kč. Vratná kauce je 60 000 Kč.
Prostor je ihned volný. Pronajímající si vyhrazuje právo vybrat nájemce na základě jím zvolených kritérií.
| Cena: | 45 000 Kč / (za měsíc) |
| Poznámka: | + poplatky za služby 5.000,- Kč / měsíc. Vratná kauce činí 60.000 Kč. |
| Datum k nastěhování: | 03.02.2026 |
| Číslo zakázky: | REALITYMIX-431676 |
Podrobné informace
- Plocha kanceláří: 190 m²
- Druh objektu: cihlová
- Stav objektu: novostavba
- Druh prostor: Obchodní
- Umístění objektu: centrum obce
- Elektřina: Elektro - 230 V, Elektro - 400 V
- Voda: Voda - dálkový vodovod
- Odpad: Kanalizace
- Energetická náročnost budovy: B - Velmi úsporná
- Energetický ukazatel podle vyhlášky: č. 78/2013 Sb.
Mapa
* Umístění na mapě je na základě GPS informací dodaných realitní kanceláří.
* Pozice na mapě je pouze orientační.
Podobné nemovitosti
Pronájem - skladovací prostor, 500 m²
Ovčáry, Kolín
Cena na vyžádání
Pronájem - výrobní prostor, 19 200 m²
Prokopa Holého, Velký Osek, Kolín
Cena na vyžádání
Pronájem - skladovací prostor, 6 200 m²
Zengrova, Kolín IV, Kolín
Cena na vyžádání
Pronájem - výrobní prostor, 15 000 m²
Prokopa Holého, Velký Osek, Kolín
Cena na vyžádání