Pronájem - komerční objekt, sklad, 1 244 m²
Slapy, Praha-západ
70 Kč (za m2/měsíc)Pronájem - komerční objekt, sklad, 1 244 m²
Slapy, Praha-západ
70 Kč
(za m2/měsíc)
G
Mimořádně nehospodárná
Pronájem prostorné skladovací nebo výrobní haly ve Slapech nad Vltavou
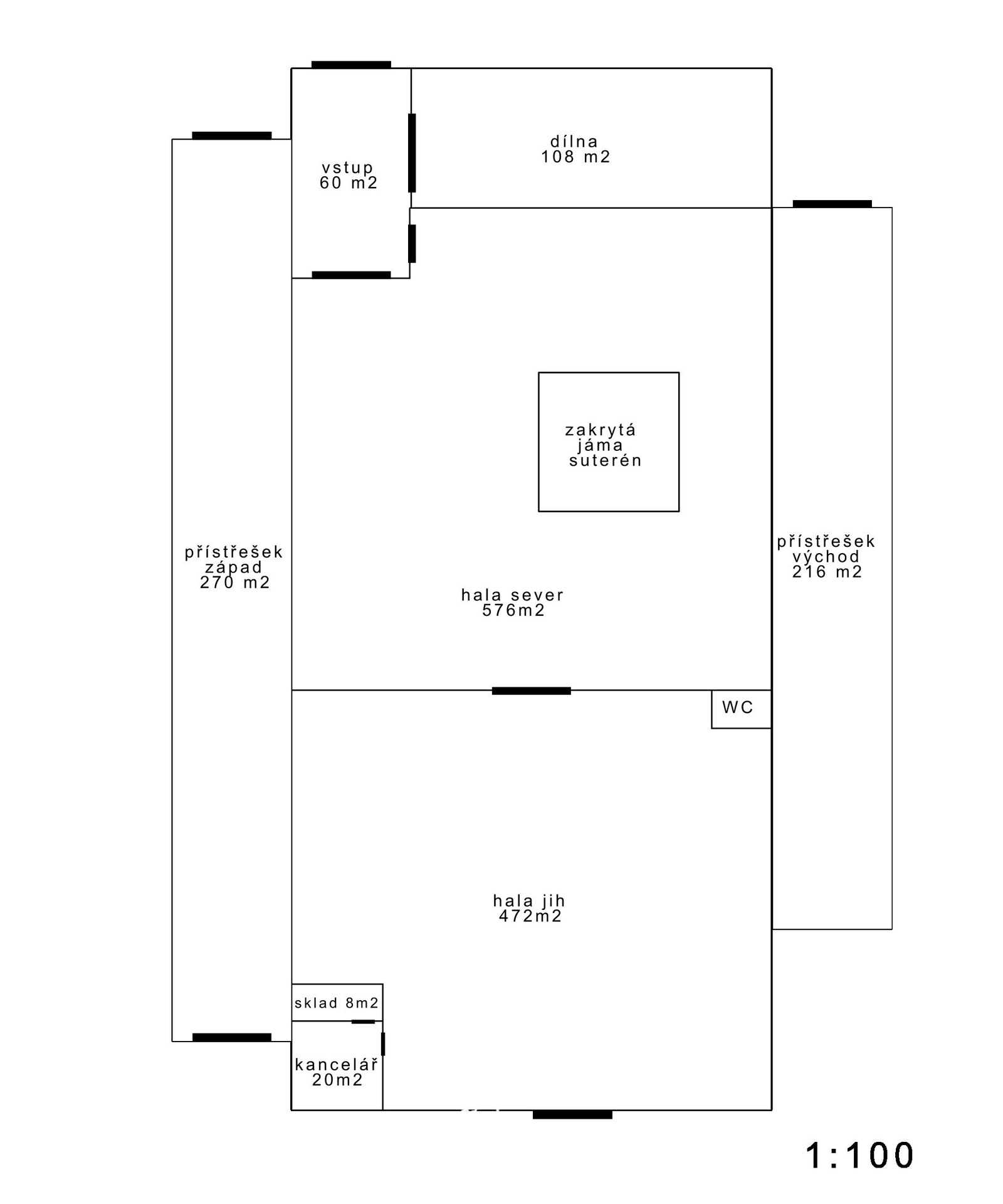
Nabízíme vám na pronájem zděnou halu s plechovým pláštěm, určenou jako skladovací nebo výrobní, výška stropu je 4 m. Hala je v oploceném areálu, nevytápěná, ale s možností doplnění dílenskými kamny. K hale přiléhají dva uzamykatelné přístřešky.
Do haly je přívod elektřiny, vody i kanalizace, je zde WC a k dispozici je i kancelář
Hala je rozdělená na několik částí - dva hlavní prostory jsou o velikosti 472 m2 a 576 m2 (zde je k dispozici zakrytá jáma)
dále je zde dílna o velikosti 108 m2, vstup 60 m2, kancelář 20 m2, sklad 8 m2.
Venku jsou k dispozici přístřešky z obou delších stran budovy - 270 a 216 m2.
Je možnost pronajmout pouze část (např. samostatně půlku haly, nebo přístřešek, nebo různé kombinace. Sociální zařízení lze dobudovat i v dalších částech haly.
Cena pronájmu je 70,- Kč/m2/měsíc za halu a 50,- Kč/m2/měsíc za přístřešky
Do haly je přívod elektřiny, vody i kanalizace, je zde WC a k dispozici je i kancelář
Hala je rozdělená na několik částí - dva hlavní prostory jsou o velikosti 472 m2 a 576 m2 (zde je k dispozici zakrytá jáma)
dále je zde dílna o velikosti 108 m2, vstup 60 m2, kancelář 20 m2, sklad 8 m2.
Venku jsou k dispozici přístřešky z obou delších stran budovy - 270 a 216 m2.
Je možnost pronajmout pouze část (např. samostatně půlku haly, nebo přístřešek, nebo různé kombinace. Sociální zařízení lze dobudovat i v dalších částech haly.
Cena pronájmu je 70,- Kč/m2/měsíc za halu a 50,- Kč/m2/měsíc za přístřešky
| Cena: | 70 Kč / (za m2/měsíc) |
| Poznámka: | 70,- Kč/m2 hala a 50,- Kč/m2/přístřešky, bez poplatků |
| Plocha: | 1244 m² |
| Číslo zakázky: | REALITYMIX-N05998 |
Podrobné informace
- Celková plocha: 1244 m²
- Počet podlaží objektu: 1
- Druh objektu: montovaná
- Stav objektu: dobrý
- Účel budovy: Sklad
- Ostatní: Parkoviště
- Elektřina: Elektro - 400 V
- Voda: Voda - dálkový vodovod
- Odpad: Kanalizace
- Energetická náročnost budovy: G - Mimořádně nehospodárná
Mapa
* Umístění na mapě je na základě GPS informací dodaných realitní kanceláří.
* Pozice na mapě je pouze orientační.
Podobné nemovitosti
Pronájem - komerční objekt, sklad, 3 000 m²
K Vypichu, Rudná, Praha-západ
Cena na vyžádání
Pronájem - komerční objekt, sklad, 2 800 m²
K Dálnici, Hostivice, Praha-západ
Cena na vyžádání
Pronájem - komerční objekt, sklad, 3 889 m²
Ke Kopanině, Tuchoměřice, Praha-západ
Cena na vyžádání
Pronájem - komerční objekt, sklad, 6 500 m²
Na Trojce, Nučice, Praha-západ
Cena na vyžádání