Pronájem bytu, 2+1, 63 m²
Dukelská, Strakonice II, Strakonice
11 500 Kč (za měsíc)Pronájem bytu, 2+1, 63 m²
Dukelská, Strakonice II, Strakonice
11 500 Kč
(za měsíc)
G
Mimořádně nehospodárná
Pronájem 2+1 v ulici Dukelská, Strakonice
Nabízíme Vám exkluzivně velmi hezký byt v osobním vlastnictví o velikosti 2+1 a výměře 63 m2 v 8. podlaží osmipodlažního revitalizovaného panelového domu s novým výtahem v ulici Dukelská. Byt je po celkové rekonstrukci na které se ještě nyní pracuje. Nová podlahová krytina, kuchyňská linka také nová.
Bude brzo přidané foto kuchyně.
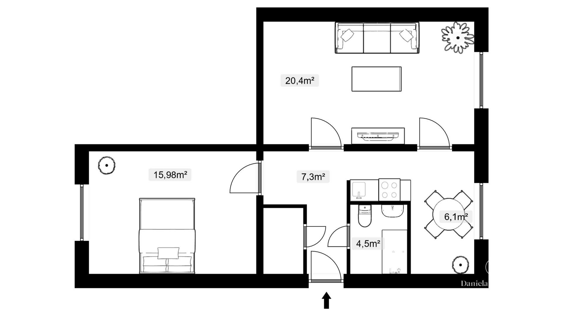
Byt se skládá z vstupní předsíně (3,8 m2), velkého obývacího pokoje (20,4 m2), prostorné ložnice (16 m2), a kuchyně s jídelní částí (16.2 m2), komory (2.11 m2) a koupelny (4,5 m2). Koupelna prošla rekonstrukcí v roce 2020 (zděné jádro, vana a WC dohromady). Dispozice je zřejmá z přiloženého půdorysu. Rozměry jsou uvedeny přibližně.
Měsíční nájem 11.500,-Kč plus záloha na vodu, teplo ( 4.000,-Kč) , elektřina bude přepsána na nového nájemníka. Při rychlém jednání možná sleva.
Jedná se o klidnou žádanou lokalitu s dostatkem parkovacích míst. Do centra se chůzí dostanete do 5 minut a za 3 minuty jste i v nákupním parku. Nedaleko od bytové jednotky se nachází škola i školka. Před domem hřiště a prolézačky pro děti. V blízkém okolí jsou také supermarkety BILLA a LIDL, specializované obchody, restaurace, lékařské ordinace a další občanská vybavenost.
Ve Strakonicích se dále nachází hrad, letní kino, plavecký stadion a pro milovníky sportu i Otavská cyklistická stezka nebo tenisové kurty.
Neváhejte mě kontaktovat ohledně prohlídky. Volné ihned.
Bude brzo přidané foto kuchyně.
Byt se skládá z vstupní předsíně (3,8 m2), velkého obývacího pokoje (20,4 m2), prostorné ložnice (16 m2), a kuchyně s jídelní částí (16.2 m2), komory (2.11 m2) a koupelny (4,5 m2). Koupelna prošla rekonstrukcí v roce 2020 (zděné jádro, vana a WC dohromady). Dispozice je zřejmá z přiloženého půdorysu. Rozměry jsou uvedeny přibližně.
Měsíční nájem 11.500,-Kč plus záloha na vodu, teplo ( 4.000,-Kč) , elektřina bude přepsána na nového nájemníka. Při rychlém jednání možná sleva.
Jedná se o klidnou žádanou lokalitu s dostatkem parkovacích míst. Do centra se chůzí dostanete do 5 minut a za 3 minuty jste i v nákupním parku. Nedaleko od bytové jednotky se nachází škola i školka. Před domem hřiště a prolézačky pro děti. V blízkém okolí jsou také supermarkety BILLA a LIDL, specializované obchody, restaurace, lékařské ordinace a další občanská vybavenost.
Ve Strakonicích se dále nachází hrad, letní kino, plavecký stadion a pro milovníky sportu i Otavská cyklistická stezka nebo tenisové kurty.
Neváhejte mě kontaktovat ohledně prohlídky. Volné ihned.
| Cena: | 11 500 Kč / (za měsíc) |
| Poznámka: | plus zálohy na poplatky a energie 4.000,-Kč |
| Datum k nastěhování: | 01.12.2023 |
| Dispozice/podlahová plocha: | 2+1/63 m² |
| Číslo zakázky: | REALITYMIX-N00025 |
Podrobné informace
- Dispozice bytu: 2+1
- Číslo podlaží v domě: 8
- Počet podlaží objektu: 8
- Užitná plocha: 63 m²
- Celková podlahová plocha: 63 m²
- Druh objektu: panelová
- Stav objektu: velmi dobrý
- Vlastnictví: osobní
- Doprava: MHD
- Energetická náročnost budovy: G - Mimořádně nehospodárná
- Energetický ukazatel podle vyhlášky: č. 264/2020 Sb.
Mapa
* Umístění na mapě je na základě GPS informací dodaných realitní kanceláří.
* Pozice na mapě je pouze orientační.
Podobné nemovitosti
Pronájem bytu, 2+1, 70 m²
Českých lesů, Strakonice II, Strakonice
12 000 Kč za měsíc
Pronájem bytu, 2+1, 52 m²
Dr. Jiřího Fifky, Strakonice I, Strakonice
11 200 Kč za měsíc
Pronájem bytu, 2+1, 59 m²
Luční, Strakonice II, Strakonice
9 700 Kč za měsíc
Pronájem bytu, 2+1, 70 m²
Českých lesů, Strakonice II, Strakonice
12 000 Kč za měsíc